Продажа двухэтажного здания в аг. Новый Двор
802 816 р.
Тип
Площадь
Описание
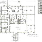
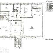
Предлагаем Вашему вниманию двухэтажное здание по адресу: аг. Новый Двор, ул. Парковая, 6. Здание многофункциональное, имеет два отдельных входа и участок земли, также собственную парковку и расположено вдоль дороги, что позволяет использовать его в широком спектре деятельности — возможна смена назначения. Ранее здание являлось столовой, и имеет соответствующую разводку коммуникаций.
Общие характеристики + инженерные коммуникации объекта:
- Общая площадь 785.8 м2, из них:
1-й этаж 381.8 м2,
2-й этаж 404 м2;
- 50 кВт с возможностью увеличения;
- Холодная и вода, канализация;
- Высота потолков 3,2-3,3 м;
- Собственная парковка на 18 авто;
- 2 отдельных входа + рампа для приёмки товаров;
- Земельный участок 0.192 Га;
Месторасположение:
Здание расположено в 4,5 км от МКАД (сторона Чижосвкого водохранилища) с удобным выездом, прямо вдоль трассы Н-9050 и Н-9034; в 5 км от МКАД-2 с таким же удобным выездом. Ближайшие продовольственные и строительные магазины в 5 км от объекта, оптовый магазин «Светофор» в 3 км от объекта.
Звоните, покажем в удобное для Вас время!
Поможем продать ваш объект для покупки этого
Новые объекты в аренде и продаже каждый день
Бесплатный выезд риэлтора для оценки объекта
Поможем проверить самостоятельно найденный объект - услуга Свой Вариант
Параметры объекта
- Тип объекта
Производство
- Площадь участка
19.2 соток
- Площадь общая
785.80 м²
- Этажность
2
- Год постройки
1989
- Класс
C
- Раздельных помещений
43
- Материал стен
Кирпичный
- Высота потолков
3 м
- Отопление
Есть
- Электроснабжение
Есть
- Электрическая мощность
50 кВт
- Естественное освещение
Есть
- Вода
Есть
- Санузел
Есть
- Парковка
Есть
- Принадлежность объекта
Частная
- НДС
НДС нет (0%)
- Юридический адрес
Да
- Номер договора
22/1 от 12.01.2026
Оснащение
Отдельный вход
Рампа
Примечание
Местоположение
- Область
- Район
- Населенный пункт
- Улица
- Номер дома
6
- Сельсовет
Новодворский с/с
- Направление
Пуховичское, 7 км от МКАД
- Координаты
54.1266, 27.3455
