Купить торговое помещение, г. Минск, ул. Рудобельская, 3
511 452 р.
12 658 р.≈ 4 455 $ за м²
- г. Минскул. Рудобельская, 3
- Автозаводская
- На карте
Тип
Площадь
Этаж
Описание
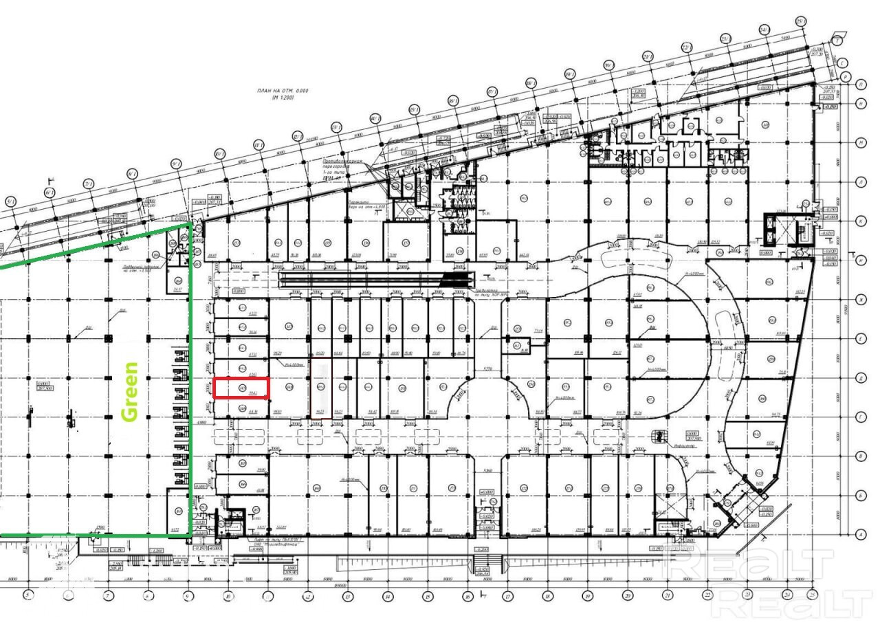
Предлагаем Вашему вниманию торговое помещение в прикассовой зоне ТРЦ «GREEN TIME», расположенное по адресу: г. Минск, ул. Рудобельская, 3.
Общие характеристики:
Назначение – Торговое помещение, наименование Магазин непродовольственных товаров.
- располагается напротив касс гипермаркета «Green»;
- площадь помещения – 40.4 м2;
- режим работы ТЦ (с 08.00 до 23.00);
- павильон с ремонтом;
- помещение сдано в аренду;
- просторная парковка и крытый паркинг на территории ТЦ.
Инфраструктура:
Торгово-развлекательный центр «GREEN TIME» расположен в границах улиц Кабушкина-Шишкина.
- остановки общественного транспорта находятся в 3-х минутах ходьбы от ТРЦ;
- 13 минут пешком до ст. м «Автозаводская» или 2 остановки на общественном транспорте.
Концепция центра представляет собой совокупность зон (фудкорт, детско-развлекательная, бутиковая), автокинотеатра и якорного гипермаркета «Green».
Собственник физическое лицо (не является плательщиком НДС).
Более подробная информация по телефону.
Звоните!
Параметры объекта
- Тип объекта
Торговое помещение
- Площадь общая
40.40 м²
- Этаж / этажность
1 / 1
- Год постройки
2022
- Раздельных помещений
1
- Материал стен
Блочный
- Ремонт
Хороший
- Отопление
Есть
- Электроснабжение
Есть
- Санузел
Есть
- Парковка
Есть
- Принадлежность объекта
Частная
- НДС
НДС не включен
- Расположение
В торговом центре
- Номер договора
108/1 от 13.02.2025
Оснащение
Охрана
Оживленное место
Владислав Апенок
Агент по недвижимости
Примечание
Местоположение
- Область
- Населенный пункт
- Улица
- Номер дома
3
- Район города
- Микрорайон
- Координаты
53.860829341, 27.637511206
