Продажа незавершенного законсервированного капитального строения - Борисов, Строителей, 47/А
994 490 р.
Тип
Площадь
Описание
Продажа незавершенного законсервированного капитального строения
Адрес: Минская обл., Борисовский р-н, г. Борисов, ул. Строителей, 47А
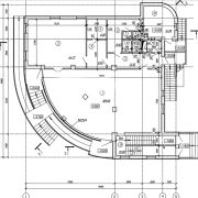
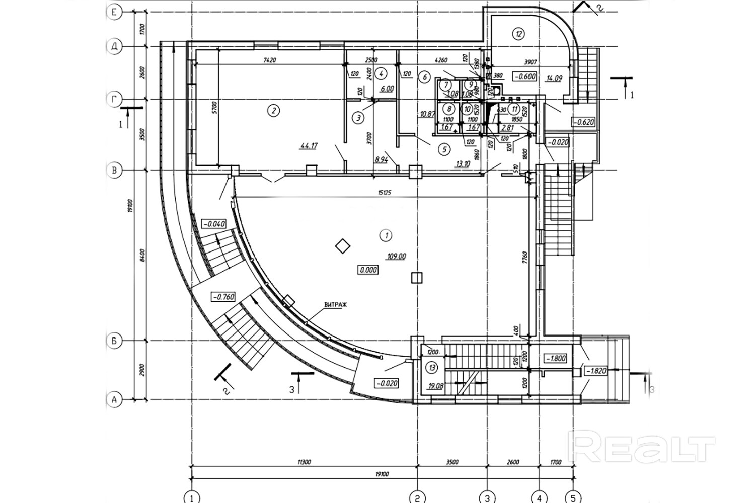
Площадь: 810 м2
Продажа перспективного капитального строения в Борисове!
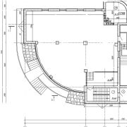
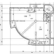
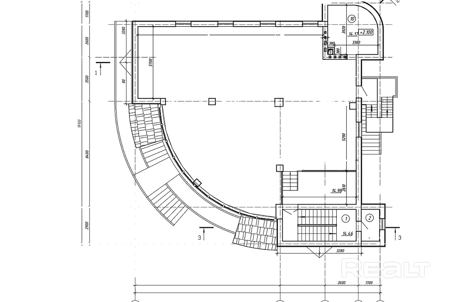
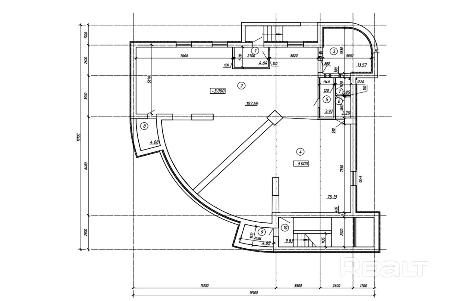
Готовность: 80% (1-2 этажи + мансарда), 65% (цоколь)
Площадь:
• Цокольный этаж –230 м2 индивидуальная планировка (глубина фундамента 6 м, подвод воды, окна, отдельные входы)
• 1 этаж – 220 м2 (стяжка, штукатурка, витражное окно, 2 входа, зона разгрузки)
• 2 этаж – 220 м2 (стяжка, штукатурка, возможность объединения с мансардой)
• Мансардный этаж – 140 м2
Коммуникации и особенности:
✔ Газовое отопление + отдельная котельная
✔ 2 кабеля по 40-45 кВт (электроснабжение)
✔ Утеплённый фасад
✔ Вент-трассы для гибкой планировки
✔ 2 Парковки и зона разгрузки
Финансовая выгода:
Объект близок к завершению – осталось лишь финишное оформление. Окупаемость – 6-7 лет!
Звоните для обсуждения всех деталей!
Преимущества:
• отдельные входы
• стены – кирпич, блоки, штукатурка
• пол – плиты, стяжка
• 2 стоянки
• круглосуточный доступ
Удобные подъездные пути – рядом остановка общественного транспорта.
Покупатель не оплачивает услуги риэлтерской организации!
Договор № 18/3 от 17.04.2025 по 16.04.2027
ООО «Сильван-Инвест», УНП 192927433, лицензия №02240/383, Министерство юстиции РБ, 24.09.2019.
Параметры объекта
- Тип объекта
Магазин
- Площадь участка
18.11 соток
- Площадь общая
810 м²
- Этажность
3
- Ремонт
Без отделки
- Электроснабжение
Есть
- Естественное освещение
Есть
- Вода
Есть
- Санузел
2 санузла
- Количество телефонов
Больше пяти
- Парковка
Есть
- Принадлежность объекта
Частная
- НДС
НДС нет (0%)
- Юридический адрес
Да
- Номер договора
18/3 от 16.04.2025
Оснащение
Оживленное место
ООО " Сильван - Инвест"
Контактное лицо
Примечание
Местоположение
- Область
- Район
- Населенный пункт
- Улица
- Номер дома
47/А
- Направление
Московское, 63.5 км от МКАД
- Координаты
54.20928316, 28.480211891
