Купить торговое помещение, г. Минск, ул. Немига, 3
от 518 288 р.
от 4 262 р.≈ от 1 500 $ за м²
Продажа
Следить за ценой
Торговое помещение
Тип
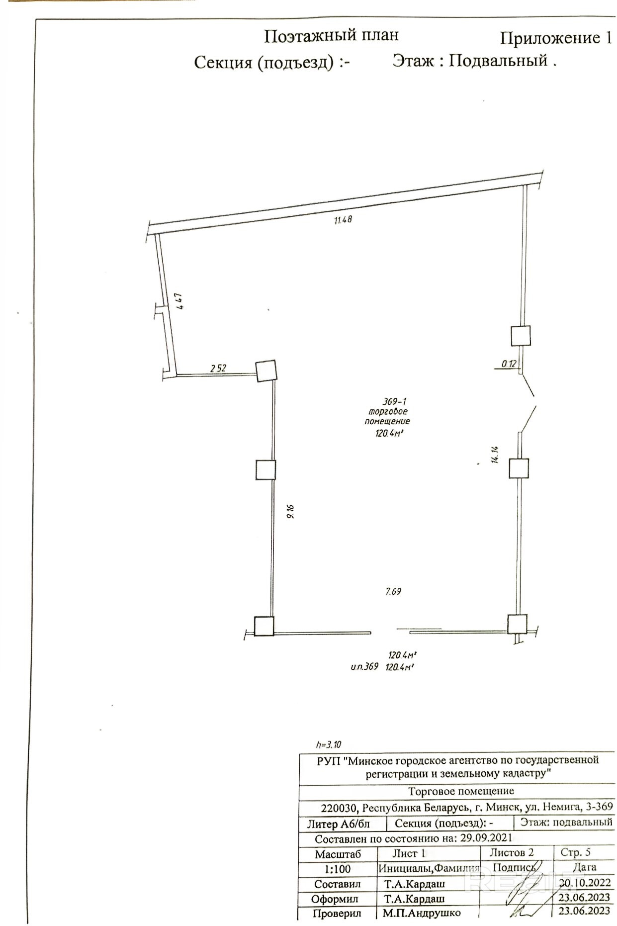
120.40 м²
Площадь
0
Этаж
05.01.2026ID 3991311
Параметры объекта
- Тип объекта
Торговое помещение
- Площадь общая
120.40 м²
- Этаж
0
- Принадлежность объекта
Частная
- НДС
НДС включен
- Расположение
В торговом центре
- Юридический адрес
Да
Продавец
Сергей Владимирович
Контактное лицо
Примечание
Прямая продажа от собственника (юридическое лицо), торговый центр в центре Минска, есть зачётный НДС
Местоположение
- Область
- Населенный пункт
- Улица
- Номер дома
3
- Район города
- Микрорайон
- Координаты
53.904, 27.5525
