Продается комплекс производственно-складских зданий в Минском районе!
от 610 000 р.
Тип
Площадь
Описание
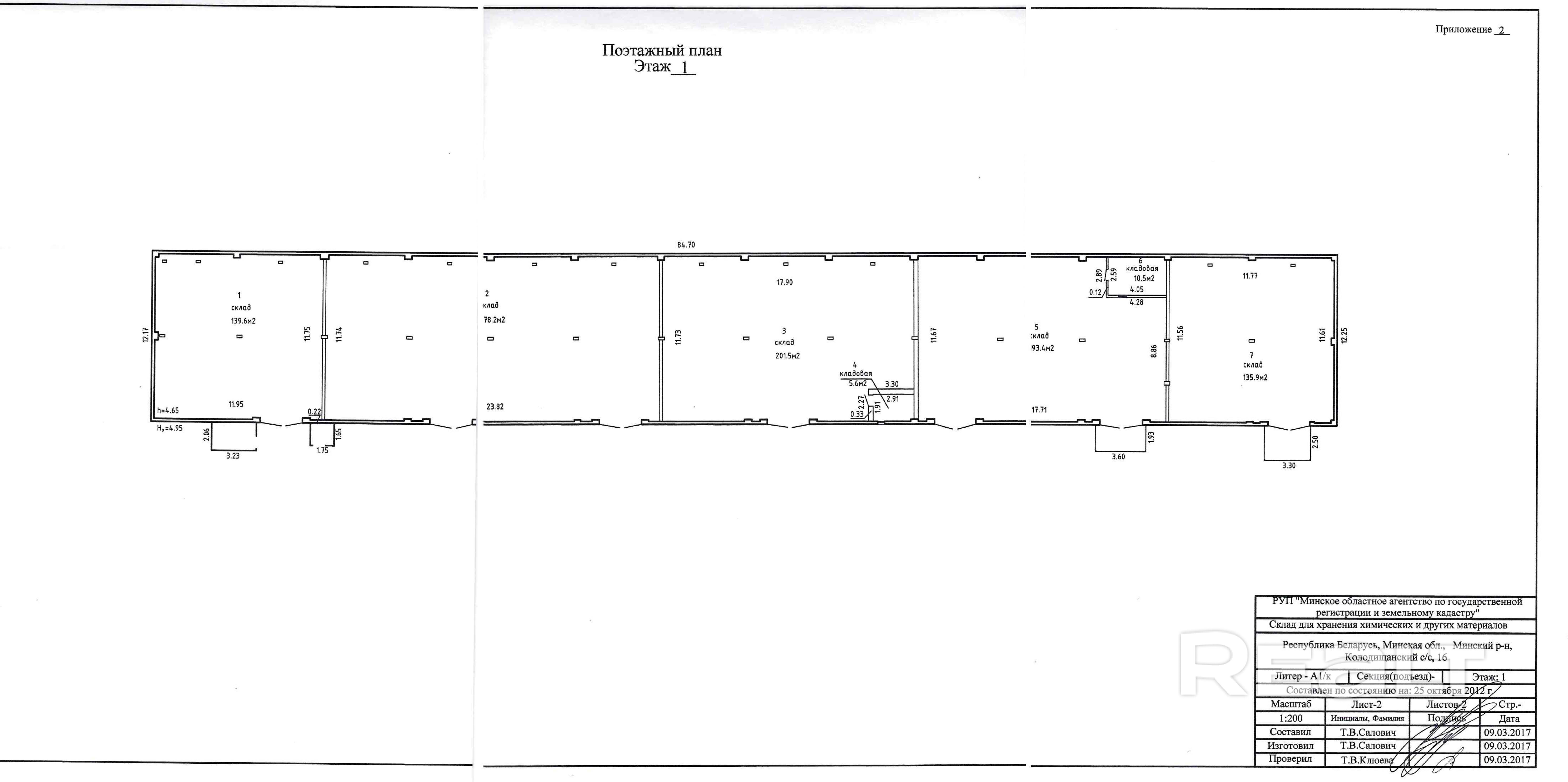
К продаже предлагается капитальное строение для размещения склада либо производства
Адрес: Минский район, Колодищанский с/с, 16
Площадь: капитальное строение 964,7 кв.м.
Коммуникации: электроэнергия
Наличие прилегающей территории
Преимущества:
∙ Удобный доступ: отличная транспортная доступность, близость к основным магистралям и транспортным узлам
∙ Помещение, подходящее для различных видов производственной и складской деятельности
∙ Возможность расширения и адаптации под ваши нужды
∙ Развитая инфраструктура: близость к городским коммуникациям и необходимым услугам
Для получения дополнительной информации и организации просмотра, пожалуйста, свяжитесь с нами по указанным контактам.
Продажа состоится через открытый аукцион.
Первоначальная стоимость лота 610 000,00 руб. с НДС.
Параметры объекта
- Тип объекта
Склад
- Площадь общая
964.70 м²
- Ремонт
Нормальный
- Электроснабжение
Есть
- Принадлежность объекта
Частная
- НДС
НДС включен
- Аукцион
Да
Продавец
Александра
Контактное лицо
Примечание
Местоположение
- Область
- Район
- Населенный пункт
- Номер дома
16
- Сельсовет
Колодищанский с/с
- Координаты
53.957059635, 27.801861619
