Сдается в аренду торговое помещение, пр-т Московский
34 р./м²
Тип
Площадь
Этаж
Описание
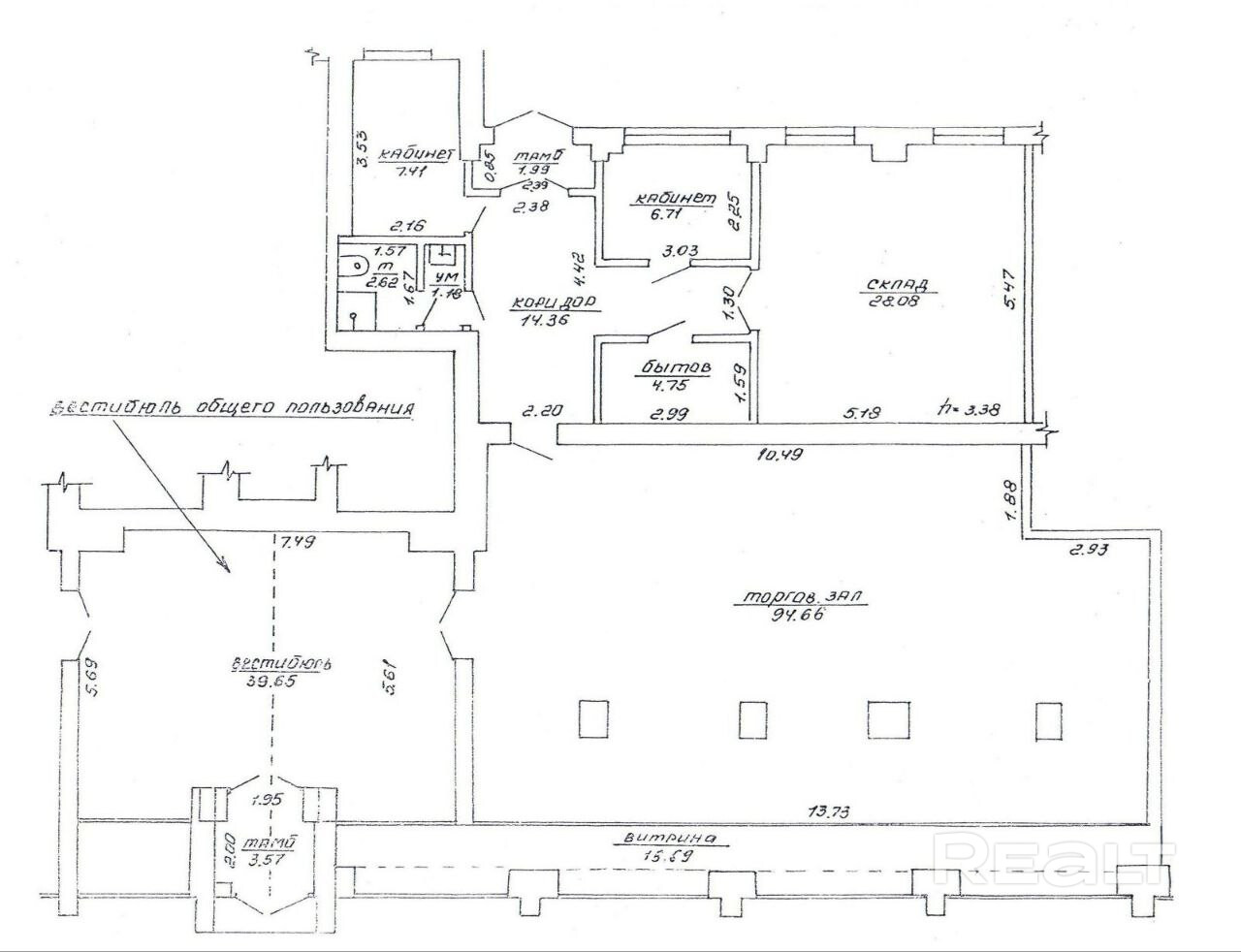
Сдается в аренду торговое помещение по адресу: пр-т Московский. Общая площадь — 199 кв.м., состоящее из пяти помещений, расположено на первом этаже жилого дома в центре города. Высота потолка — 3,38 м. Есть все необходимые коммуникации; нужен лишь косметический ремонт. Прилегающая территория — 0,77 соток. Подходит под разные виды бизнеса, высокий пешеходный трафик, удобная транспортная развязка, рядом площадь Победы. Стоимость указана с НДС.
Договор № 10/5а от 01.04.2026г. ООО «Агентство Уют и К». УНП 391850235. Лицензия от 04 апреля 2017 г., выдана бессрочно Министерством юстиции Республики Беларусь и зарегистрирована в едином реестре лицензий за № 34200000021798 на право осуществления деятельности по оказанию риэлтерских услуг.
Параметры объекта
- Тип объекта
Торговое помещение
- Площадь общая
199 м²
- Этаж
1
- Высота потолков
3 м
- Отопление
Есть
- Электроснабжение
Есть
- Естественное освещение
Есть
- Вода
Есть
- Санузел
Есть
- Принадлежность объекта
Частная
- НДС
НДС включен
- Расположение
В жилом доме
- Номер договора
10/5а от 31.03.2026
Оснащение
Оживленное место
Примечание
Местоположение
- Область
- Район
- Населенный пункт
- Улица
- Номер дома
8
- Район города
- Координаты
55.1834, 30.2062
