Купить дом, д. Запрудье, 34 (Сенненский р-н, Витебская область)
9 691 р.
Чистая продажа
Следить за ценой
Дом
Тип
25 сот
Участок
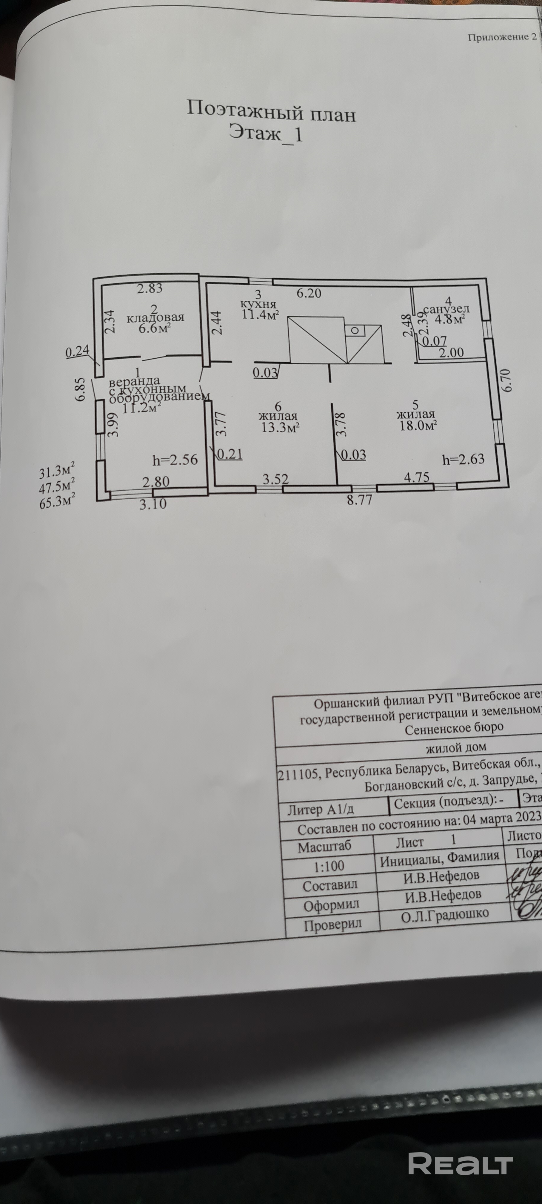
65 м²
Общая
37 м²
Жилая
11.05.2026ID 3925451
Параметры объекта
- Тип объекта
Дом
- Площадь участка
25 соток
- Площадь общая
65 м²
- Площадь жилая
37 м²
- Площадь кухни
8 м²
- Год постройки
1973
- Процент готовности
100
- Материал стен
Бревенчатый
- Материал крыши
Шифер
- Мебель
Есть
- Отопление
Печное
- Газ
Баллон
- Канализация
Есть
- Электроснабжение
Есть
- Вода
Колодец
- Гараж
Есть
- Статус земли
Частная собственность
- Возможен торг
Да
- Условия продажи
Чистая продажа
Инфраструктура
Водоем
Рядом лес
Сад
Хозпостройки
Продавец
Лариса
Контактное лицо
Примечание
Отвечу на сообщения в в а т с а п ,в а й б е р.Живописное место ,2 озеро в 1 км Богдановское ,Рубовское ,лес в 9 км от Сенно ,70 км от Витебска.Дом на окраине деревни.Дом деревянный с кирпичной верандой.Фундамента высокий ,дом стоит на горке.В доме отопление печное ,ванная комната с унитазом ,душ .кабиной ,унитазом выложена плиткой, бойлер ,электронасос.Есть гараж ,2 сарая в хорошем состоянии.Подходит для фермеров. Все вопросы по в а й б е р,в а т с а п.Отвечу на сообщения.Торг.
Местоположение
- Область
- Район
- Населенный пункт
- Номер дома
34
- Сельсовет
Богдановский с/с
- Координаты
54.864377989, 29.615262989
