Купить здание, г. Орша, ул. Виссариона Белинского, 40/а
от 3 р.
до 956 р.≈ до 350 $ за м²
Продажа
Следить за ценой
Здание
Тип
1 - 437.20 м²
Площадь
31.07.2025ID 3459245
Параметры объекта
- Тип объекта
Здание
- Площадь участка
36.16 соток
- Площадь общая
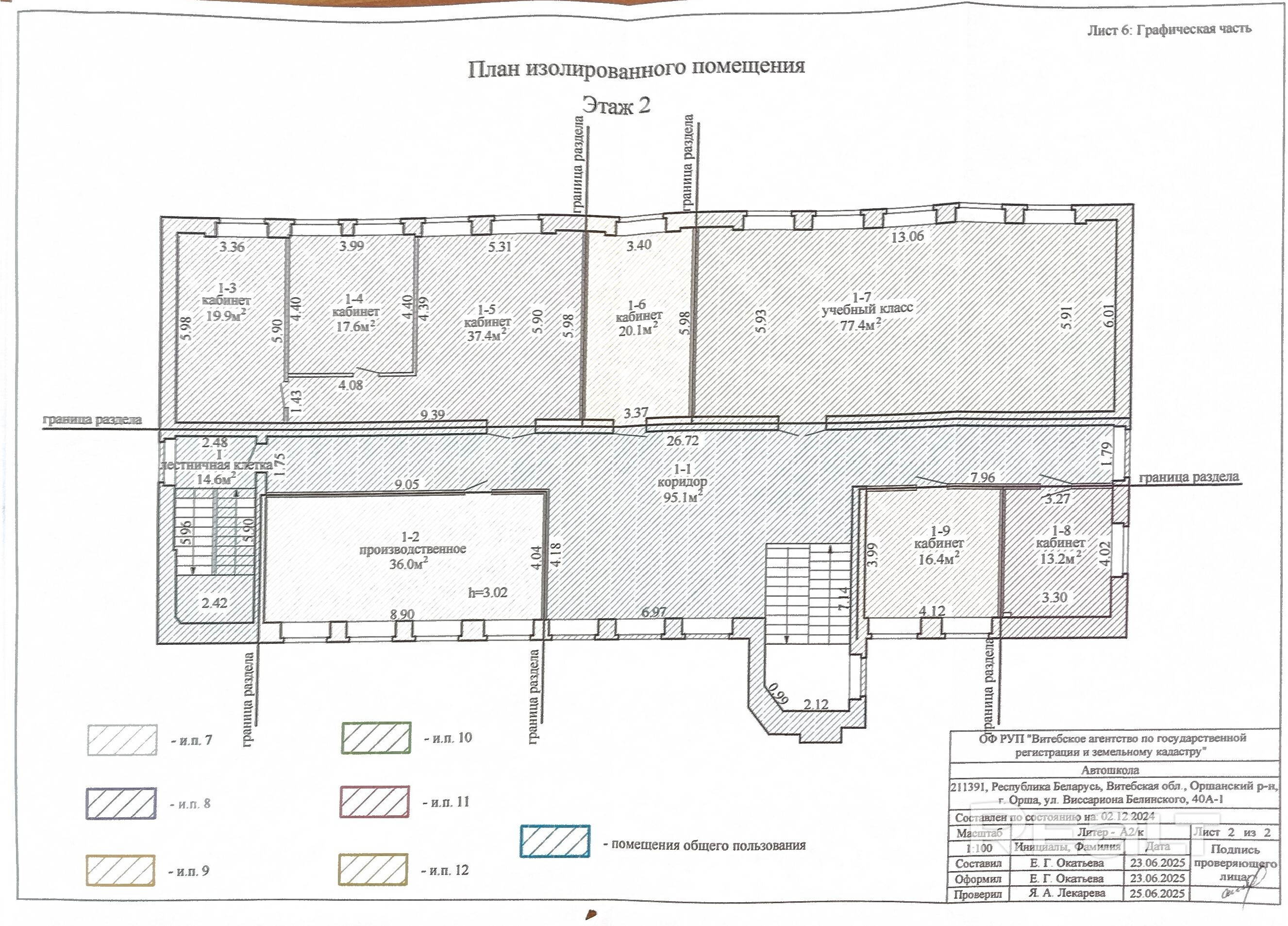
1 - 437.20 м²
- Этажность
2
- Год постройки
1990
- Раздельных помещений
11
- Материал стен
Кирпичный
- Высота потолков
3 м
- Ремонт
Нормальный
- Отопление
Есть
- Электроснабжение
Есть
- Естественное освещение
Есть
- Вода
Есть
- Газ
Есть
- Санузел
2 санузла
- Оборудование
Есть
- Количество телефонов
3 телефона
- Парковка
Есть
- Принадлежность объекта
Частная
- НДС
НДС нет (0%)
- Юридический адрес
Да
Оснащение
Оживленное место
Компьютерная сеть
Отдельный вход
Продавец
Татьяна
Контактное лицо
Примечание
Продается здание с парковкой полностью или каждое помещение по отдельности(11 отдельных помещений(имеются технические паспорта на каждое помещение)), в центре города Орша под офисы или магазины. Адрес: г.Орша, ул.Виссариона Белинского, дом 40а. Здание находится на улице, отличающийся высокой проходимостью пешеходного и автомобильного трафика. В шаговой доступности остановка общественного транспорта, авторынок, другие коммерческие объекты. Торг приветствуется
Местоположение
- Область
- Район
- Населенный пункт
- Номер дома
40/а
- Координаты
54.5277, 30.4314
