Готовый бизнес/кафе/гостиница в Лепеле
243 104 р.
- г. М-3
- На карте
Тип
Площадь
Этаж
Описание
Готовый бизнес (кафе «Маяк») на трассе Минск-Витебск, М-3, 150-ый километр.
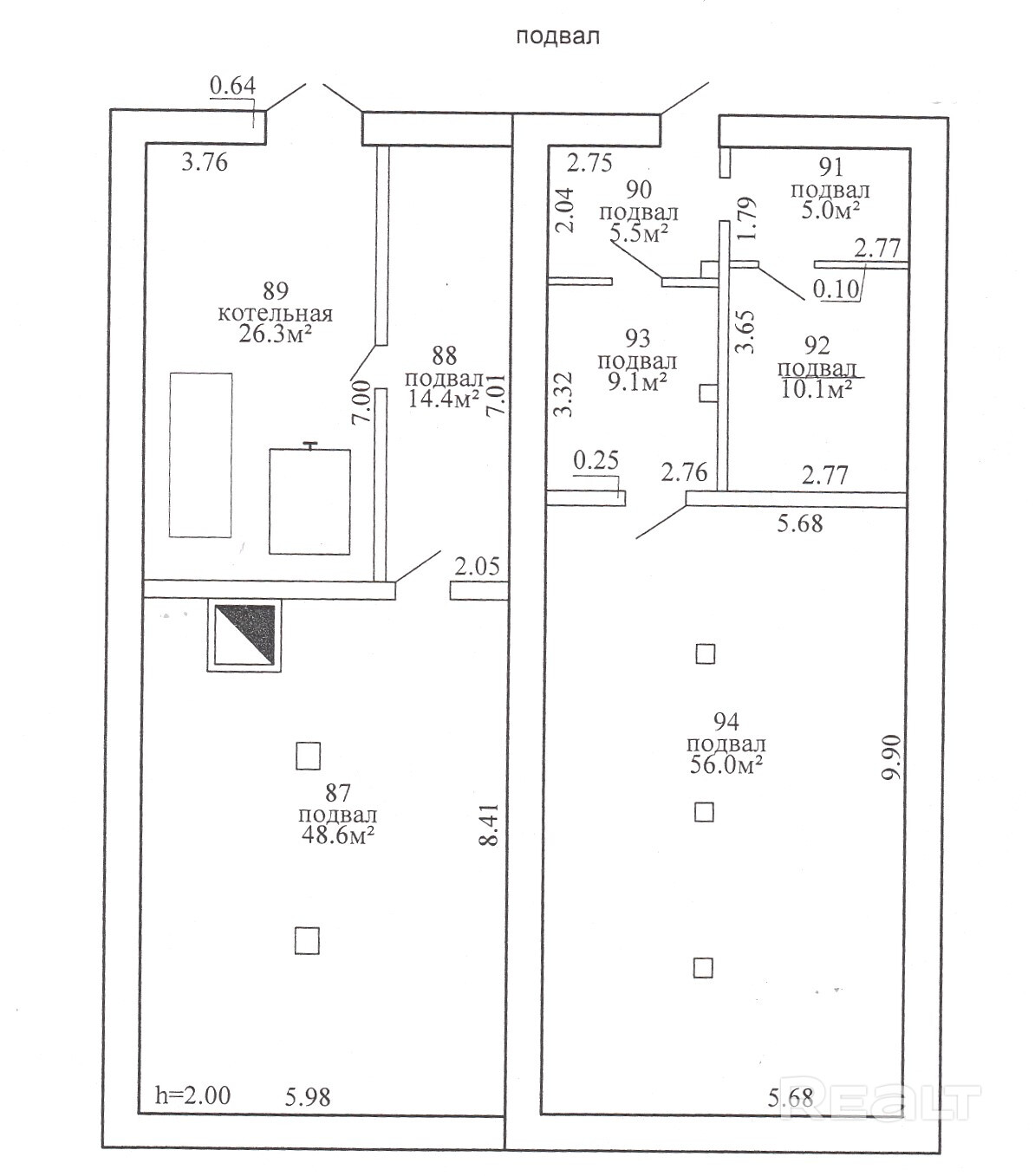
Год постройки – 2020. Материал стен – кирпич. Крыша – шифер. Этаж/этажность – 3/3. Общая площадь – 1039,2 м2, жилая – 869,8 м2.
Два смежных земельных участка:
1. Площадь (га) – 0.9574. Целевое назначение – для обслуживания здания мини-кафе;
2. Площадь (га) – 0.0195. Целевое назначение – для размещения объектов коммунального хозяйства.
Земля - право пожизненной аренды. Кроме самого кафе-гостиницы предусмотрено место для парковки легковых и грузовых автомобилей, а также баня и выход к пруду.
Само здание включает:
· 1-ый этаж: кафе-бар, банкетный зал, летняя терраса, шашлычная, склад, кухни, санузлы, душевые. Общая площадь – 583,4 м2, жилая – 407,2 м2;
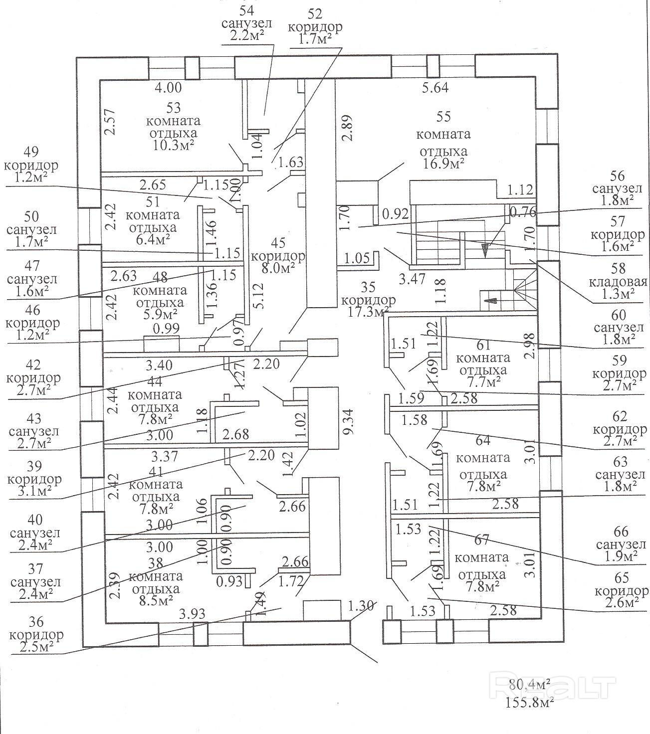
· 2-ый этаж: комната отдыха (количество – 10 единиц), санузел (количество – 10 единиц). Общая площадь – 155,8 м2, жилая – 80,4 м2;
· 3-ый этаж: комната отдыха (количество – 9 единиц), санузел (количество – 6 единиц). Общая площадь – 139,5 м2, жилая – 111,4 м2.
Целевая аудитория: водители-дальнобойщики и туристы. Хороший средний чек по клиентам с возможностью роста.
Кафе широко известно в городе Лепель. Пользуется нескончаемым спросом, что говорят высокие средние оценки рейтинга в интернете и на картах Яндекс, Google, а также количество постоянных клиентов. Круглосуточная работа заведения, позволяющая достигать высоких показателей прибыльности.
Возможные перспективы роста бизнеса и развития бренда в интернете: отделка 3-ого этажа для увеличения числа спальных мест для гостиницы, создание сайта и социальных сетей с последующим продвижением, а также увеличение земельной территории для увеличения бизнеса.
Успейте купить готовый бизнес с быстрой окупаемостью и перспективами развития!
Ещё больше объектов недвижимости в нашем Telegram-канале @urielt_minsk
Параметры объекта
- Тип объекта
Помещение
- Площадь участка
97.69 соток
- Площадь общая
1039.20 м²
- Этаж / этажность
3 / 3
- Год постройки
2020
- Раздельных помещений
19
- Материал стен
Кирпичный
- Высота потолков
2.7 м
- Ремонт
Хороший
- Отопление
Есть
- Электроснабжение
Есть
- Естественное освещение
Есть
- Вода
Есть
- Газ
Есть
- Санузел
Есть
- Оборудование
Есть
- Принадлежность объекта
Частная
- Номер договора
117/1 от 31.07.2025
Примечание
Местоположение
- Область
- Район
- Населенный пункт
Г. М-3
- Координаты
54.839194, 28.671583
