Снять производство, г. Гродно, ул. Чайкиной, 4
от 14 р./м²
Аренда
Следить за ценой
Производство
Тип
1250 м²
Площадь
3 из 3
Этаж
04.05.2026ID 3980743
Параметры объекта
- Тип объекта
Производство
- Площадь общая
1250 м²
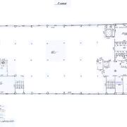
- Этаж / этажность
3 / 3
- Высота потолков
4 м
- Ремонт
Нормальный
- Отопление
Есть
- Электроснабжение
380В
- Естественное освещение
Есть
- Вода
Есть
- Санузел
Есть
- Принадлежность объекта
Частная
- НДС
НДС включен
- Юридический адрес
Да
Арендодатель
Александр
Контактное лицо
Примечание
Сдаётся в аренду просторное производственное помещение площадью 1250 м², расположенное на 3 этаже. Отлично подходит под швейный цех, сборочное/упаковочное производство, лёгкую промышленность, склад-экспедицию, мастерские и т.п. Грузовой подъёмник (удобно для сырья и готовой продукции) Электроснабжение 380В Отопление Освещение по всему помещению Удобная планировка под расстановку линий/рабочих мест Просмотр — по предварительной договорённости.
Местоположение
- Область
- Район
- Населенный пункт
- Улица
- Номер дома
4
- Район города
- Координаты
53.6631, 23.7959
