Снять торговое помещение, г. Островец, пер. Октябрьский, 3
1 790 - 2 150 р.
14 - 17 р.≈ 5 - 6 $ за м²
Аренда
Следить за ценой
Торговое помещение
Тип
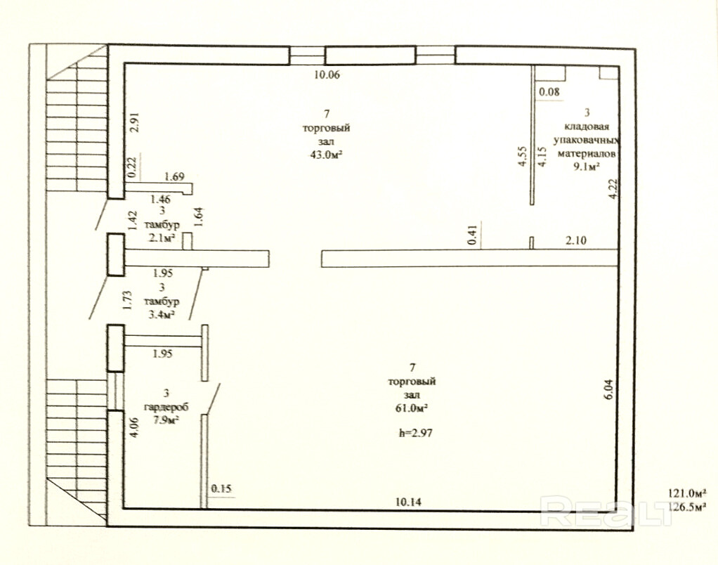
121 - 126.50 м²
Площадь
1 из 2
Этаж
30.01.2025ID 3612663
Параметры объекта
- Тип объекта
Торговое помещение
- Площадь участка
3.5 сотки
- Площадь общая
121 - 126.50 м²
- Этаж / этажность
1 / 2
- Год постройки
2017
- Класс
A
- Раздельных помещений
1 - 3
- Материал стен
Монолитный
- Высота потолков
3 м
- Ремонт
Хороший
- Отопление
Есть
- Электроснабжение
Есть
- Электрическая мощность
20 кВт
- Естественное освещение
Есть
- Вода
Есть
- Газ
Есть
- Санузел
Есть
- Оборудование
Есть
- Количество телефонов
1 телефон
- Парковка
Есть
- Принадлежность объекта
Частная
- НДС
НДС нет (0%)
- Расположение
В торговом центре
- Юридический адрес
Да
Оснащение
Видеонаблюдение
Оживленное место
Отдельный вход
Интернет
Компьютерная сеть
Арендодатель
Валентин
Контактное лицо
Примечание
Цокольный этаж торгового здания. 126м2. Помещение со всеми удобствами и коммуникациями. Большой проездной трафик. Парковка. В самом здании организована торговля и услуги, что обеспечивает дополнительную стабильную посещаемость людьми. Отличное место для вашего бизнеса. Звоните
Местоположение
- Область
- Район
- Населенный пункт
- Улица
- Номер дома
3
- Координаты
54.609868718, 25.962180111
