Снять торговое помещение, г. Лида, ул. Коммунистическая, 50
от 10 р./м²
Аренда
Следить за ценой
Торговое помещение
Тип
89 м²
Площадь
1 из 1
Этаж
25.06.2025ID 3638529
Описание
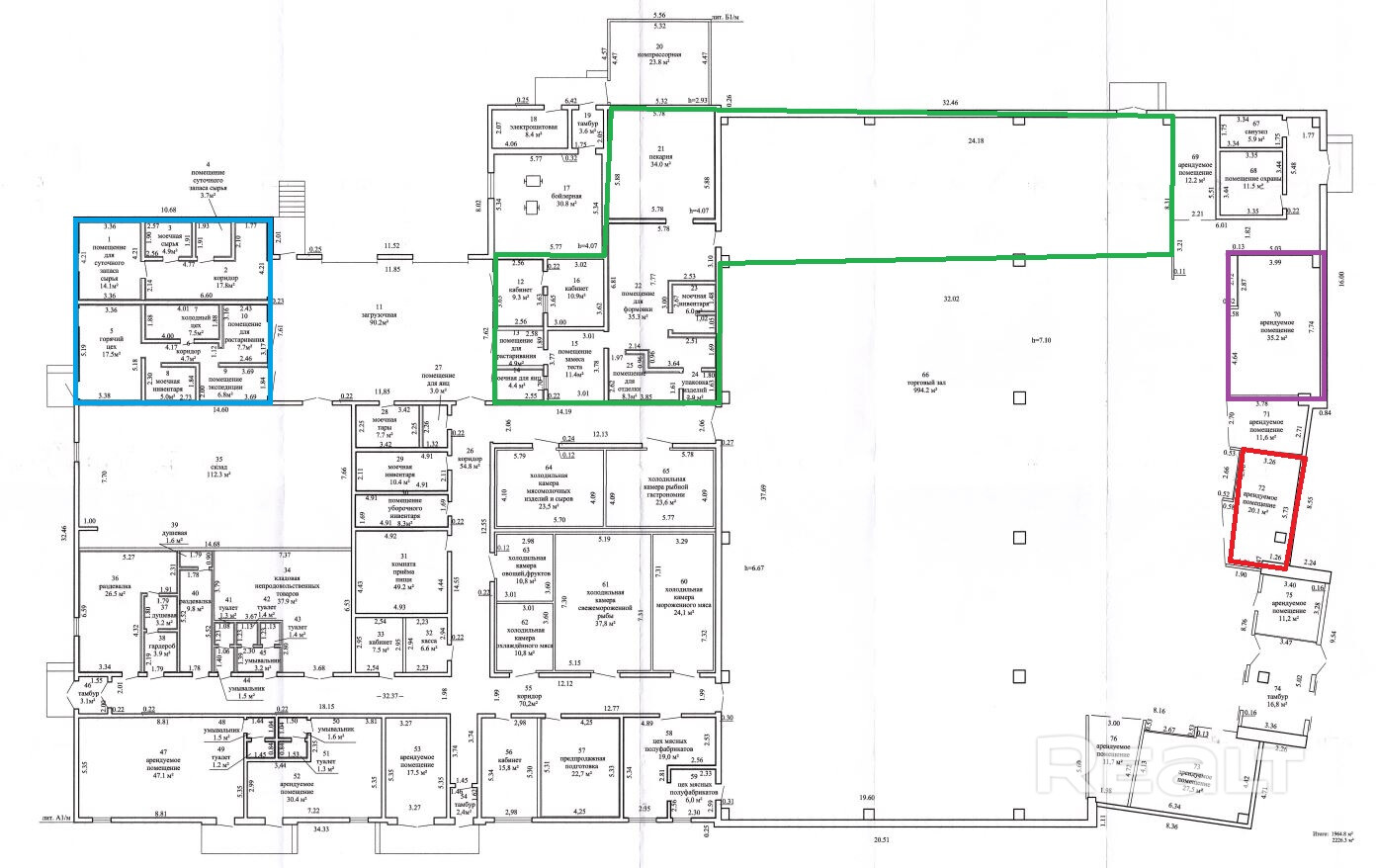
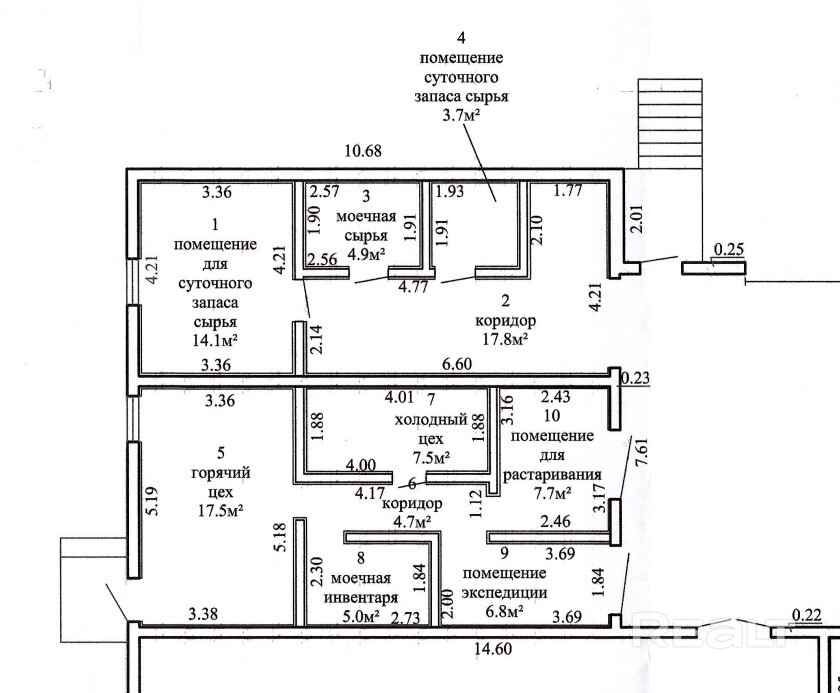
Сдам помещение 89 м2 в торговом центре под производственный цех, склад, оказание услуг, в том числе ритуальных, ломбард, торговлю.
Отдельный вход, рампа.
В помещении сделан ремонт, есть возможность размещения офиса или кабинета рядом.
Параметры объекта
- Тип объекта
Торговое помещение
- Площадь общая
89 м²
- Этаж / этажность
1 / 1
- Ремонт
Хороший
- Отопление
Есть
- Электроснабжение
Есть
- Естественное освещение
Есть
- Вода
Есть
- Санузел
Есть
- Парковка
Есть
- Принадлежность объекта
Частная
- НДС
НДС не включен
- Расположение
В торговом центре
Оснащение
Видеонаблюдение
Оживленное место
Арендодатель
Алёна
Контактное лицо
Примечание
Сдам помещение 89 м2 в торговом центре под производственный цех, склад, оказание услуг, в том числе ритуальных, ломбард, торговлю. Отдельный вход, рампа. В помещении сделан ремонт, есть возможность размещения офиса или кабинета рядом.
Местоположение
- Область
- Район
- Населенный пункт
- Улица
- Номер дома
50
- Координаты
53.8792, 25.2756
