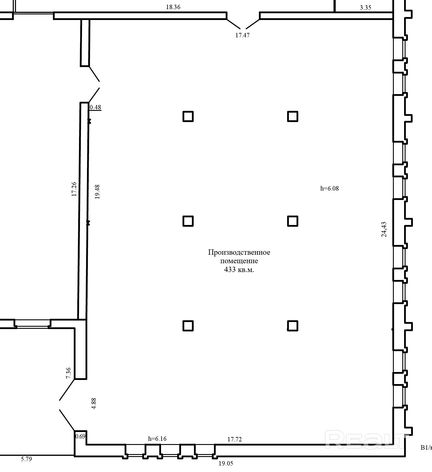
Сдаётся помещение 225 кв.м. под склад, производство и т.п
от 15 р./м²
Аренда
Следить за ценой
Склад+офис
Тип
225 м²
Площадь
1 из 1
Этаж
04.05.2026ID 4048622
Параметры объекта
- Тип объекта
Склад+офис
- Площадь общая
225 м²
- Этаж / этажность
1 / 1
- Раздельных помещений
1
- Высота потолков
4 м
- Отопление
Есть
- Электроснабжение
380В
- Принадлежность объекта
Частная
- НДС
НДС включен
- Юридический адрес
Да
Оснащение
Отдельный вход
Рампа
Арендодатель
Александр
Контактное лицо
Примечание
Сдаётся помещение под склад, производство и т.п., 225 кв.м., высот а потолков 6 м. отдельный вход, рампа, юридический адрес.
Местоположение
- Область
- Район
- Населенный пункт
- Улица
- Номер дома
4
- Микрорайон
- Координаты
53.662694, 23.79509
