Гостинично-ресторанный комплекс с зоной SPA в г. Сморгонь
8 491 500 р.
3 688 р.≈ 1 303 $ за м²
Тип
Площадь
Этаж
Описание
Продажа современного гостинично-ресторанного комплекса с зоной «Spa»:
г. Сморгонь, ул. Виктора Ровдо, 5.
Комплекс «PanoramicSPAHotel» расположен в 5 минутах от центра города, вся необходимая инфраструктура для клиентов гостиницы находится в шаговой доступности: супермаркет «Марцiн», остановки общественного транспорта, станция БЖД «Молодежный».
Описание объекта:
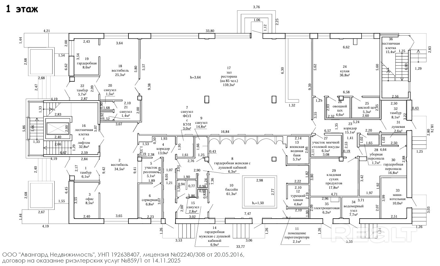
- общая площадь комплекса – 2301,8 кв. м;
- площадь земельного участка – 0,2497 га;
- имеется собственная парковка на 23 машино-места (2 места оборудованы станцией для зарядки электромобилей);
- территория комплекса ограждена и облагорожена с использование ландшафтного дизайна.
Комплекс включает в себя:
- гостиницу с зоной SPA и рестораном;
- мини-кафе на 14 посадочных мест;
- сезонную кухню.
Гостиница.
Гостиница действующая! Имеется собственный сайт для бронирования номеров и уже сформирован хороший рейтинг на поисковых платформах.
Представляет собой 4-х этажное здание 2025 года постройки.
Включает в себя 38 укомплектованных двухместных номеров со свежим ремонтом.
На первом этаже здания расположена зона SPA и ресторан.
В зоне SPA имеется крытый бассейн, японская водяная баня и турецкий хамам.
Ресторан рассчитан на 44 посадочных места.
Все объекты общественного питания, расположенные на территории комплекса, оснащены современным оборудованием и полностью соответствуют санитарно-эпидемиологическим требованиям, установленным законодательством Республики Беларусь для объектов общественного питания.
Инженерные коммуникации:
- безбарьерная среда;
- действующий лифт;
- централизованная система водоснабжения/канализации (К1 и К3);
- электрические системы отопления;
- приточно-вытяжная система вентиляции;
- система кондиционирования воздуха;
- 230/400В, проложен кабель 0,4 кВ;
- проведен газопровод;
- система видеонаблюдения по периметру здания;
- установлена система автоматической пожарной защиты;
- заведена телефонная сеть, оптоволокно, телевизионная сеть.
Звоните! Дадим более подробную информацию.
Поможем продать ваш объект для покупки этого
Новые объекты в аренде и продаже каждый день
Бесплатный выезд риэлтора для оценки объекта
Поможем проверить самостоятельно найденный объект - услуга Свой Вариант
Параметры объекта
- Тип объекта
Готовый бизнес
- Площадь общая
2301.80 м²
- Этаж / этажность
1 / 4
- Год постройки
2025
- Раздельных помещений
50
- Материал стен
Блочный
- Ремонт
Хороший
- Отопление
Есть
- Электроснабжение
Есть
- Естественное освещение
Есть
- Вода
Горячая
- Санузел
Есть
- Количество телефонов
1 телефон
- Парковка
Есть
- Принадлежность объекта
Частная
- НДС
НДС включен
- Номер договора
859/1 от 13.11.2025
Оснащение
Кондиционер
Сигнализация
Видеонаблюдение
Интернет
Отдельный вход
Готовый бизнес
Примечание
Местоположение
- Область
- Район
- Населенный пункт
- Улица
- Номер дома
5
- Координаты
54.4742, 26.4088
