Блокированный дом в ЖК Гранд
329 360 р.
Тип
Участок
Общая
Жилая
Описание
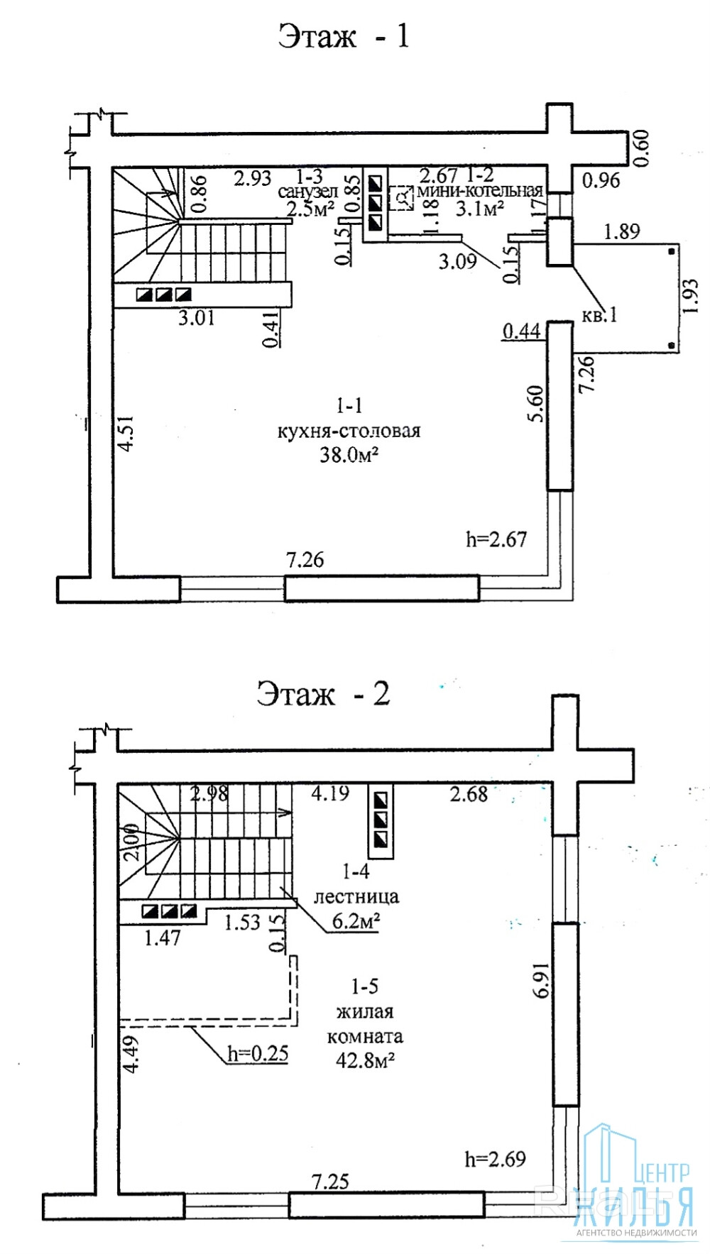
Двухуровневая квартира с собственным участком в ЖК «ГРАНД».
В жилом комплексе «ГРАНД» предлагаются двухуровневые квартиры свободной планировки в современных квадрохаусах (отдельностоящий таунхаус на 4 квартиры).
- Закрытая территория — доступ только для собственников
- Собственная парковка
- Откатные ворота — безопасность и комфорт для всей семьи
Площадь от 92 до 95м2.
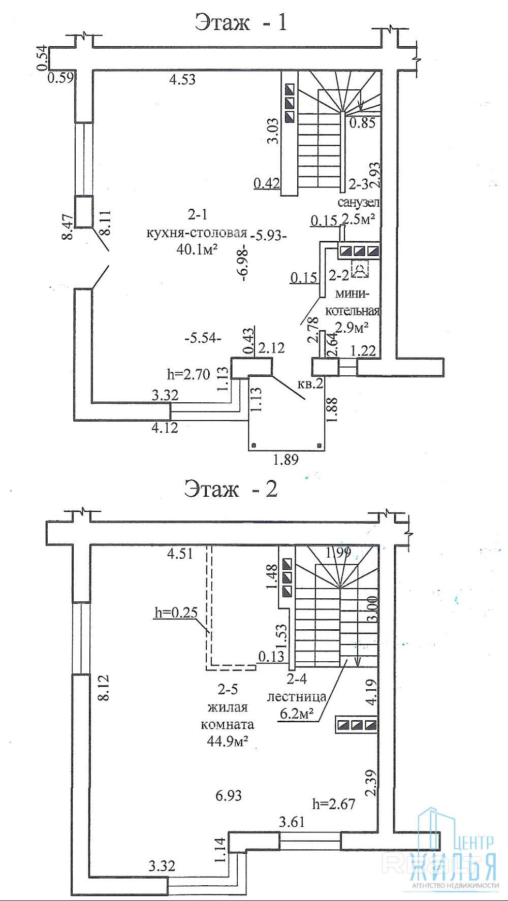
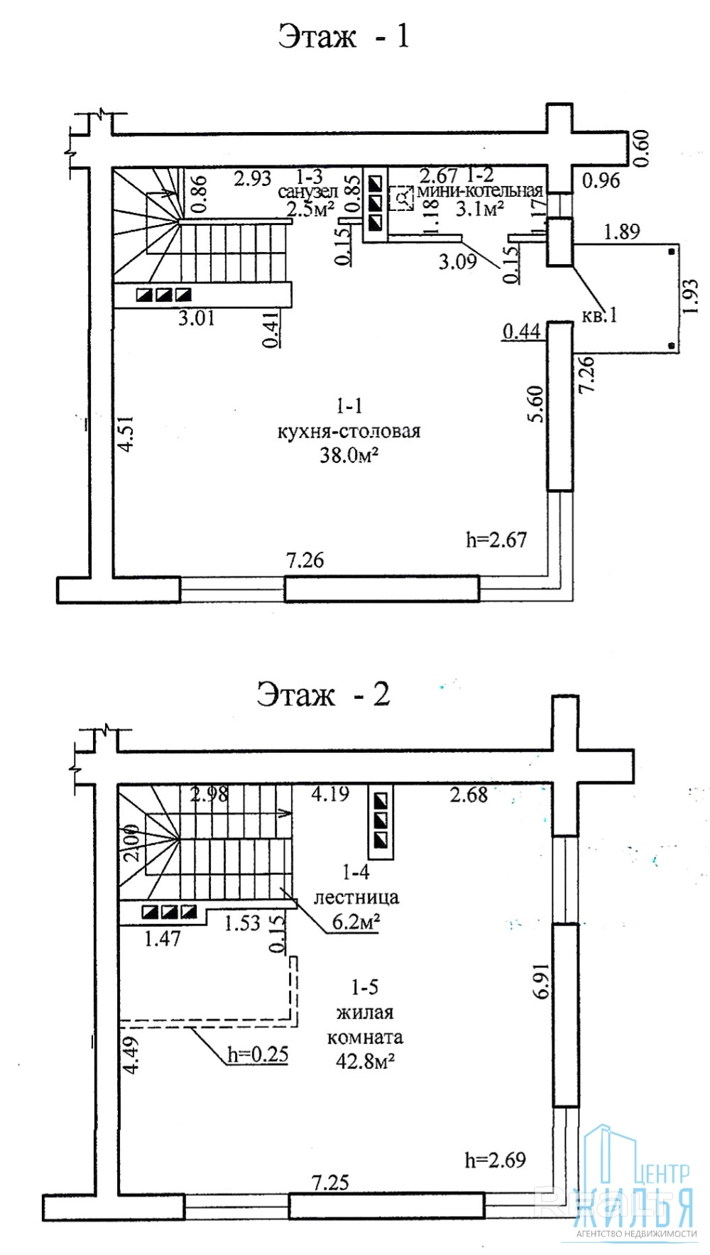
Планировка:
1 этаж:
— кухня-гостиная
— санузел
— котельная
— прихожая
2 этаж:
— 3 изолированные комнаты
— санузел
Собственный земельный участок у каждой квартиры
Идеально под зону отдыха, барбекю, каркасный бассейн, шезлонги и летнюю террасу.
Технические характеристики:
- черновая отделка
- свободная планировка
- бетонные перекрытия
- стены — газосиликатный блок
- монолитная лестница на второй этаж
- собственная котельная с газовым котлом и бойлером
Возможна рассрочка от застройщика в белорусских рублях на 2 года. Первоначальный взнос от 40%.
Организуем показ в удобное для вас время.
Звоните — с радостью ответим на все вопросы!
Параметры объекта
- Тип объекта
Дом
- Площадь участка
3 сотки
- Площадь общая
92 м²
- Площадь жилая
42.6 м²
- Год постройки
2025
- Процент готовности
100
- Статус земли
Частная собственность
- Условия продажи
Чистая продажа
- Номер договора
30/3 от 16.11.2025
Примечание
Местоположение
- Область
- Район
- Населенный пункт
- Улица
- Номер дома
10/Б
- Район города
- Координаты
53.7188, 23.8171
