Дом возле леса
331 875 р.
Тип
Участок
Общая
Жилая
Описание
Продается перспективный объект незавершенного строительства (дом под крышей) в м-не Погораны.
Первая линия у леса!
Дом мансардного типа в стадии незавершенного строительства. Это отличная возможность для тех, кто хочет создать дом своей мечты с учетом индивидуальных планировок и отделки, сэкономив время и средства на самой сложной стадии — возведении коробки.
Помимо основного дома на участке расположены гараж, хозпостройка с возможностью переоборудования под баню (коммуникации введены)
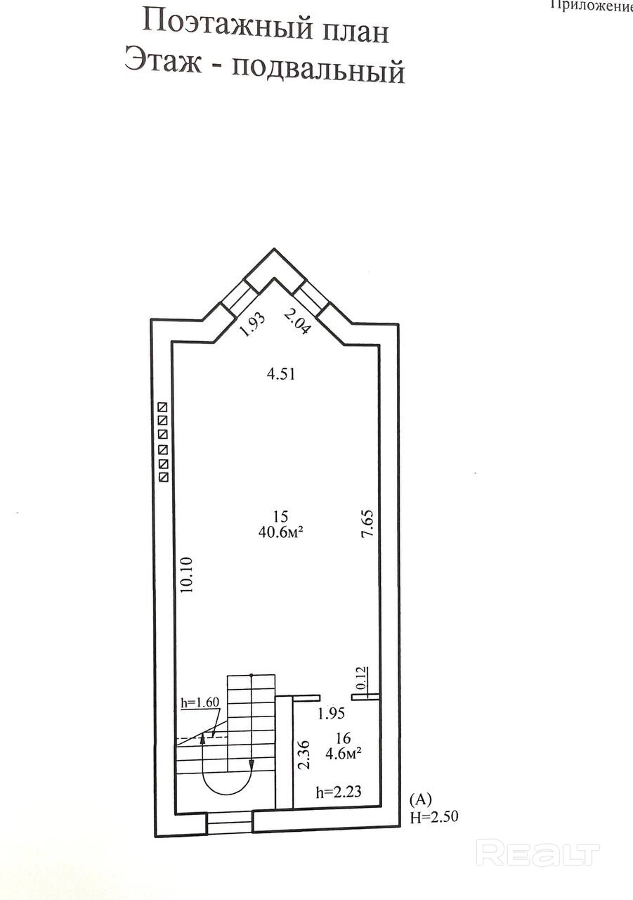
Что уже сделано (готовность 74%):
1. Фундамент: железобетонные блоки
2. Коробка: возведены стены из газосиликтных блоков , утеплены и оштукатурены.
Перекрытия - ж/б плиты.
3. Кровля: смонтирована стропильная система, покрыта металлочерепицей с шумопоглащением.
4. Окна и двери: установлены окна ПВХ и входная дверь.
5. Коммуникации :
Смонтирована электропроводка в доме и в хозблоке.
Газ, вода в доме.
Центральная канализация.
Участок:
12,27 сотки в праве пожизненного наследуемого владения.
· Все самые сложные и дорогостоящие этапы строительства уже позади.
· Полный пакет проектной документации.
· Чистые юридические документы: право собственности на землю и на объект незавершенного строительства.
· Участок в живописном, тихом месте с хорошей транспортной доступностью.
· Возможность закончить строительство в кратчайшие сроки.
Возможна покупка с использованием кредита.
Звоните, чтобы договориться о просмотре.
Параметры объекта
- Тип объекта
Дом
- Площадь участка
12.28 соток
- Площадь общая
324.7 м²
- Площадь жилая
320 м²
- Уровней в доме
2
- Процент готовности
70
- Новостройка
Да
- Материал стен
Блок-комнаты
- Отопление
На газу
- Газ
Есть
- Канализация
Центральная
- Электроснабжение
Есть
- Вода
Центральный водопровод
- Статус земли
Частная собственность
- Условия продажи
Чистая продажа
- Номер договора
98/2 от 27.11.2025
Инфраструктура
Рядом лес
Примечание
Местоположение
- Область
- Район
- Населенный пункт
- Улица
- Номер дома
20
- Район города
- Координаты
53.630508088, 23.91410505
