Стильный таунхаус в ЖК «Белые Росы». В современном районе Девятовка-7
502 313 р.
2 709 р.≈ 968 $ за м²
Общая
Жилая
Этаж
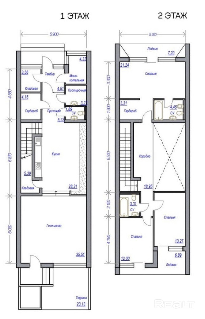
Описание
При строительстве использовались высококачественные материалы: монолитный каркас, экологичные керамзитобетонные блоки с высокой шумоизоляцией, фальцевая кровля, клинкерная плитка.
Все это придает дому элегантность и изысканность.
Светлые и просторные помещения с панорамным оконным остеклением из профиля SalamanderBluEvolution и энергосберегающими стеклопакетами, выполненные в современном стиле. Большая кухня-гостиная со вторым светом создают атмосферу уюта и комфорта.
В доме все центральные сети: газоснабжение, электроснабжение, водоснабжение, канализация. На территории предусмотрена система видеонаблюдения. Также в доме имеется: индивидуальная мини-котельная, постирочная, теплые полы в комбинации с конвекторным отоплением для Вашего домашнего тепла и комфорта.
О квартале:
Закрытая территория с ландшафтным дизайном, идеально подходящая для отдыха на свежем воздухе. Каждый таунхаус имеет собственный участок 0,2 сотки.
Подъезд к домам асфальтированный.
В шаговой доступности: гипермаркеты, детские сады, школы (с бассейном), магазины, аптеки, банки, поликлиника, почтовое отделение, парк, стадион, и многое другое. На автомобиле 5 минут до центра города, ж/д и автовокзала.
Звоните! Покажем в удобное для вас время.
Покупая этот объект недвижимости, вы будете уверены в безопасности и надежности сделки.
Поможем продать вашу недвижимость для покупки этой квартиры. Возможна покупка в кредит и рассрочку!
ООО «ЭТАЖИ юнайтед»
УНП: 193673318
Договор 2369/1 от
Лицензия на оказание риэлтерских услуг №02240/460 МЮ РБ от 03.04.2023
Параметры объекта
- Количество комнат
4
- Раздельных комнат
4
- Площадь общая
185.5 м²
- Площадь жилая
118.1 м²
- Год постройки
2025
- Этаж / этажность
2 / 2
- Тип дома
Монолитный
- Балкон
Балкон и лоджия
- Ремонт
Строительная отделка
- Высота потолков
3.5 м
- Санузел
2 и более
- Собственность
Частная
- Условия продажи
Чистая продажа
- Номер договора
2369/1 от 02.11.2025
Удобства
Телефонная сеть
Интернет
Примечание
Местоположение
- Область
- Район
- Населенный пункт
- Улица
- Номер дома
22
- Район города
- Координаты
53.7115, 23.8687
