Купить 1-комнатную квартиру, г. Гродно, ул. Фолюш, 15/204а
155 103 р.
3 747 р.≈ 1 353 $ за м²
Общая
Жилая
Кухня
Этаж
Описание
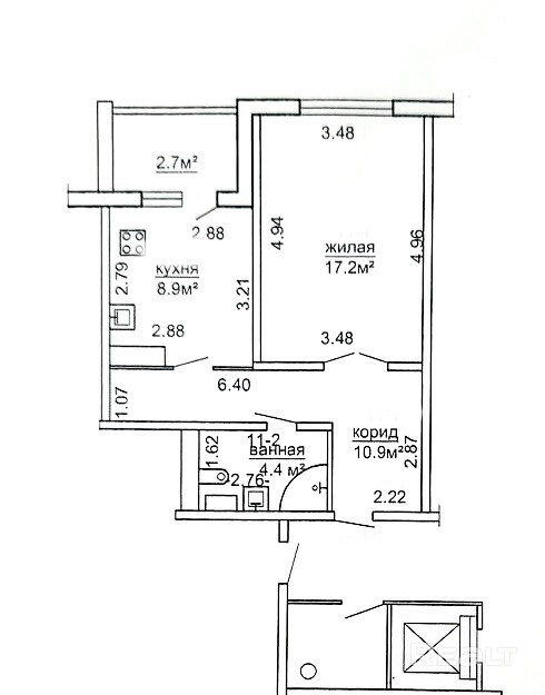
Уютная 1-комнатная квартира в экологически чистом районе, с хорошим ремонтом, дом 2006гп, этаж 4/9, квартира не угловая, светлая и теплая. Полностью готова к проживанию, продается со всей мебелью, включая встроенную кухню с газовой плитой, вытяжкой. Площадь квартиры по СНБ-44,1 м.кв. Отличная планировка, большая жилая комната-17,2м.кв., большие прихожая и коридор. Стеклопакеты. Металлическая входная дверь. Межкомнатные двери деревянные. Счетчики учета воды и газа; домофон. Потолок снежка. Пол ламинат, плитка. Стены обои, в кухне покраска. Большая лоджия застеклена. Имеется кладовая на этаже. Чистый и ухоженный подъезд. Хорошее месторасположение дома, зеленый и чистый двор, детская площадка, стоянка для авто, развитая инфраструктура, в шаговой доступности торговые объекты, школа, почта, аптека, конечная остановка общественного транспорта. Удобно добираться в любую точку города. Зеленая зона, рядом река Лососянка. Квартира идеально подходит как для проживания, так и для сдачи в аренду.Торги. Быстрый выход на сделку.
Параметры объекта
- Количество комнат
1
- Площадь общая
41.4 м²
- Площадь жилая
17.2 м²
- Площадь кухни
8.9 м²
- Площадь по СНБ
44.1 м²
- Год постройки
2006
- Этаж / этажность
4 / 9
- Тип дома
Панельный
- Балкон
Лоджия
- Ремонт
Хороший
- Санузел
Совмещенный
- Возможен торг
Да
- Собственность
Частная
- Условия продажи
Чистая продажа
Продавец
ООО "ЦИАН Адв""
Контактное лицо
Примечание
Местоположение
- Область
- Район
- Населенный пункт
- Улица
- Номер дома
15/204а
- Район города
- Координаты
53.661179, 23.777094
