Административно-торговое помещение в новом ЖК "NewCity"
391 406 р.
5 441 р.≈ 1 920 $ за м²
Тип
Площадь
Этаж
Описание
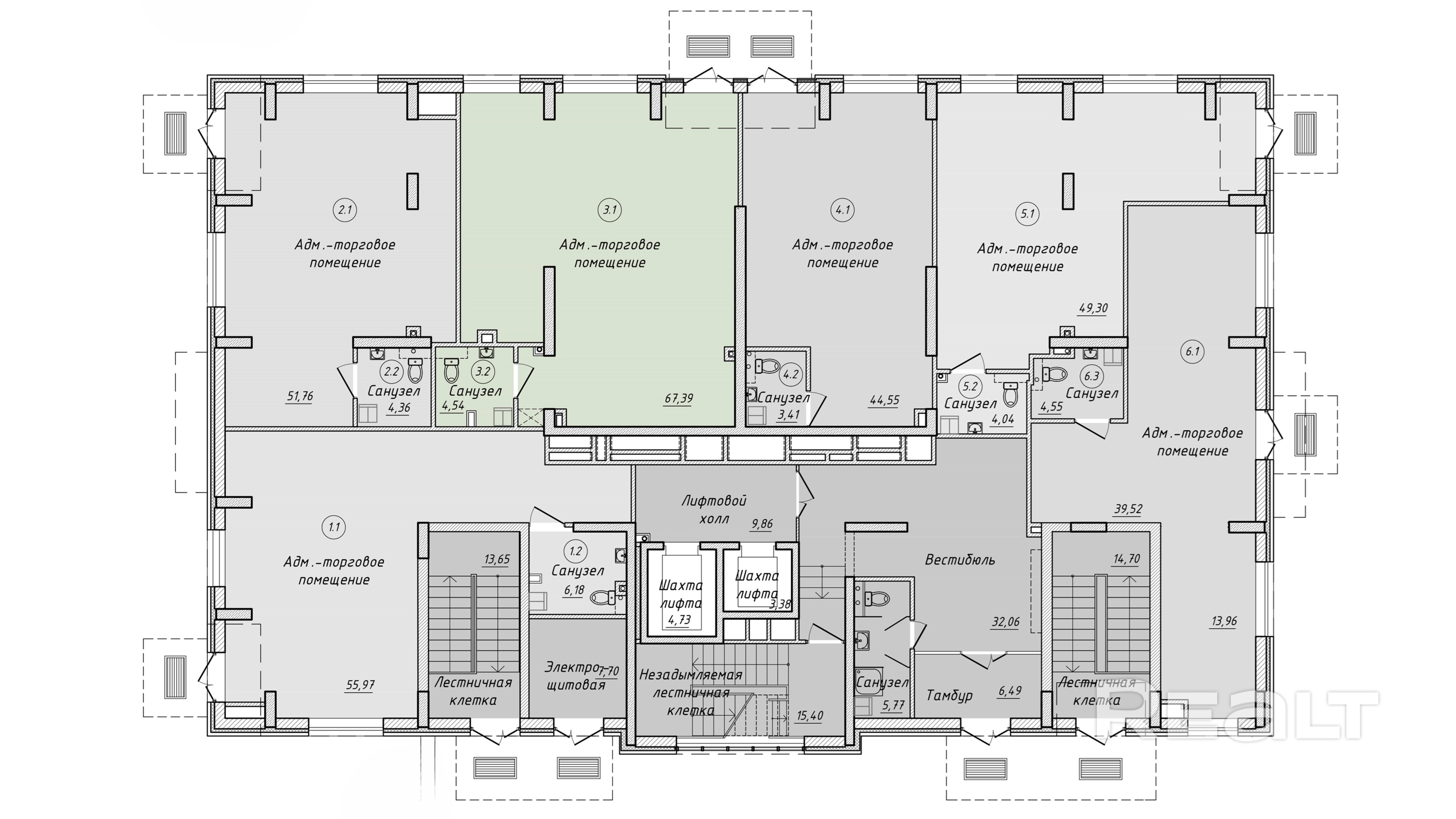
В жилом комплексе NEWCITY предлагаются коммерческие помещения со строительной отделкой/ Установлены оконные блоки из ПВХ-профиля с двухкамерными стеклопакетами, лоджии остеклены панорамными витражами. В санузлах установлен унитаз. Электрическая разводка произведена с установкой розеток и выключателей, предусмотрена подводка оптоволоконной сети, во всех помещениях есть счетчики индивидуального учета расхода воды и электроэнергии. Отопление организовано с горизонтальной разводкой труб и установкой отдельного теплосчетчика в каждой квартире. Для автовладельцев предусмотрены наземные парковочные места и подземная одноэтажная гараж-стоянка. Дом возводится по монолитно-каркасной технологии с использованием силикатных блоков, рассчитан на 15 этажей, 14-й и 15-й этажи занимают двухуровневые квартиры, высота потолков .3 метра.
Параметры объекта
- Тип объекта
Сфера услуг
- Площадь общая
71.93 м²
- Этаж / этажность
1 / 15
- Год постройки
2025
- Раздельных помещений
1
- Материал стен
Монолитный
- Высота потолков
3 м
- Ремонт
Строительная отделка
- Отопление
Есть
- Электроснабжение
Есть
- Естественное освещение
Есть
- Вода
Есть
- Санузел
Есть
- Парковка
Есть
- Принадлежность объекта
Частная
- НДС
НДС включен
- Расположение
В жилом доме
- Юридический адрес
Да
- Новостройка
Да
Оснащение
Оживленное место
Отдельный вход
Интернет
Продавец
Амкодор-Промстрой
Контактное лицо
Примечание
Местоположение
- Область
- Район
- Населенный пункт
- Улица
- Номер дома
10
- Район города
- Жилой комплекс
ЖК "NewCity"
- Координаты
53.70003024, 23.830183171
