Купить магазин, аг. Коптевка, ул. Победы, 34 (Гродненский р-н, Гродненская область)
от 210 000 р.
Продажа
Следить за ценой
Магазин
Тип
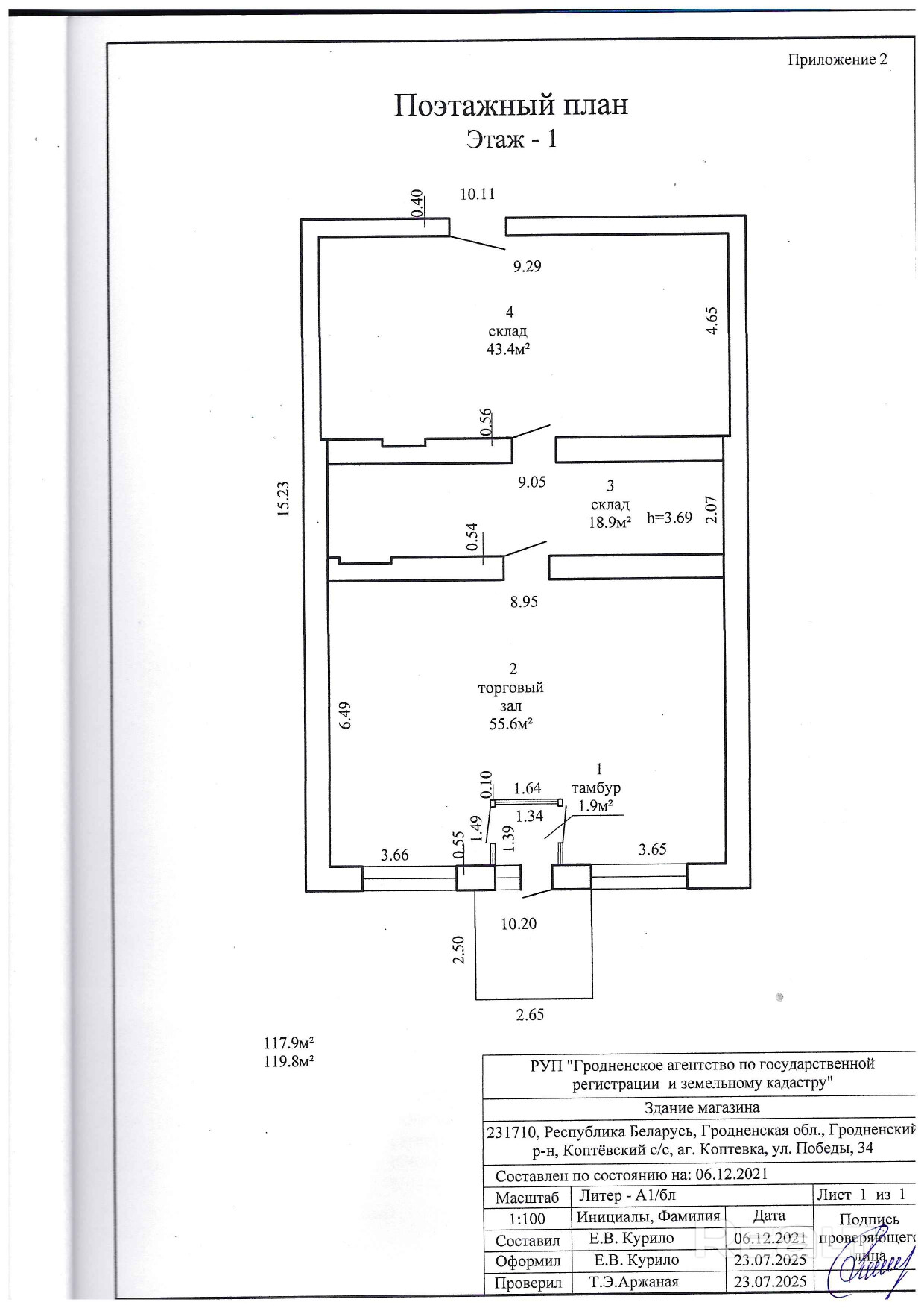
117.90 м²
Площадь
1 из 1
Этаж
09.10.2025ID 3905806
Параметры объекта
- Тип объекта
Магазин
- Площадь участка
5 соток
- Площадь общая
117.90 м²
- Этаж / этажность
1 / 1
- Год постройки
1989
- Естественное освещение
Есть
- Принадлежность объекта
Частная
- Аукцион
Да
Продавец
Гродненское
Контактное лицо
Примечание
Продается здание магазина, расположенного по адресу: Гродненский район, Коптевский с/с, аг.Коптевка, ул.Победы, 34.
Местоположение
- Область
- Район
- Населенный пункт
- Улица
- Номер дома
34
- Сельсовет
Коптёвский с/с
- Координаты
53.565342898, 23.873672327
