Купить склад+офис, д. Стриженяты (Ивьевский р-н, Гродненская область)
114 800 р.
Продажа
Следить за ценой
Склад+офис
Тип
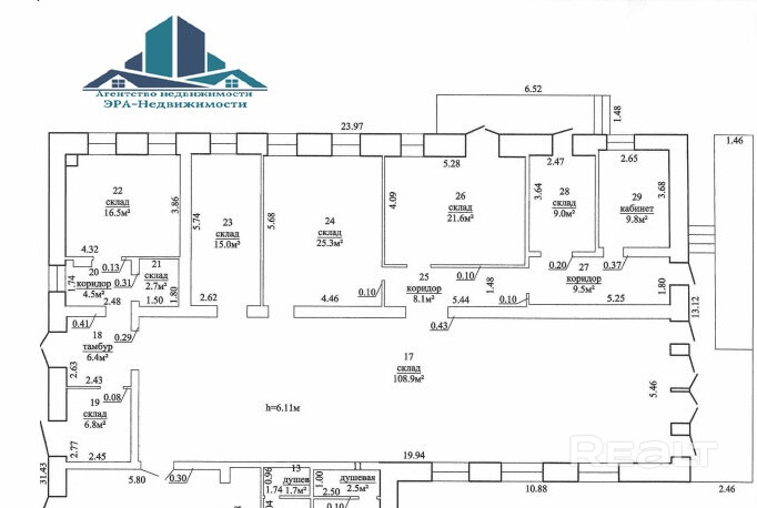
433.70 м²
Площадь
1 из 1
Этаж
18.05.2026ID 3871092
Описание
К продаже предлагается капитальное строение многофункционального использования общей площадью 433,7 кв.м для размещения склада либо производства. Здание 2002 года постройки. Коммуникации не введены, но находятся рядом (газ, электричество, очистные сооружения). Частная собственность.
Параметры объекта
- Тип объекта
Склад+офис
- Площадь участка
40.05 соток
- Площадь общая
433.70 м²
- Этаж / этажность
1 / 1
- Год постройки
2002
- Раздельных помещений
6 - 15
- Материал стен
Панельный
- Высота потолков
4 м
- Ремонт
Без отделки
- Естественное освещение
Есть
- Санузел
Есть
- Парковка
Есть
- Принадлежность объекта
Частная
- НДС
НДС включен
- Расположение
Частный сектор
- Юридический адрес
Да
- Номер договора
537/1 от 31.08.2025
Оснащение
Отдельный вход
Примечание
К продаже предлагается капитальное строение многофункционального использования общей площадью 433,7 кв.м для размещения склада либо производства. Здание 2002 года постройки. Коммуникации не введены, но находятся рядом (газ, электричество, очистные сооружения). Частная собственность.
Местоположение
- Область
- Район
- Населенный пункт
- Сельсовет
Ивьевский с/с
- Координаты
53.927215, 25.733975
