Сдаётся офис в стиле LOFT в центре города. ул. Фабрициуса, 8Б
от 40 р./м²
- г. Минскул. Фабрициуса, 8/Б
- Институт культуры
- На карте
Тип
Площадь
Этаж
Описание
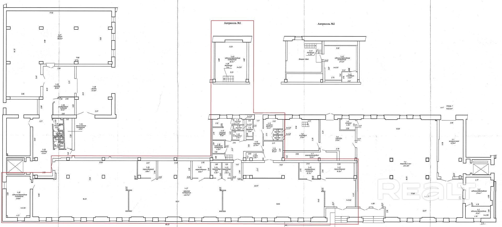
Сдается в аренду офисное помещение в центре г. Минска общей площадью 625,3 кв.м. по адресу: ул. Фабрициуса, д. 8Б, корп. 1. Находится на первом этаже здания, имеет отдельный вход с улицы, а также отдельный вход с прилегающей территории и парковки.
Возможно использовать и по другому назначению: занятий физической культурой и спортом, торговли, сферы бытовых услуг.
Собственные гардероб, санузлы и кухня.
Качественный свежий дизайнерский ремонт, не требующий выполнения каких-либо дополнительных строительных работ. Новые системы вентиляции и кондиционирования.
Парковка на прилегающей территории здания.
Круглосуточная охрана, система контроля и управления доступом (СКУД), видеонаблюдение, компьютерная сеть, скоростной интернет (заведены 5 провайдеров: Белтелеком, Деловая сеть, МТС, Айпителком, Космос ТВ), приточно-вытяжная вентиляция, кондиционирование в каждом помещении, местная телефонная сеть (имеется лицензия на оказание услуг связи).
В здании находится магазин Fix price, также функционирует кафе.
Доступ в помещение круглосуточный (24/7).
Развитая инфраструктура. В шаговой доступности магазины (Хит, Соседи, Мегатоп, Мила и др.), различные объекты общественного питания (KFC, Штолле, Cofix, БАР #ПП, столовые государственных предприятий и учреждений: Белмедпреппараты, Метрополитен, Институт культуры), банки (ВТБ, БелВэб), объекты сферы бытовых услуг (Дом быта и др.).
Отличное транспортное сообщение, в 5 минутах ходьбы ст.м. «Институт Культуры», «Вокзальная», «Площадь Франтишка Богушевича».
Арендная плата указана уже с учетом НДС 20%.
Больше объявлений тут: www.instagram.com/garant.arenda
Напишите нам в удобный для Вас мессенджер:
Viber | Telegram | WhatsApp
Ответим на Ваши вопросы, предоставим всю необходимую дополнительную информацию.
ООО «Орион Недвижимость»
УНП 193609339
Лицензия Министерства Юстиции №02240/436 от 03.02.2022 г.
Договор № 476/2а от 27.05.2025
Параметры объекта
- Тип объекта
Офис
- Площадь общая
625.30 м²
- Этаж / этажность
1 / 8
- Год постройки
1962
- Раздельных помещений
9
- Материал стен
Кирпичный
- Высота потолков
2.7 м
- Ремонт
Хороший
- Отопление
Есть
- Электроснабжение
Есть
- Естественное освещение
Есть
- Вода
Есть
- Санузел
2 санузла
- Количество телефонов
1 телефон
- Принадлежность объекта
Частная
- НДС
НДС включен
- Расположение
В бизнес центре
- Юридический адрес
Да
- Номер договора
476/2а от 26.05.2025
Оснащение
Кондиционер
Охрана
Отдельный вход
Интернет
Недвижимость
Контактное лицо
Примечание
Местоположение
- Область
- Населенный пункт
- Улица
- Номер дома
8/Б
- Район города
- Микрорайон
- Координаты
53.889814079, 27.535932187
