Помещения в аренду под офис в самом центре Минска.
70 р./м²
- г. Минскул. Козлова, 1
- Площадь Победы
- На карте
Тип
Площадь
Этаж
Описание
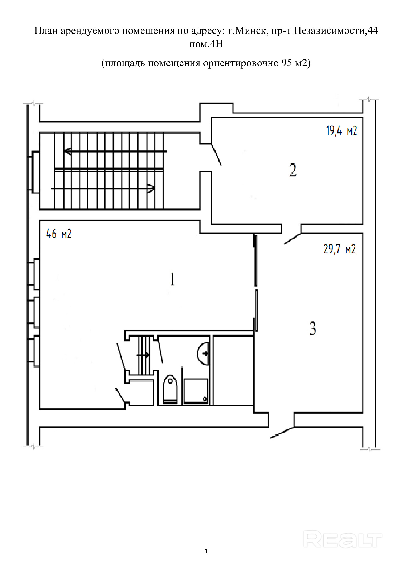
Помещения в аренду от собственника под офис, находящееся в историческом здании «Вечерний Минск», по адресу пр-т Независимости,44. Мансардный 6 этаж, лифт. Сдается с мебелью.
Помещение общей площади 95 м2: кабинетного типа (три кабинета: 46 м2, 29,7 м2, 19,4 м2). Эксклюзивная мебель, отдельный санузел, душевая, кондиционер, возможен отдельный вход, сигнализация, интернет, телефон. Аренда – 70р./м2
Полностью оборудованный офис для работы. Круглосуточная охрана на первом этаже. Отличное транспортное сообщение, в шаговой доступности метро площадь Победы. Самый центр города.
Параметры объекта
- Тип объекта
Офис
- Площадь общая
22 - 46 м²
- Этаж / этажность
6 / 6
- Раздельных помещений
1 - 9
- Высота потолков
2.5 м
- Ремонт
Нормальный
- Отопление
Есть
- Электроснабжение
Есть
- Естественное освещение
Есть
- Вода
Есть
- Санузел
Есть
- Оборудование
Есть
- Количество телефонов
5 телефонов
- Парковка
Есть
- Принадлежность объекта
Частная
- НДС
НДС нет (0%)
- Юридический адрес
Да
Оснащение
Кондиционер
Видеонаблюдение
Охрана
Сигнализация
Оживленное место
Компьютерная сеть
Интернет
Отдельный вход
Мебель
Арендодатель
Игорь Анатольевич
Контактное лицо
Примечание
Местоположение
- Область
- Населенный пункт
- Улица
- Номер дома
1
- Район города
- Микрорайон
- Координаты
53.9106, 27.5786
