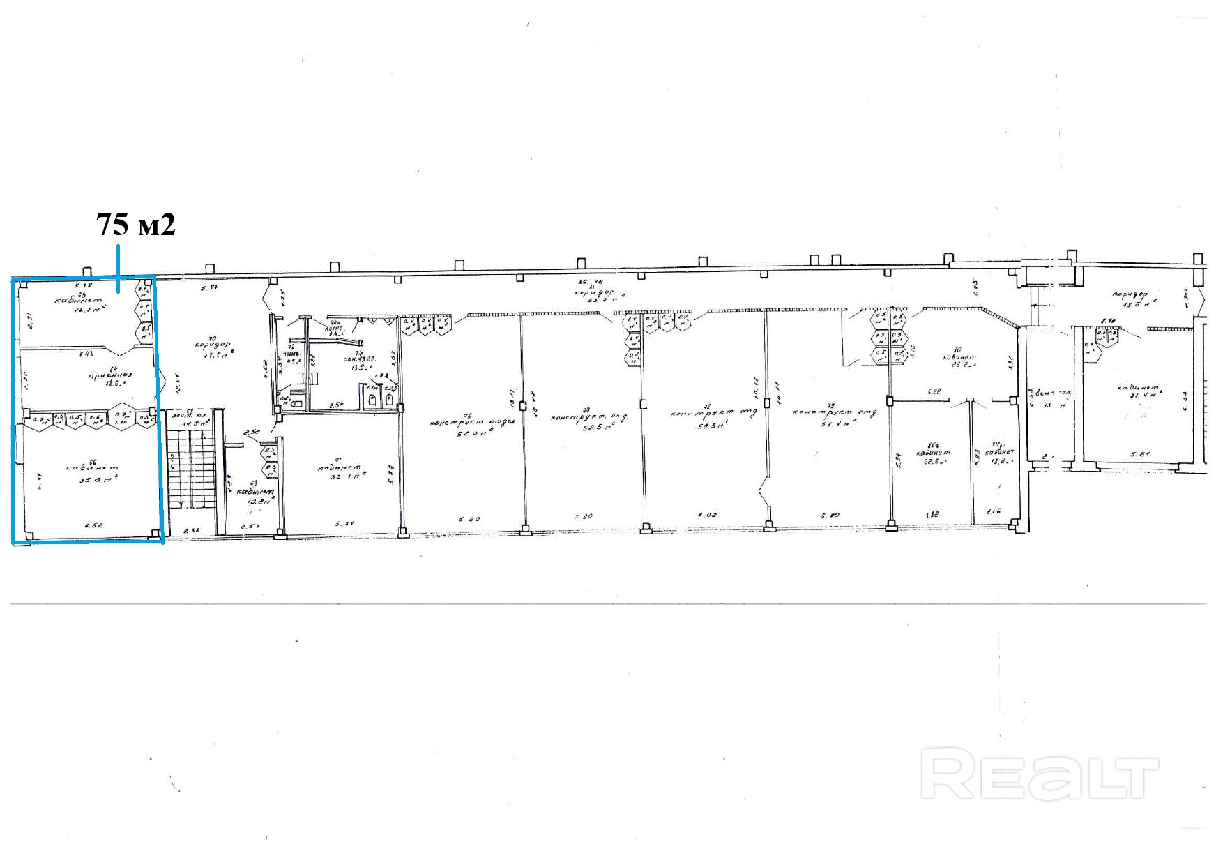
Аренда офиса 75 м2- Пушкина, 68/2
25 р./м²
- г. Минскпросп. Пушкина, 68/2
- Пушкинская
- На карте
Тип
Площадь
Этаж
Описание
Помещения от 5 до 1000 м2 на ул. Пушкина, 68 — под офис, склад или производство.
Часть помещений с ремонтом, другие можно подготовить под задачу.
Что сдаётся:
– Склады
– Офисы
– Производственные помещения — как под швейное или полиграфию, так и под мебель или сборку
– Мастерские, сервисные помещения
– Комбинированные блоки (офис+цех, склад+приёмка)
Особенности:
– Электричество, вода, санузлы
– Без отопления
– Своя парковка
– Заезд транспорта, включая фуры, с разворотом
– Закрытая территория
– Возможен круглосуточный доступ
Дополнительные затраты:
– Коммунальные по счётчику
– Эксплуатационные расходы
Хотите посмотреть? Набирайте! Покажем помещения и заодно проведем для вас экскурсию по всему объекту :)
Компания собственник. Не все помещения и объекты успеваем добавить и разместить в рекламу – не стесняйтесь спрашивать, будем рады предложить все, что у нас есть. Также есть другие объекты: склады и офисы на Хоружей, Старовиленской, пер. Твердом, пер. Северном, ул. Кальварийской и пр.
Свободные помещения, которые у нас есть, арендные ставки и адреса под ваше назначение и цель можете уточнить у менеджера, написав в Telegram или просто позвонив. Контакты в разделе контакты.
Параметры объекта
- Тип объекта
Офис
- Площадь участка
1000 соток
- Площадь общая
75 м²
- Этаж
3
- Высота потолков
2.5 м
- Ремонт
Хороший
- Электроснабжение
Есть
- Естественное освещение
Есть
- Вода
Есть
- Санузел
Есть
- Парковка
Есть
- Принадлежность объекта
Частная
- НДС
НДС включен
- Юридический адрес
Да
Оснащение
Оживленное место
Интернет
Арендодатель
(собственник)
Контактное лицо
Примечание
Местоположение
- Область
- Населенный пункт
- Улица
- Номер дома
68/2
- Район города
- Координаты
53.9212, 27.5032
