Офис от 850 до 3680 м2 (г. Минск, пр-т Независимости, 58/2)
14 447 - 62 548 р.
17 р.≈ 6 $ за м²
- г. Минскпросп. Независимости, 58/2
- Площадь Якуба Коласа
- На карте
Тип
Площадь
Этаж
Описание
Предлагаем Вашему вниманию комфортабельные офисные помещения, расположенные по адресу: г. Минск, пр-т Независимости, 58/2.
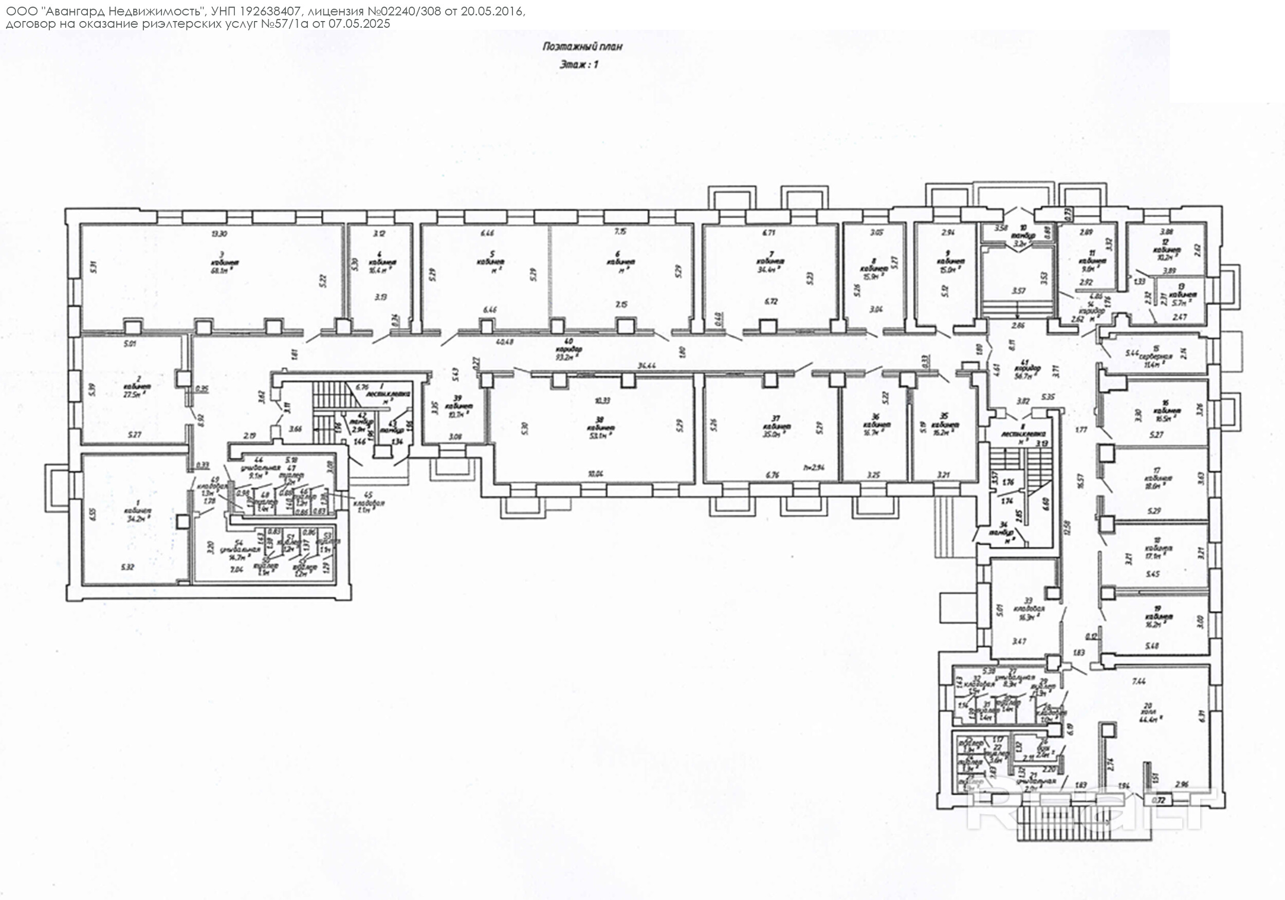
Объект представляет собой 4-х этажное административное здание. Рассматривается вариант поэтажной аренды (850-900 кв. м) или здания целиком (3680 кв. м).
Общие характеристики объекта:
- формат комбинированной системы планировки (кабинетная и open space);
- в помещениях выполнен хороший ремонт;
- рабочие зоны оборудованы кондиционерами;
- система вентиляции с естественным побуждением;
- заведено оптоволокно;
- СКУД;
- помещения с высоким уровнем естественного освещения;
- высота потолков в кабинетах – 2.70-2.95 м;
- каждый этаж оборудован ИПУ;
- раздельные санузлы на каждом этаже (есть душевые);
- на каждом этаже имеется помещение под кухню;
- доступ в здание 24/7;
- видеонаблюдение по периметру здания, охраняется;
- имеется возможность организовать собственную парковку на 15-25 м-м.
Инфраструктура:
720 метров до остановок общественного транспорта.
590 метров до ст. м «Площадь Якуба Коласа».
Вблизи здания имеется несколько плоскостных парковок (платных).
В шаговой доступности есть заведения общественного питания, продовольственные/непродовольственные магазины, банк, аптека и т.д.
Арендатор не оплачивает услуги агентства.
Ставка указана без учета НДС.
Звоните!
Параметры объекта
- Тип объекта
Офис
- Площадь общая
850 - 3680 м²
- Этаж / этажность
1 / 4
- Год постройки
1956
- Раздельных помещений
10
- Материал стен
Кирпичный
- Ремонт
Хороший
- Отопление
Есть
- Электроснабжение
220В
- Естественное освещение
Есть
- Вода
Горячая
- Санузел
Есть
- Парковка
Есть
- Принадлежность объекта
Частная
- НДС
НДС не включен
- Номер договора
57/1а от 06.05.2025
Оснащение
Охрана
Сигнализация
Видеонаблюдение
Оживленное место
Интернет
Отдельный вход
Владислав Апенок
Агент по недвижимости
Примечание
Местоположение
- Область
- Населенный пункт
- Улица
- Номер дома
58/2
- Район города
- Микрорайон
- Координаты
53.9174, 27.5914
