Помещение в "Capital Palace"
88 р./м²
- г. Минскул. Интернациональная, 38
- Октябрьская
- На карте
Тип
Площадь
Этаж
Описание
Преимущества комплекса «Капитал Палас»
-
Расположен в самом центре Минска — на Октябрьской площади
-
Развитая инфраструктура и удобное транспортное сообщение
-
Двухуровневый подземный паркинг, оборудованный системой видеонаблюдения.
-
Круглосуточная доступность
- Для аренды доступны как небольшие помещения для малых организаций, так и целые этажи для крупных компаний!
Про помещение:
-
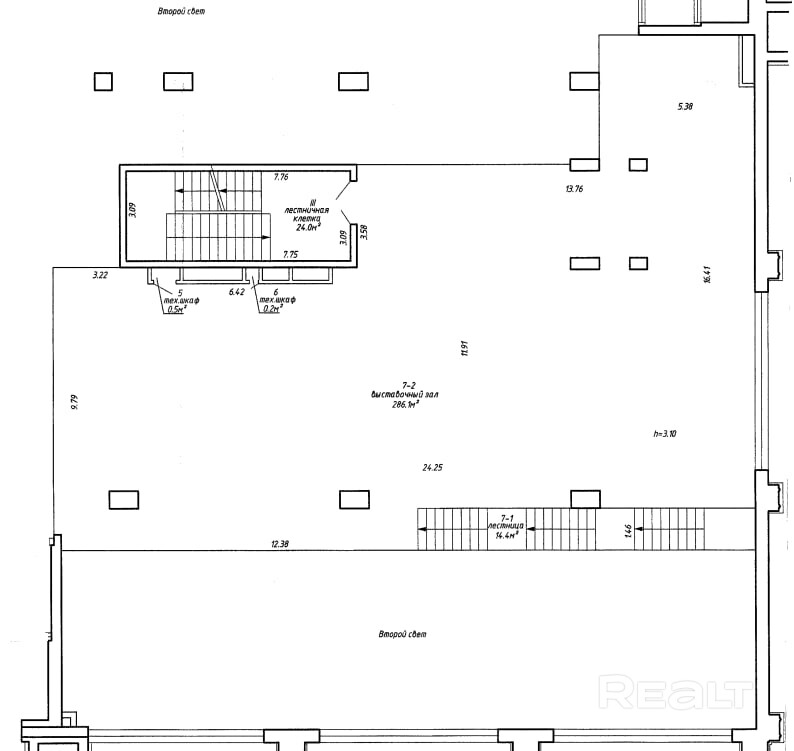
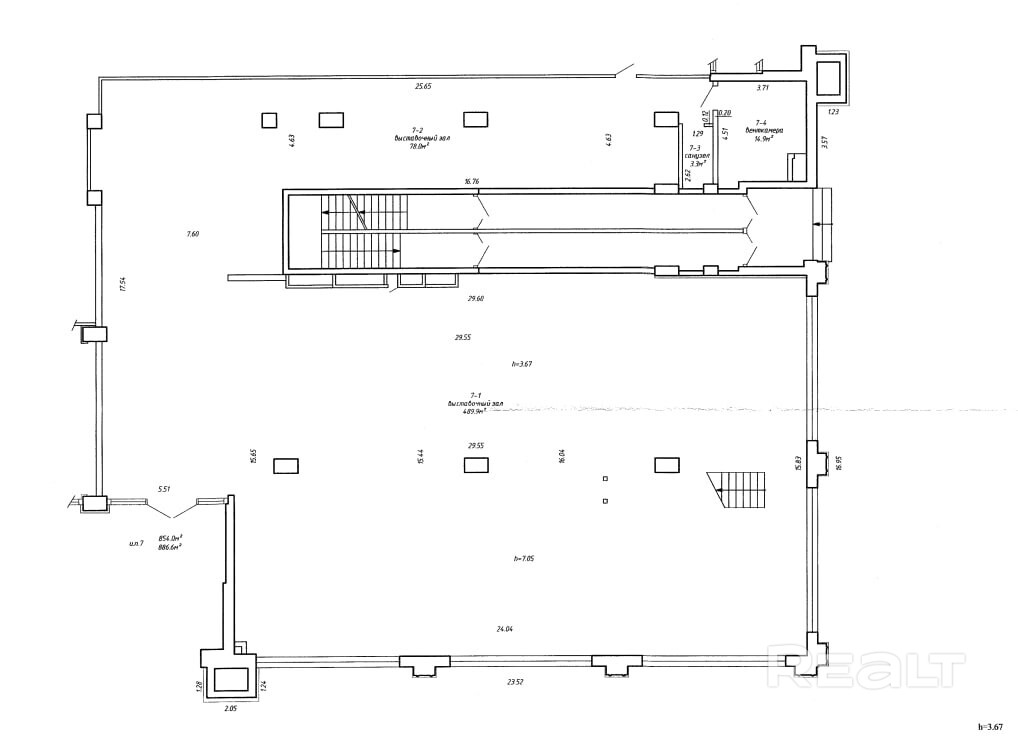
Площадь: первый этаж — 600 м2, мезонин — 280 м2
-
Высота потолков:
-
от пола первого этажа до мезонина — 3,67 м
-
от мезонина до перекрытия второго этажа — 3,1 м
-
общая высота от пола первого этажа до перекрытия второго — 7,05 м
-
-
Отдельный вход
-
Функциональность: идеально подходит для выставочного зала, сферы услуг, торговли, офиса или шоу-рума в торговой галерее
-
Панорамный вид на Октябрьскую площадь
-
Современные инженерные системы: кондиционирование и вентиляция
Параметры объекта
- Тип объекта
Офис
- Площадь общая
880 м²
- Этаж / этажность
1 / 8
- Класс
A
- Ремонт
Без отделки
- Отопление
Есть
- Электроснабжение
Есть
- Естественное освещение
Есть
- Санузел
Есть
- НДС
НДС включен
Арендодатель
Контакт-центр
Контактное лицо
Примечание
Местоположение
- Область
- Населенный пункт
- Номер дома
38
- Район города
- Координаты
53.903855222, 27.562442915
