Аренда помещений/офисов на 1 этаже в центре города | доступ 24/7
33 р./м²
Тип
Площадь
Этаж
Описание
Аренда помещений/офисов на 1 этаже в центре города | доступ 24/7
Предлагаются готовые к въезду помещения с ремонтом различной площади от 27.42 до 150.32 кв.м. на 1 этаже жилого дома по адресу:
г. Минск, ул. Старовиленский тракт, 10 (Центральный район).
📍 Первая линия, перекрёсток ул. В. Хоружей – Старовиленский тракт
🔹 Доступные варианты помещений:
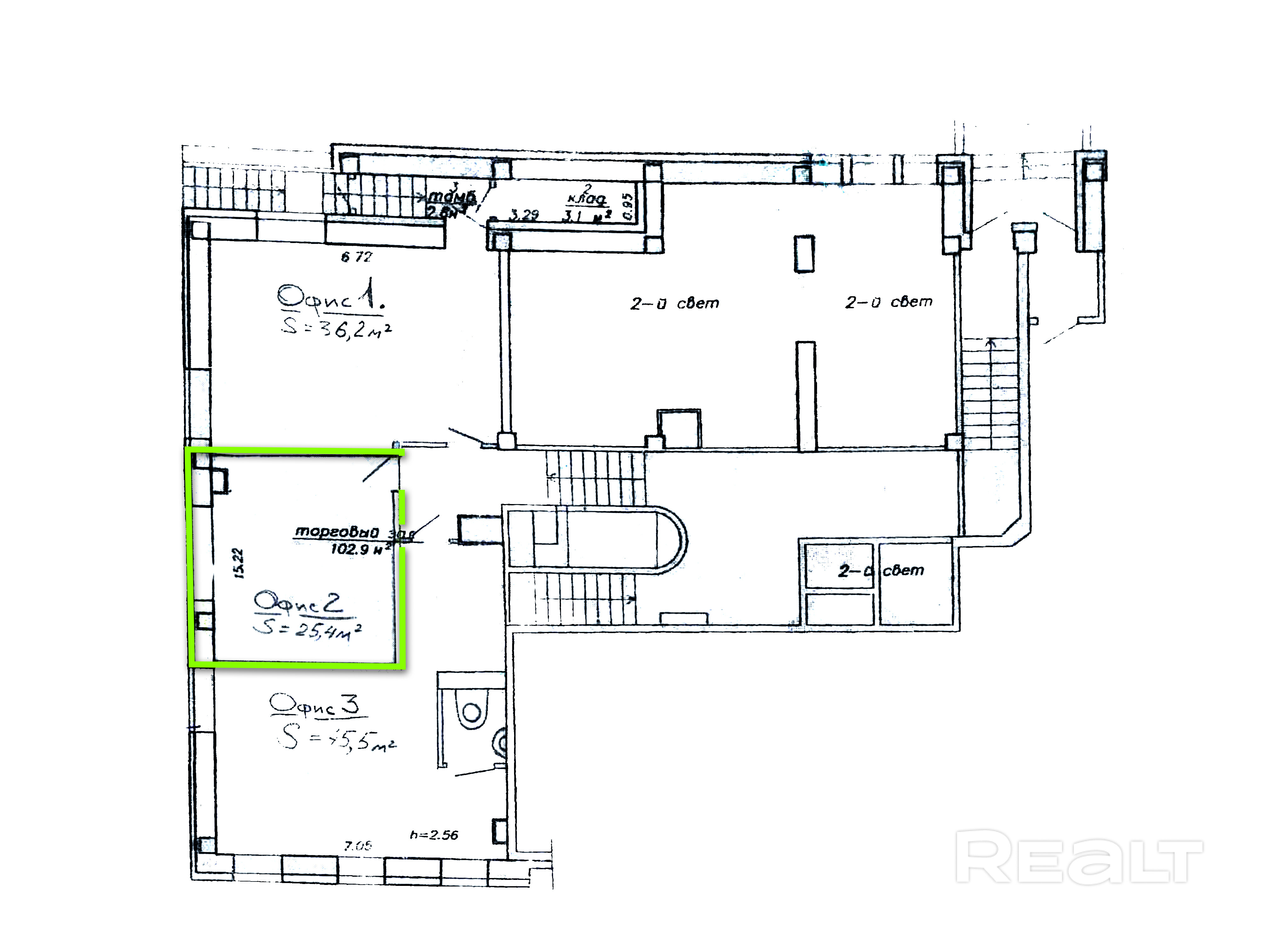
Офис с кабинетами - 63,6 кв.м.
-
3 кабинета (1 проходной)
-
Подходит под офис, шоурум, услуги, офис + склад
Офис open space - 51,1 кв.м.
-
Естественное освещение
-
Без перегородок
-
Отлично под офис, студию, сферу услуг
Офис — 27,4 кв.м.
-
Естественное освещение
-
Компактный формат для малого бизнеса
Кладовая - 8,2 кв.м.
-
под склад
➡️ Общий вход (через арку)
➡️ Общий санузел с другими арендаторами
🔹 Коммуникации и условия
-
Отопление
-
Электричество
-
Вода и канализация
-
Скоростной интернет
-
Доступ 24/7
-
Парковка рядом со зданием
🔹 Локация и окружение
-
Весь первый этаж — торговые и административные помещения
-
Рядом посольства Ирана, Азербайджана и России
-
Современный жилой массив
-
До пр-та Машерова — 600 м
-
Остановки общественного транспорта — в шаговой доступности
-
До м. Площадь Победы — 5 остановок
📊 Локация идеально подходит для бизнеса, ориентированного на поток клиентов.
💰 Финансовые условия
-
НДС включён (собственник — юр. лицо, плательщик НДС)
-
Коммунальные и эксплуатационные платежи оплачиваются отдельно:
-
зима — ~ 2,5 руб./кв.м.
-
лето — ~ 1,3 руб./кв.м.
-
✅ Дополнительные преимущества
✔ Без комиссии для арендатора
✔ Долгосрочная аренда — от 1 года
✔ Помещения подходят под офис, торговлю, услуги, шоурум, ПВЗ, офис + склад
Result Estate — ваш надёжный партнёр на рынке недвижимости.
20 лет опыта наших агентов по недвижимости — это ваш ключ к идеальной сделке: глубокое знание рынка, эксклюзивные предложения, юридическая безопасность и индивидуальный подход. Мы экономим ваше время, деньги и нервы, помогая купить, продать недвижимость быстро, выгодно и с уверенностью в результате!
Все актуальные предложения в одном месте — смотрите на нашем сайте.
Опишите свои пожелания — и мы оперативно подберем для вас лучшие варианты!
ООО «Результативная недвижимость», лицензия выдана Минюстом 26.09.2023 № 02240470, УНП 193703497
Связываясь с нами по данному объекту, Вы даете свое согласие на сбор и обработку персональных данных автоматически.
Параметры объекта
- Тип объекта
Офис
- Площадь общая
27.42 - 150.32 м²
- Этаж / этажность
1 / 8
- Ремонт
Хороший
- Отопление
Есть
- Электроснабжение
Есть
- Естественное освещение
Есть
- Вода
Есть
- Санузел
Есть
- Принадлежность объекта
Частная
- НДС
НДС включен
- Расположение
В жилом доме
- Номер договора
107/1a от 23.12.2025
Степан Аваков
Агент по недвижимости
Примечание
Местоположение
- Область
- Населенный пункт
- Улица
- Номер дома
10
- Район города
- Микрорайон
- Координаты
53.9227, 27.5497
