Аренда офиса 374.2м2 ул. Купалы 25.
15 000 р.
- г. Минскул. Купалы, 25
- Октябрьская
- На карте
Тип
Площадь
Этаж
Описание
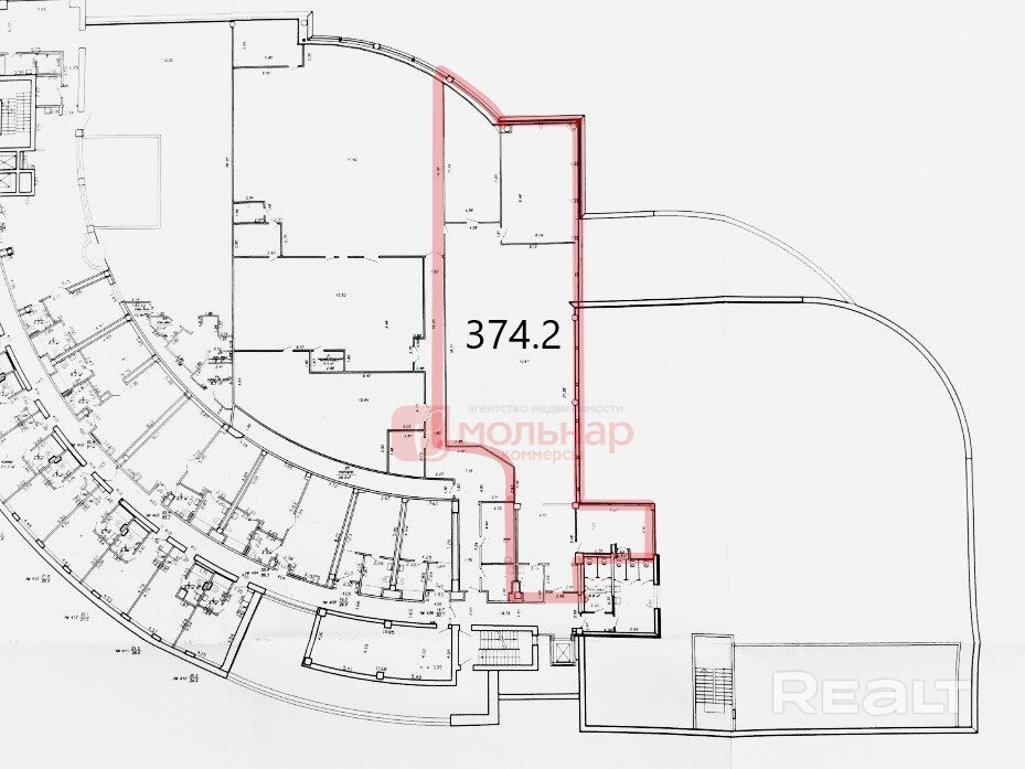
Предлагаем в аренду офис по ул. Купалы 25.
Площадь- 374.2м2., 4 этаж.
Стоимость аренды 40,5 бел руб\ м2 с НДС.
Офис состоит из зоны ресепшна, оборудованной комнатой приема пищи, просторной рабочей зоны open space, двух изолированных кабинетов с панорамными окнами и видом на реку.
Кабинет директора сдается с мебелью.
Хороший ремонт в светлых тонах, свой сан. узел.
Здание располагает панорамным лифтом.
Предоставляется 3 машиноместа на парковке.
Центр города, развитая инфраструктура, рядом ст. метро "Немига", и "Октябрьская".
Вы не оплачиваете услуги риэлтерской организации.
Параметры объекта
- Тип объекта
Офис
- Площадь общая
374.20 м²
- Этаж / этажность
4 / 4
- Ремонт
Хороший
- Отопление
Есть
- Электроснабжение
Есть
- Естественное освещение
Есть
- Вода
Есть
- Санузел
Есть
- Парковка
Есть
- Принадлежность объекта
Частная
- НДС
НДС включен
- Расположение
В бизнес центре
- Номер договора
82/1А от 17.07.2024
Оснащение
Охрана
Видеонаблюдение
Интернет
Коммерсы
Контактное лицо
Примечание
Местоположение
- Область
- Населенный пункт
- Улица
- Номер дома
25
- Район города
- Координаты
53.9055, 27.5614
