Снять офис, г. Минск, ул. Калинина, 7/Б
28 р./м²
- г. Минскул. Калинина, 7/Б
- Парк Челюскинцев
- На карте
Тип
Площадь
Этаж
Описание
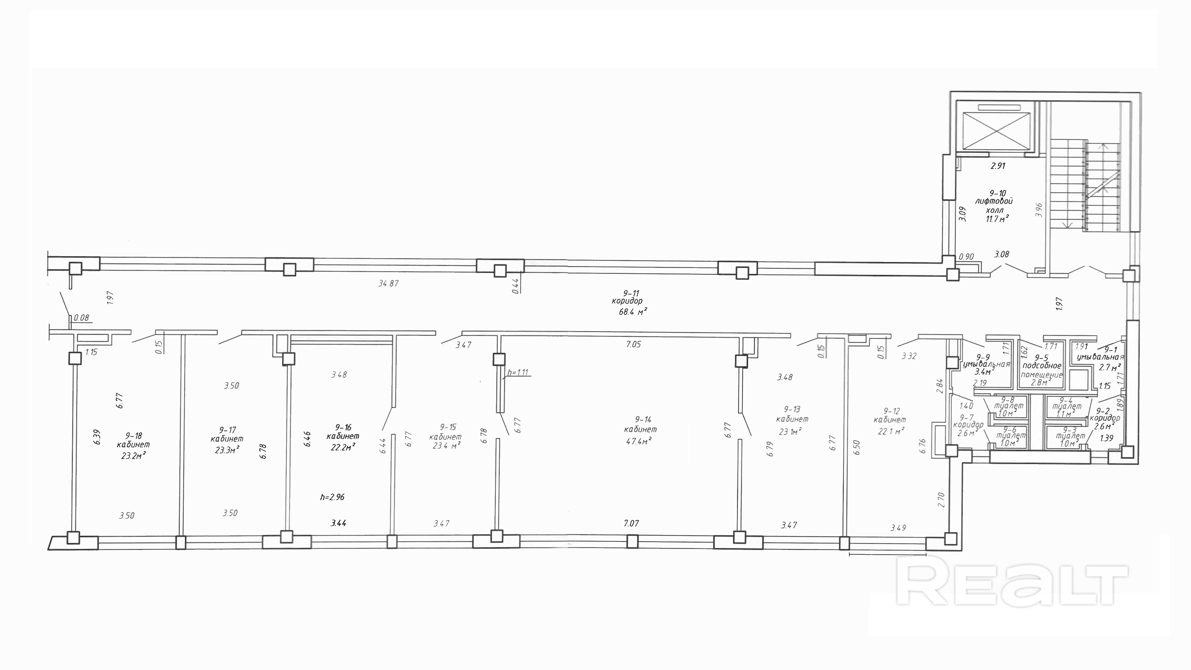
Сдается в аренду офис кабинетного типа в шаговой доступности к станции метро Парк Челюскинцев.
Офис площадью 283 м2 находится на автономном втором этаже здания.
В офисе есть собственный санузел и кухня, установлены современные кондиционеры.
В здании установлена многоуровневая система безопасности, есть консьерж - сервис.
В офис посетители могут добраться как по лестнице, так и на лифте, который автономно расположен на этаже.
В офисе также выполнен хороший ремонт.
Result Estate — ваш надёжный партнёр на рынке недвижимости.
20 лет опыта наших агентов по недвижимости — это ваш ключ к идеальной сделке: глубокое знание рынка, эксклюзивные предложения, юридическая безопасность и индивидуальный подход. Мы экономим ваше время, деньги и нервы, помогая купить, продать недвижимость быстро, выгодно и с уверенностью в результате!
Все актуальные предложения в одном месте — смотрите на нашем сайте.
Опишите свои пожелания — и мы оперативно подберем для вас лучшие варианты!
ООО «Результативная недвижимость», лицензия выдана Минюстом 26.09.2023 № 02240470, УНП 193703497
Связываясь с нами по данному объекту, Вы даете свое согласие на сбор и обработку персональных данных автоматически.
Параметры объекта
- Тип объекта
Офис
- Площадь общая
283 м²
- Этаж
2
- Раздельных помещений
10
- Ремонт
Хороший
- Отопление
Есть
- Электроснабжение
Есть
- Естественное освещение
Есть
- Вода
Есть
- Санузел
Есть
- Парковка
Есть
- Принадлежность объекта
Частная
- НДС
НДС нет (0%)
- Номер договора
52/1а от 11.09.2025
Ирина Койкова
Агент по недвижимости
Примечание
Местоположение
- Область
- Населенный пункт
- Улица
- Номер дома
7/Б
- Район города
- Микрорайон
- Координаты
53.9261, 27.6061
