Скачать приложение Realt
Скачать

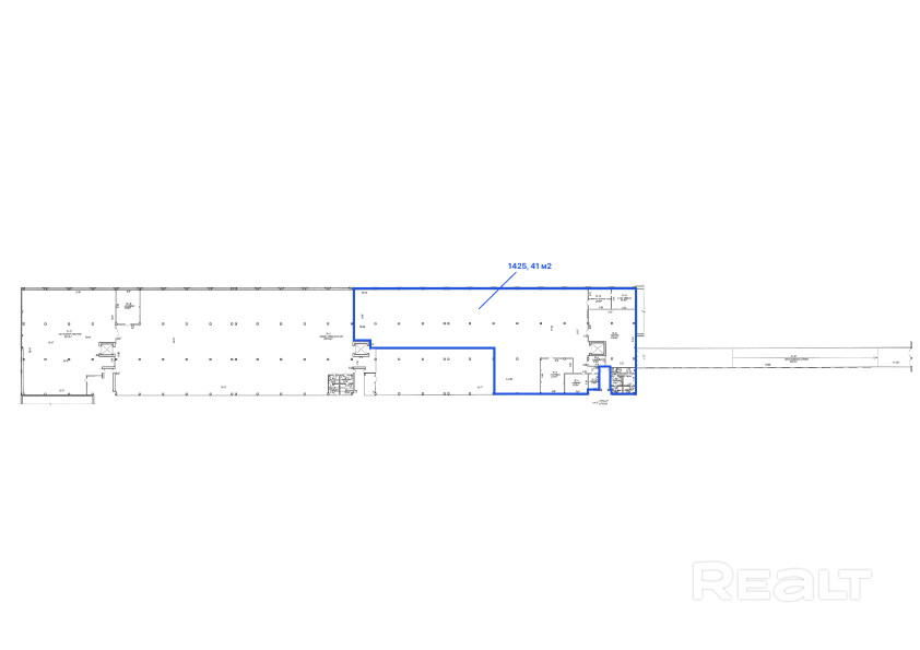
Аренда помещения 1742,9 кв.м. по ул.Хоружей, 25

50 196 р.

17 734 $
Аренда
Следить за ценой
Офис

Тип

1742.90 м²

Площадь

3 из 3

Этаж

27.04.2026ID 4067739
pdf
Обзор по коммерческой недвижимости
Сделки, цены и ставки аренды за 2025 год

Описание

Плюсы аренды?

  • Круглосуточный доступ
  • Свободная планировка (open space)
  • Высота потолков - 3,9 м.
  • Закрытая парковка (1-ый час аренды бесплатно, удобно для клиентов и поставщиков)
  • Лифт

Коммуникации?

  • отопление
  • электричество
  • сан.узлы

Дополнительные затраты?

  • эксплуатационные расходы
  • коммуналка (вода, электричество — выставляется по потреблению по гос. тарифам для юр.лиц)
  • аренда машиноместа, если вы планируете оставлять их на территории

Что по помещениям свободным и предлагаемым в аренду на этом объекте?

  • от 10 кв.м. до 3040 кв.м.

Под что можно снять помещения?

  • склады
  • производства
  • офисы
  • общепит: кафе, бары, рестораны
  • услуги
  • любые другие ваши идеи и проекты готовы обсудить, уточняйте

Звоните, пишите, будем рады вам и по телефону, и в viber/telegram. Все покажем и расскажем, заодно проведем экскурсию по объекту :)

Параметры объекта

  • Тип объекта

    Офис

  • Площадь общая

    1742.90 м²

  • Этаж / этажность

    3 / 3

  • Материал стен

    Кирпичный

  • Высота потолков

    3.5 м

  • Отопление

    Есть

  • Электроснабжение

    Есть

  • Естественное освещение

    Есть

  • Вода

    Есть

  • Санузел

    Есть

  • Парковка

    Есть

  • Принадлежность объекта

    Частная

  • НДС

    НДС включен

Оснащение

Рампа

Арендодатель

(собственник)

Контактное лицо

Примечание

Хотите снять в аренду производственное или складское помещение с удобной парковкой? Помещение занимает часть 3 этажа здания.

Местоположение