Снять офис, г. Минск, ул. Огинского, 8
45 р./м²
- г. Минскул. Огинского, 8
- Борисовский тракт
- На карте
Тип
Площадь
Этаж
Описание
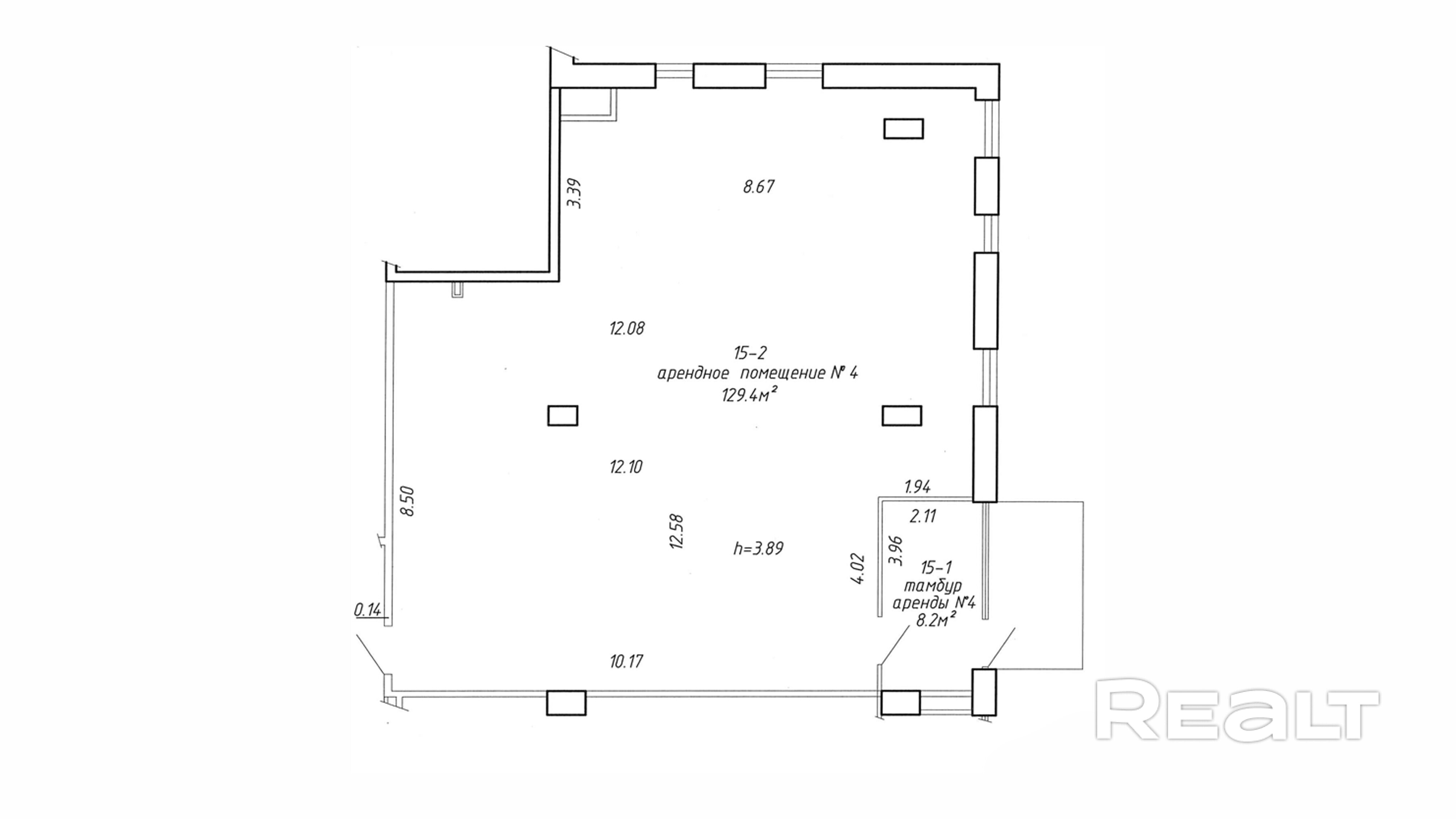
Аренда помещения 137,6 кв.м. на 1 этаже с отдельным входом на ул.Огинского 8.
Помещение сочетает в себе формат открытого пространства с возможностью установки дополнительных перегородок.
Высокая степень естественного освещения. Группа раздельных сан узлов.
Доступ 24/7 и два отдельных входа (один с улицы, второй через основной вход в здание).
Помещение готово к переезду.
Ставка аренды 54 рубля за м2 с НДС (эксплуатационные расходы включены).
Отделка:
- напольное покрытие: плитка;
- отделка стен: окрашены;
- потолок типа Loft.
Инженерные системы и коммуникации:
- вентиляция приточно-вытяжная;
- кондиционирование;
- разведены электрические cети;
- центральное водоснабжение и отопление;
- пожарная сигнализация.
Парковка:
Свободная плоскостная парковка у здания. Имеется возможность приобретения дополнительных машиномест на охраняемом паркинге.
Result Estate — ваш надёжный партнёр на рынке недвижимости.
20 лет опыта наших агентов по недвижимости — это ваш ключ к идеальной сделке: глубокое знание рынка, эксклюзивные предложения, юридическая безопасность и индивидуальный подход. Мы экономим ваше время, деньги и нервы, помогая купить, продать недвижимость быстро, выгодно и с уверенностью в результате!
Все актуальные предложения в одном месте — смотрите на нашем сайте.
ООО «Результативная недвижимость», лицензия выдана Минюстом 26.09.2023 № 02240470, УНП 193703497
Связываясь с нами по данному объекту, Вы даете свое согласие на сбор и обработку персональных данных автоматически.
Параметры объекта
- Тип объекта
Офис
- Площадь общая
137.60 м²
- Этаж / этажность
1 / 14
- Ремонт
Хороший
- Отопление
Есть
- Электроснабжение
Есть
- Естественное освещение
Есть
- Вода
Есть
- Санузел
Есть
- Парковка
Есть
- Принадлежность объекта
Частная
- НДС
НДС не включен
- Номер договора
60/3 от 24.06.2025
Оснащение
Отдельный вход
Примечание
Местоположение
- Область
- Населенный пункт
- Улица
- Номер дома
8
- Район города
- Микрорайон
- Координаты
53.928, 27.6684
