Аренда офиса 37м2 в БЦ около ст. метро "Площадь Якуба Коласа"
45 р./м²
Аренда
Следить за ценой
- г. Минскпросп. Независимости, 58/В
- Площадь Якуба Коласа
- На карте
Офис
Тип
37.20 м²
Площадь
1
Этаж
13 часов назадID 4102072
Описание
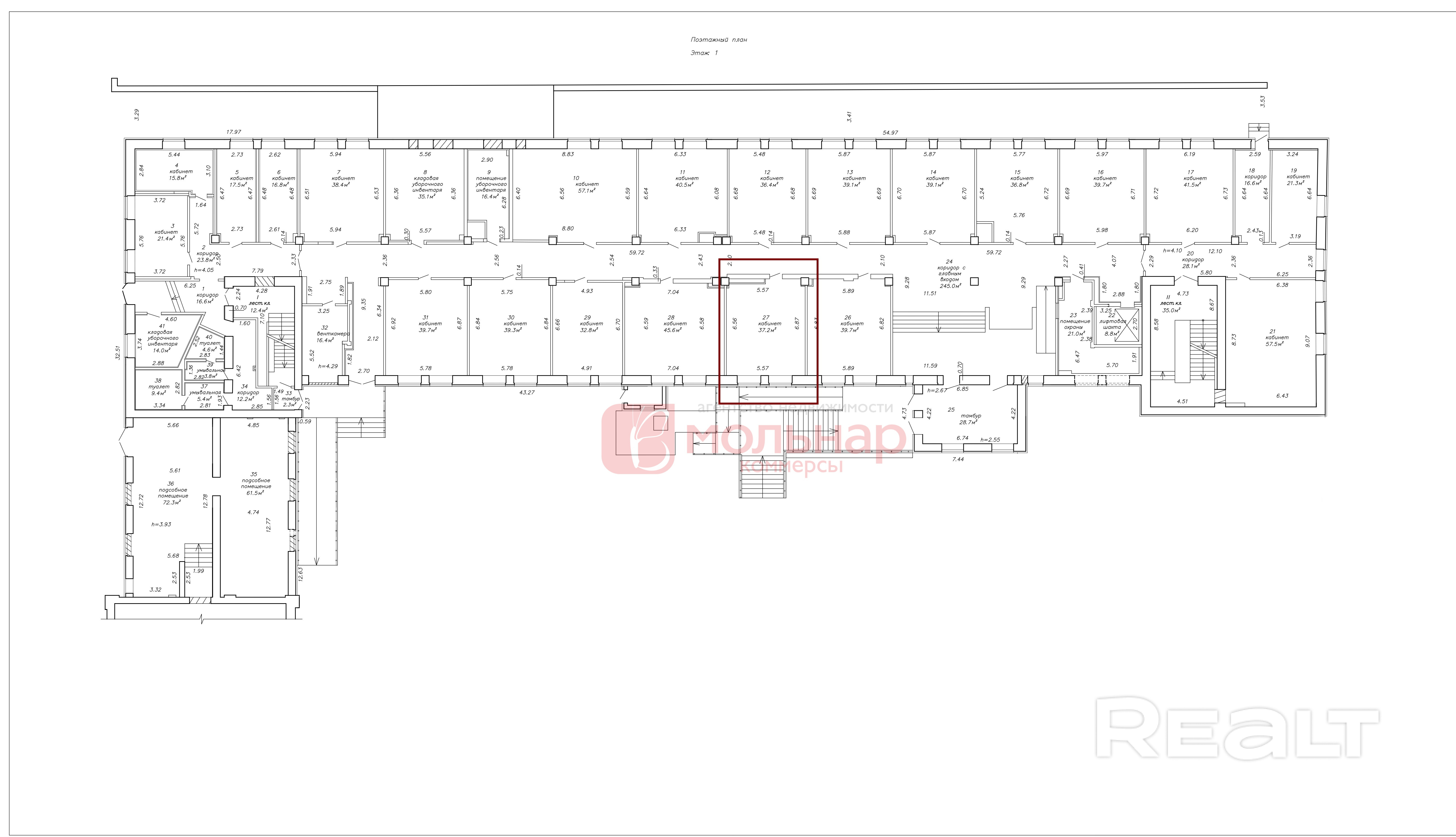
Аренда офиса в БЦ "Smile Plaza", пр-т Независимости 58В.
Офис расположен на 1-м этаже, 3-х этажного БЦ.
Площадь 37,2м2, стоимость 45 б.р./м2 (собственник не плательщик НДС).
В кабинете светлый обычный ремонт, высокие потолки.
До конца апреля находится текущий арендатор.
Вход в БЦ для арендатора- по картам доступа/ круглосуточный, гостевой вход для клиентов- до 21.00.
В пешей доступности ст.метро "Площадь Якуба Коласа".
Парковка- платная городская.
Вы не оплачиваете услуги риэлтерской организации.
Параметры объекта
- Тип объекта
Офис
- Площадь общая
37.20 м²
- Этаж
1
- Ремонт
Нормальный
- Отопление
Есть
- Электроснабжение
Есть
- Естественное освещение
Есть
- Принадлежность объекта
Частная
- НДС
НДС нет (0%)
- Расположение
В бизнес центре
- Номер договора
200/1А от 28.12.2025
Коммерсы
Контактное лицо
Примечание
Аренда офиса в БЦ "Smile Plaza", пр-т Независимости 58В. Офис расположен на 1-м этаже, 3-х этажного БЦ. Площадь 37,2м2, стоимость 45 б.р./м2 (собственник не плательщик НДС). В кабинете светлый обычный ремонт, высокие потолки. До конца апреля находится текущий арендатор. Вход в БЦ для арендатора- по картам доступа/ круглосуточный, гостевой вход для клиентов- до 21.00. В пешей доступности ст.метро "Площадь Якуба Коласа". Парковка- платная городская. Вы не оплачиваете услуги риэлтерской организаци
Местоположение
- Область
- Населенный пункт
- Улица
- Номер дома
58/В
- Район города
- Микрорайон
- Координаты
53.9172, 27.5902
