Офисный блок на 7 кабинетов 355,7м² по адресу Либаво-Роменская 23
7 033 р.
до 20 р.≈ до 7 $ за м²
Аренда
Следить за ценой
- г. Минскул. Либаво-Роменская, 23
- Аэродромная (2024)
- На карте
Офис
Тип
355.70 м²
Площадь
5 из 9
Этаж
вчера, 07:38ID 4108369
Описание
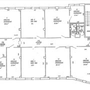
Офисный блок без мебели на 7 кабинетов 355,7м2 по адресу Либаво-Роменская 23
Планировка и коммуникации:
- 7 светлых кабинетов, готовая кухня + балкон;
- Два санузла;
- Стойка ресепшен при входе;
- Оптоволоконный кабель и телефонные линии;
- Элементы безбарьерной среды;
- Кондиционирование, приточно-вытяжная вентиляция;
- Кофейня на первом этаже (есть доставка в офис).
Безопасность и условия:
- Юридический адрес;
- Аренда от 1 года;
- Пожарная сигнализация;
- Видеонаблюдение;
- Доступ 24/7;
- Парковка и развитая инфраструктура.
Больше объявлений тут: www.instagram.com/garant.arenda
Напишите нам в удобный для Вас мессенджер:
Viber | Telegram | WhatsApp
Ответим на Ваши вопросы, предоставим всю необходимую дополнительную информацию.
ООО «Артель Недвижимость»
УНП 193820882
Лицензия Министерства Юстиции №48250000081913 06.03.2025 г.
Договор №343/2а от 23.04.2026
Параметры объекта
- Тип объекта
Офис
- Площадь общая
355.70 м²
- Этаж / этажность
5 / 9
- Год постройки
2008
- Класс
B
- Раздельных помещений
9
- Материал стен
Блочный
- Высота потолков
3 м
- Ремонт
Хороший
- Отопление
Есть
- Электроснабжение
380В
- Естественное освещение
Есть
- Вода
Есть
- Санузел
2 санузла
- Количество телефонов
1 телефон
- Парковка
Есть
- Принадлежность объекта
Частная
- НДС
НДС не включен
- Расположение
В бизнес центре
- Юридический адрес
Да
- Номер договора
343/2а от 22.04.2026
Оснащение
Кондиционер
Сигнализация
Видеонаблюдение
Компьютерная сеть
Интернет
Гарант Недвижимость
Контактное лицо
Примечание
Приточно-вытяжная вентиляция, доступ 24/7, 2 санузла, бесплатная закрытая парковка, много естественного света, оборудованная кухня, элементы безбарьерной среды.
Местоположение
- Область
- Населенный пункт
- Улица
- Номер дома
23
- Район города
- Микрорайон
- Координаты
53.8708, 27.5625
