Снять помещение, г. Минск, просп. Независимости, 168/2
28 р./м²
Тип
Площадь
Этаж
Описание
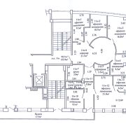
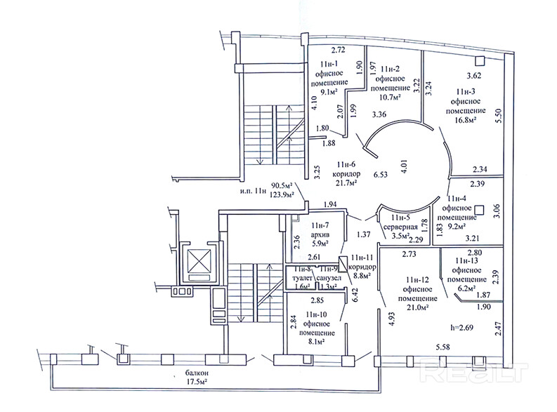
Аренда изолированного офиса 123,9 кв.м., возле станции метро "Уручье" на 3 этаже с балконом.
Офис сочетает в себе комбинированный формат открытого пространства и отдельных кабинетов. Высокая степень естественного освещения. Наличие балкона. Офис оборудован индивидуальной группой санитарного узла и мини-кухней. Здание обслуживается товариществом, что гарантирует надлежащее обслуживание. Доступ к офису круглосуточно.
Помещение готово к переезду.
Отделка офиса:
- напольное покрытие: плитка;
- отделка стен: окрашены;
- потолок подвесной, типа "Armstrong".
Инженерные системы и коммуникации:
- приточно-вытяжная вентиляция с механическим и естественным побуждением движения воздуха;
- кондиционирование;
- центральное водоснабжение и отопление;
- пожарная сигнализация.
Парковка:
Свободная плоскостная парковка возле здания, что обеспечивает удобство для сотрудников и клиентов.
Транспортное сообщение:
Станция метро «Уручье» и более десяти маршрутов городского транспорта курсирует в шаговой доступности от здания.
автобусы: 300э, 309, 310, 334, 349, 362, 371, 386, 395, 395б, 395в, 395а, 399, 410, 410а, 410в, 486
маршрутки: 1062, 1121, 1121у, 2318ск, 2319ск, 2430ск, 1400
Инфраструктура:
Множество кафе и ресторанов (Тейсти фуд, Куркума, Шкварки, Папа Донер, Додо Пицца, KFC, Burger King), продуктовых магазинов (Евроопт, Санта, Соседи), а также различные услуги (Аптеки, ТЦ «Спектр», тренажерный зал «Спортфэмили», салон красоты) и банковские отделения (Альфа-Банк, Приорбанк, СберБанк, Банк БелВэб).
Арендатор не оплачивает услуги агентства.
Result Estate — ваш надёжный партнёр на рынке недвижимости.
20 лет опыта наших агентов по недвижимости — это ваш ключ к идеальной сделке: глубокое знание рынка, эксклюзивные предложения, юридическая безопасность и индивидуальный подход. Мы экономим ваше время, деньги и нервы, помогая купить, продать недвижимость быстро, выгодно и с уверенностью в результате!
ООО «Результативная недвижимость», лицензия выдана Минюстом 26.09.2023 № 02240/470, УНП 193703497
Связываясь с нами по данному объекту, Вы даете свое согласие на сбор и обработку персональных данных автоматически.
Параметры объекта
- Тип объекта
Помещение
- Площадь общая
123.90 м²
- Этаж / этажность
3 / 12
- Год постройки
2007
- Раздельных помещений
6
- Материал стен
Кирпичный
- Ремонт
Хороший
- Отопление
Есть
- Электроснабжение
Есть
- Естественное освещение
Есть
- Вода
Есть
- Санузел
Есть
- Принадлежность объекта
Частная
- НДС
НДС включен
- Номер договора
105/1a от 21.12.2025
Сергей Костюкевич
Агент по недвижимости
Примечание
Местоположение
- Область
- Населенный пункт
- Улица
- Номер дома
168/2
- Район города
- Микрорайон
- Координаты
53.9452, 27.6913
