Аренда офисных/ свободных помещений в ТРЦ «GreenTime»
от 600 р.
Аренда
Следить за ценой
- г. Минскул. Рудобельская, 3
- Автозаводская
- На карте
Помещение
Тип
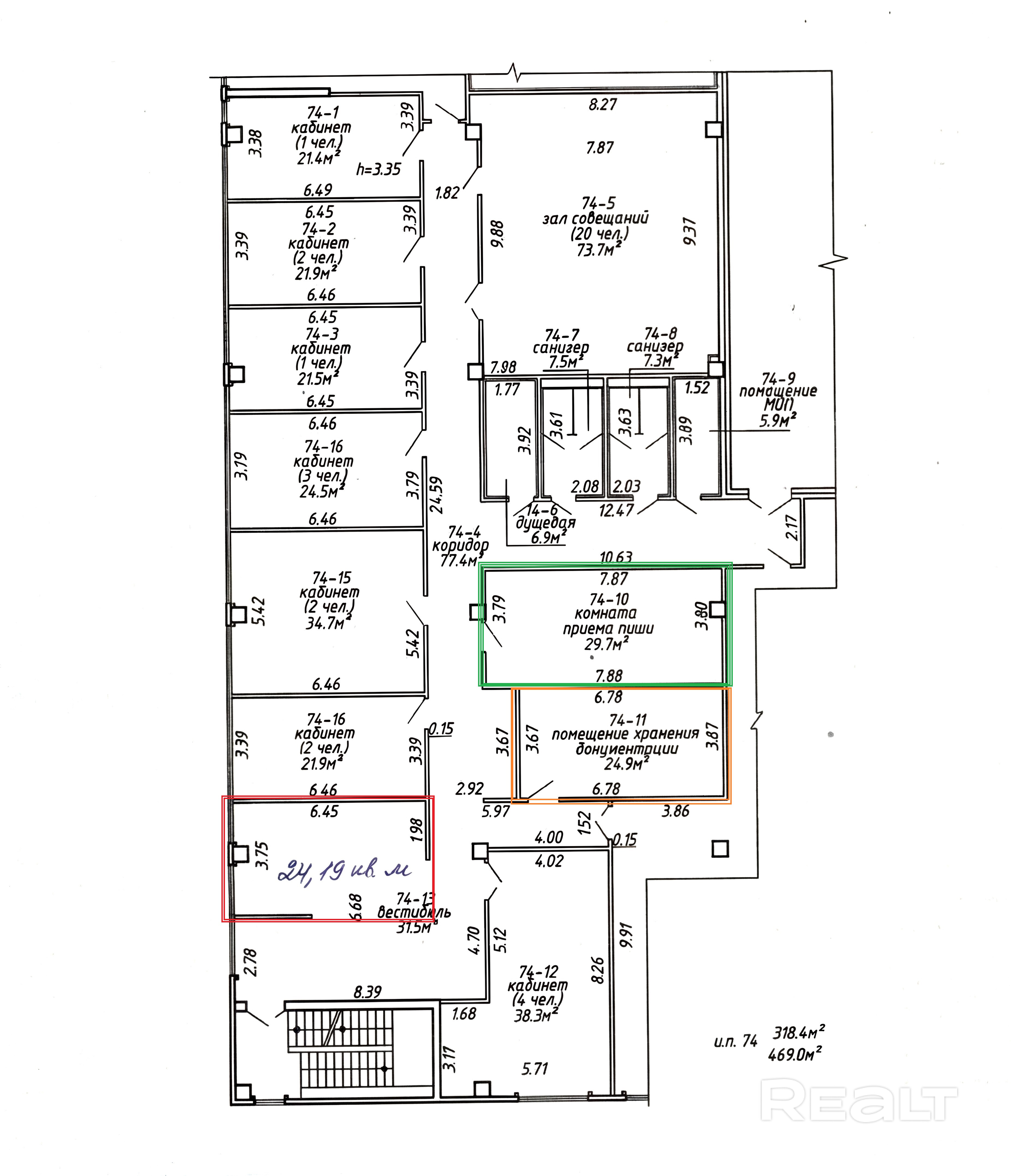
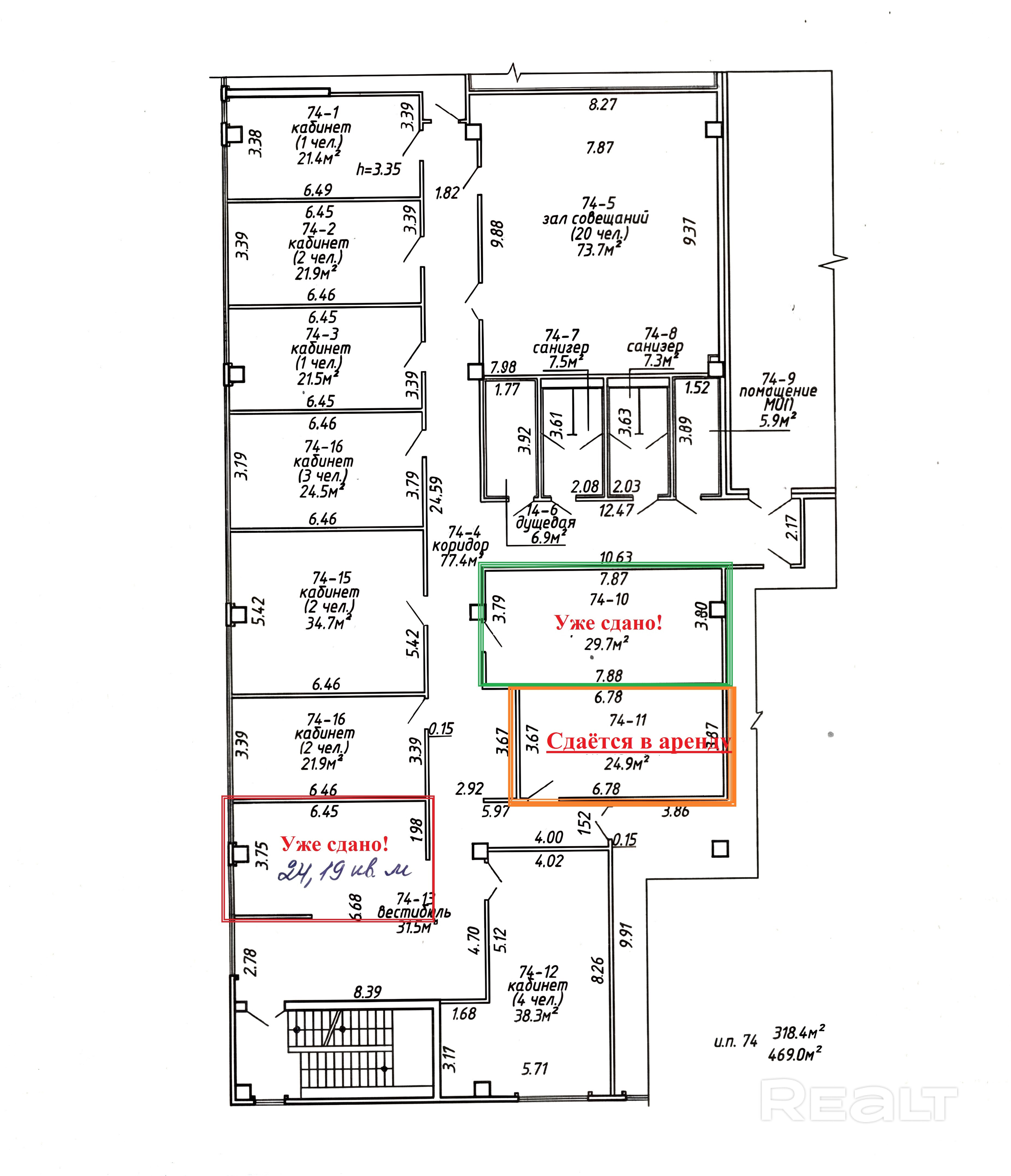
24.90 м²
Площадь
2 из 2
Этаж
13.04.2026ID 4034933
Описание
Аренда офисных помещений в офисном блоке ТРЦ «GreenTime». Доступные площади: 24,9 кв.м. Доступ: ежедневно с 8.00 до 22.00.
Лояльны к обсуждения условий долгосрочного сотрудничества. Без оплаты услуг агентства недвижимости.
Параметры объекта
- Тип объекта
Помещение
- Площадь общая
24.90 м²
- Этаж / этажность
2 / 2
- Год постройки
2022
- Раздельных помещений
1
- Высота потолков
3 м
- Ремонт
Хороший
- Отопление
Есть
- Электроснабжение
Есть
- Естественное освещение
Есть
- Количество телефонов
1 телефон
- Парковка
Есть
- Принадлежность объекта
Частная
- НДС
НДС включен
- Расположение
В торговом центре
- Номер договора
22/4а от 08.02.2026
Оснащение
Видеонаблюдение
Оживленное место
Интернет
Мебель
Примечание
Аренда офисных помещений в офисном блоке ТРЦ «GreenTime». Доступные площади: 24,9 кв.м. Доступ: ежедневно с 8.00 до 22.00. Лояльны к обсуждения условий долгосрочного сотрудничества. Без оплаты услуг агентства недвижимости.
Местоположение
- Область
- Населенный пункт
- Улица
- Номер дома
3
- Район города
- Микрорайон
- Координаты
53.861, 27.6379
