Помещение с отдельным входом под любой вид деятельности рядом с Партизанским проспектом
28 р./м²
- г. Минскул. Тростенецкая, 3
- Пролетарская
- На карте
Тип
Площадь
Этаж
Описание
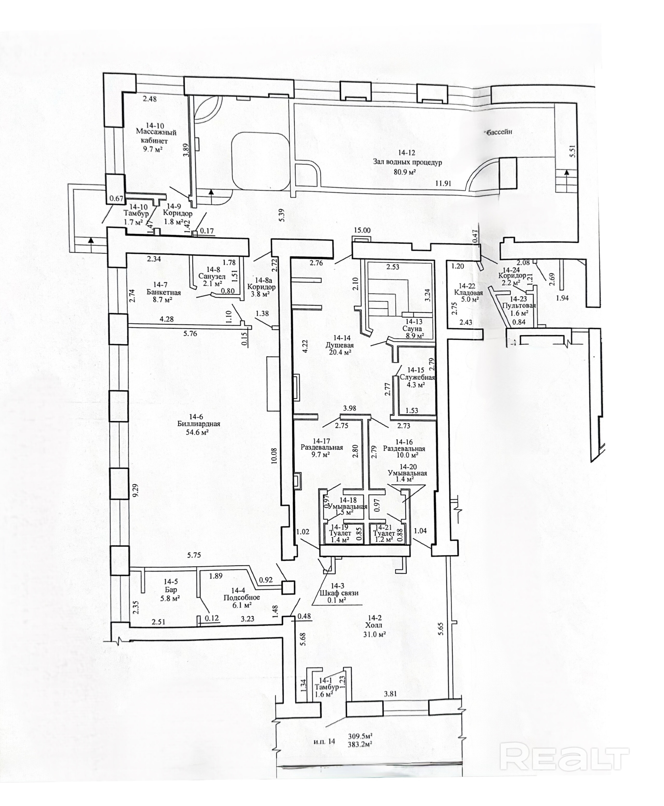
Аренда административного помещения на первом этаже с отдельным входом, расположенного по адресу: ул. Тростенецкая, 3.
Общая площадь: 300,9 м2 (возможна аренда части помещения). Комбинированная планировка, большое количество окон. Высота потолка около 3 метров. Фактическое состояние и итоговое назначение объекта определяются арендатором.
Доступ: 24/7
Отделка помещения: - напольное покрытие: плитка
- стены: окрашены, плитка
-окна: стеклопакеты
-ремонт: требуется косметическое либо капитальное обновление интерьера под корпоративный стандарт арендатора
Инженерные системы и коммуникации:
- приточно-вытяжная вентиляция
-центральные: отопление, водоснабжение, канализация
-индивидуальные приборы учета электроэнергии и водоснабжения
Парковка: бесплатная гостевая зона у входа + 2 крупные охраняемые стоянки на 950+ мест в радиусе 100 метров.
Развитая инфраструктура и логистика:
- транспорт: 700м (7 минут ) до ст. м. «Пролетарская», удобный выезд на Партизанский проспект, 600м до развязки ул.Аранская-пр.Партизанский, 300м до остановок наземного транспорта, 5минут на авто до центра столицы.
-банки: рядом отделения «Беларусбанка»,«Приорбанка», банкоматы в ТЦ поблизости
-питание: в здании работают столовая и кафе; в шаговой доступности — ресторан «Генацвале» и гастро-локации ул. Октябрьской.
-сервисы: в здании - многопрофильный МЦ «Sante», рядом- пункт выдачи 21vek.by, СТО и автомойки.
Result Estate — ваш надёжный партнёр на рынке недвижимости.
20 лет опыта наших агентов по недвижимости — это ваш ключ к идеальной сделке: глубокое знание рынка, эксклюзивные предложения, юридическая безопасность и индивидуальный подход. Мы экономим ваше время, деньги и нервы, помогая купить, продать недвижимость быстро, выгодно и с уверенностью в результате!
Все актуальные предложения в одном месте — смотрите на нашем сайте.
Опишите свои пожелания — и мы оперативно подберем для вас лучшие варианты!
ООО «Результативная недвижимость», лицензия выдана Минюстом 26.09.2023 № 02240470, УНП 193703497
Связываясь с нами по данному объекту, Вы даете свое согласие на сбор и обработку персональных данных автоматически.
Параметры объекта
- Тип объекта
Помещение
- Площадь общая
150 - 300.90 м²
- Этаж / этажность
1 / 6
- Раздельных помещений
10
- Материал стен
Кирпичный
- Ремонт
Хороший
- Отопление
Есть
- Электроснабжение
Есть
- Естественное освещение
Есть
- Вода
Есть
- Санузел
Есть
- Парковка
Есть
- Принадлежность объекта
Частная
- НДС
НДС нет (0%)
- Номер договора
17/1а от 24.02.2026
Результативная недвижимость
Контактное лицо
Примечание
Местоположение
- Область
- Населенный пункт
- Улица
- Номер дома
3
- Район города
- Микрорайон
- Координаты
53.8836, 27.5829
