Производственный комплекс в Углянах.
12 р./м²
Тип
Площадь
Этаж
Описание
Сдаётся в аренду производственный комплекс в деревне Угляны, Юзуфовского с/с, Минского района. Удобное расположение в 18 км. от МКАД по Мядельскому направлению. В 3 минутах ходьбы остановка общественного транспорта.
Имеется архитектурный проект модернизации. Идеально подходит для пищевой промышленности.
Площадь участка 41 сотка. Отличные коммуникации. Электричество от ТП, существующая мощность 160 кВт. Есть возможность увеличения мощности. Центральный водопровод, скважина, местная канализация, видеонаблюдение, интернет. Рядом газ.
У Вас есть прекрасная возможность приобрести выгодное решение для вашего бизнеса.
Лицензия: 02240/446 МЮ РБ, 11.07.2022
Параметры объекта
- Тип объекта
Производство
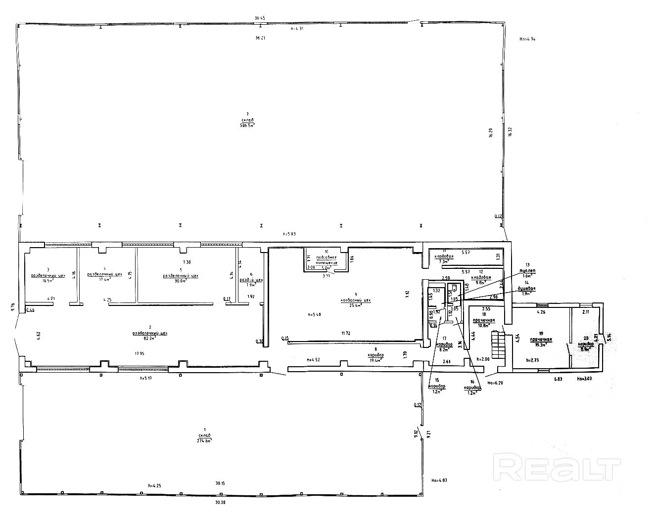
- Площадь общая
1233.10 м²
- Этаж / этажность
1 / 1
- Год постройки
2015
- Раздельных помещений
3
- Материал стен
Кирпичный
- Ремонт
Нормальный
- Отопление
Есть
- Электроснабжение
Есть
- Электрическая мощность
160 кВт
- Естественное освещение
Есть
- Вода
Есть
- Санузел
Есть
- Оборудование
Есть
- Количество телефонов
1 телефон
- Парковка
Есть
- НДС
НДС включен
- Юридический адрес
Да
- Номер договора
3/1А от 26.01.2026
Оснащение
Готовый бизнес
Примечание
Местоположение
- Область
- Район
- Населенный пункт
- Сельсовет
Юзуфовский с/с
- Направление
Мядельское, 15.5 км от МКАД
- Координаты
54.104186711, 27.477220446
