Коммерческое помещение премиум-класса на улице Интернациональная.
66 р./м²
- г. Минскул. Интернациональная, 3
- Немига
- 5 минут
- На карте
Тип
Площадь
Этаж
Описание
Коммерческое помещение премиум-класса на улице Интернациональная.
Уникальное предложение для репрезентативного бизнеса в сердце Минска. Помещение расположено в историческом центре города, на главной пешеходной артерии Верхнего города, где сохранилась уникальная атмосфера и архитектура XVIII-XIX веков. Ежедневный поток туристов и местных жителей создает идеальные условия для бизнеса.
Архитектурные особенности
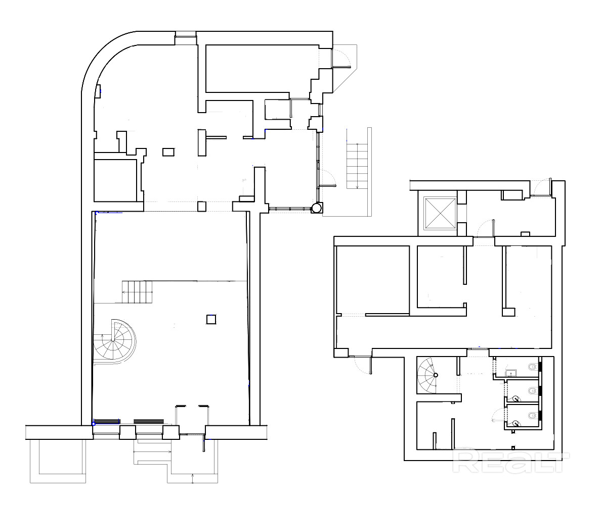
Пространство предлагает нестандартные планировочные решения с высотой потолков 6 метров, что открывает широкие возможности для реализации смелых дизайнерских концепций. Дополнительным преимуществом является антресольная часть, эффективно увеличивающая полезную площадь.
Транспортная доступность и входы
Объект имеет два независимых входа: парадный выход на пешеходную улицу Интернациональную и дополнительный доступ на стилобатную часть. Такая планировка обеспечивает удобную логистику и возможность организации летней террасы.
Технические характеристики
Помещение оснащено неограниченными электрическими мощностями и развитой системой вентиляции, что позволяет размещать любые форматы бизнеса без технических ограничений. Санузлы изолированы в отдельный блок.
Планировка
Общая площадь составляет 200 м2, включая 170 м2 на первом этаже и 30 м2 в цокольной части. Цокольный этаж идеально подходит для организации подсобных помещений, гардеробной или технических зон.
Бизнес-перспективы
Локация оптимальна для премиальных ресторанов, баров, шоу-румов, галерей или флагманских ритейл-проектов. Дополнительным преимуществом является возможность организации летней террасы на улице Интернациональной и стилобатной части, а также опции по размещению парковочных мест.
Финансовые условия
Для запуска проекта предусмотрены арендные каникулы на период проведения ремонтных работ. Собственник проявляет гибкий подход и готов рассматривать варианты участия в адаптации помещения под конкретный проект.
Это возможность создать бизнес с уникальной идентичностью в месте с богатой историей и стабильным клиентским потоком. Помещение сочетает современные технические возможности с аутентичной атмосферой самого престижного района Минска.
Лицензия: 02240/446 МЮ РБ, 11.07.2022
Параметры объекта
- Тип объекта
Кафе
- Площадь общая
176.80 м²
- Этаж / этажность
1 / 5
- Материал стен
Кирпичный
- Высота потолков
3 м
- Ремонт
Без отделки
- Отопление
Есть
- Электроснабжение
Есть
- Естественное освещение
Есть
- Вода
Есть
- Парковка
Есть
- Принадлежность объекта
Частная
- НДС
НДС включен
- Юридический адрес
Да
- Номер договора
51/1А от 21.10.2025
Оснащение
Оживленное место
Отдельный вход
Фаттория
Контактное лицо
Примечание
Местоположение
- Область
- Населенный пункт
- Номер дома
3
- Район города
- Координаты
53.9011, 27.552
