Снять кафе, г. Минск, ул. Кальварийская, 4
40 р./м²
- г. Минскул. Кальварийская, 4
- Фрунзенская
- На карте
Тип
Площадь
Этаж
Описание
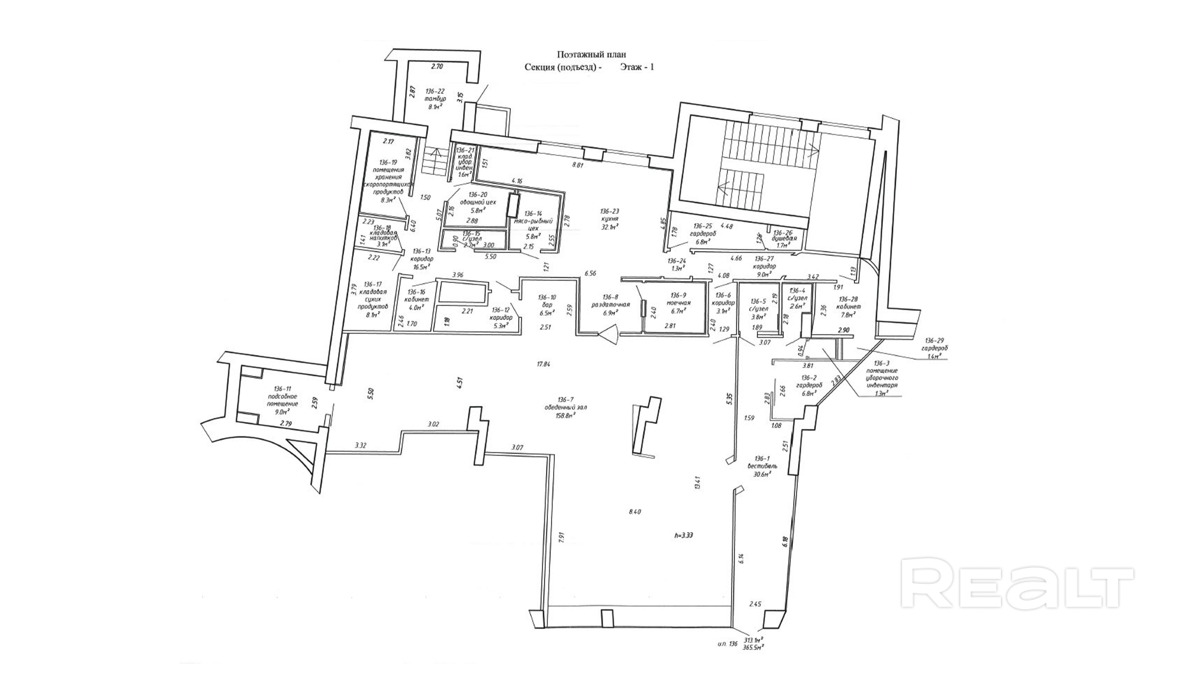
Аренда помещения под общепит площадью 365,5 м2 с отдельным входом на первом этаже в 2-х минутах ходьбы до станции метро "Фрунзенская"
Здание располагается в центре города.
Наличие отдельного входа с улицы, так же имеется отдельный вход с подъездом для разгрузки/погрузки
Полностью оборудованная кухонная зона.
Электрическая мощность - 50 кВт.
- Общая площадь помещения – 365,5 м2
Отделка:
- напольное покрытие: паркет/плитка;
- отделка стен: окрашены.
- потолок окрашен;
Инженерные системы и коммуникации:
- приточно-вытяжная вентиляция;
- кондиционирование;
- центральное водоснабжение и отопление;
- пожарная сигнализация;
- доступ 24/7;
Парковка:
Свободная плоскостная парковка возле здания.
Транспортное сообщение: Станция метро «Фрунзенская» в 2-х минутах шаговой доступности. Более десяти маршрутов городского транспорта курсирует в шаговой доступности от здания.
Удобное местоположение обеспечивает легкую доступность для сотрудников и посетителей.
Result Estate — ваш надёжный партнёр на рынке недвижимости.
20 лет опыта наших агентов по недвижимости — это ваш ключ к идеальной сделке: глубокое знание рынка, эксклюзивные предложения, юридическая безопасность и индивидуальный подход. Мы экономим ваше время, деньги и нервы, помогая купить, продать недвижимость быстро, выгодно и с уверенностью в результате!
Опишите свои пожелания — и мы оперативно подберем для вас лучшие варианты!
ООО «Результативная недвижимость», лицензия выдана Минюстом 26.09.2023 № 02240470, УНП 193703497
Параметры объекта
- Тип объекта
Кафе
- Площадь общая
365.50 м²
- Этаж / этажность
1 / 11
- Отопление
Есть
- Электроснабжение
Есть
- Естественное освещение
Есть
- Вода
Есть
- Санузел
Есть
- Принадлежность объекта
Частная
- НДС
НДС включен
- Номер договора
23/1a от 04.03.2026
Сергей Костюкевич
Агент по недвижимости
Примечание
Местоположение
- Область
- Населенный пункт
- Улица
- Номер дома
4
- Район города
- Координаты
53.9061, 27.5388
