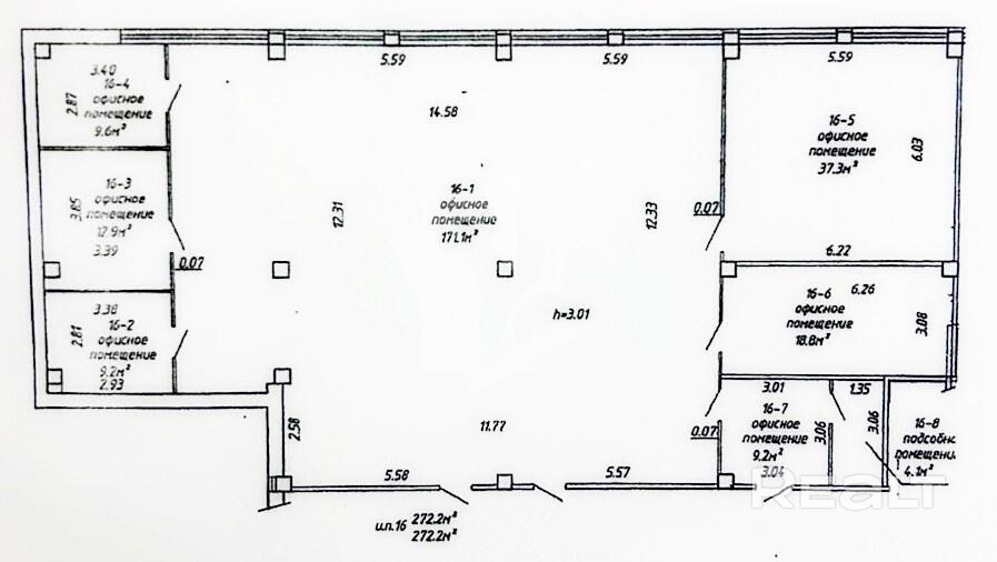
Аренда офисного помещения 272.2 м в Бизнес центре по адресу ул. Жуковского 11А.
30 р./м²
- г. Минскул. Жуковского, 11/А
- Ковальская Слобода
- На карте
Тип
Площадь
Этаж
Описание
Аренда офисного помещения 273 м в Бизнес центре по адресу ул. Жуковского 11А.
Офисное помещение находится на 6 этаже. (Возможна частичная сдача)
Есть парковка, пространство разделено на отдельные, изолированные кабинеты, переговорные комнаты, гардероб, кухню. Сан узлы на этаже. Арендные каникулы возможны. Есть возможность размещения наружной рекламы на фасаде. Доступ 24/7. Помещение готово к переезду.
На 1-этаже здания магазин «Соседи», аптека и фитнес-клуб. Рядом множество кафе, продовольственных и промышленных магазинов. Хорошая транспортная доступность.
Офисное помещение находится на 6 этаже.
Есть парковка, пространство разделено на отдельные, изолированные кабинеты, переговорные комнаты, гардероб, кухню. Сан узлы на этаже. Арендные каникулы возможны. Есть возможность размещения наружной рекламы на фасаде. Доступ 24/7. Помещение готово к переезду.
- приточно-вытяжная вентиляция;
- кондиционер;
- разведены электрические и слаботочные сети;
- скоростной интернет;
- видеонаблюдение;
- два бесшумных скоростных лифта "Kone";
- система СКУД (систем контроля доступа).
Больше объявлений тут: www.instagram.com/garant.arenda
Напишите нам в удобный для Вас мессенджер:
Viber | Telegram | WhatsApp
Ответим на Ваши вопросы, предоставим всю необходимую дополнительную информацию.
ООО «Артель Недвижимость»
УНП 193820882
Лицензия Министерства Юстиции №48250000081913 06.03.2025 г.
Договор № 232/2а от 24.10.2025
Параметры объекта
- Тип объекта
Сфера услуг
- Площадь общая
272.20 м²
- Этаж / этажность
5 / 7
- Год постройки
2016
- Класс
B
- Раздельных помещений
9
- Материал стен
Блочный
- Высота потолков
3 м
- Ремонт
Хороший
- Отопление
Есть
- Электроснабжение
Есть
- Электрическая мощность
40 кВт
- Естественное освещение
Есть
- Санузел
Есть
- Парковка
Есть
- Принадлежность объекта
Частная
- НДС
НДС нет (0%)
- Расположение
В бизнес центре
- Юридический адрес
Да
- Номер договора
232/2а от 23.10.2025
Оснащение
Кондиционер
Сигнализация
Видеонаблюдение
Оживленное место
Компьютерная сеть
Интернет
Недвижимость
Контактное лицо
Примечание
Местоположение
- Область
- Населенный пункт
- Улица
- Номер дома
11/А
- Район города
- Микрорайон
- Координаты
53.8809, 27.5514
