Аренда 264,5 м² на 1 этаже в семейном центре Галактика
от 12 167 р.
от 46 р.≈ от 16 $ за м²
Аренда
Следить за ценой
- г. Минскул. Коласа, 3
- Площадь Якуба Коласа
- На карте
Сфера услуг
Тип
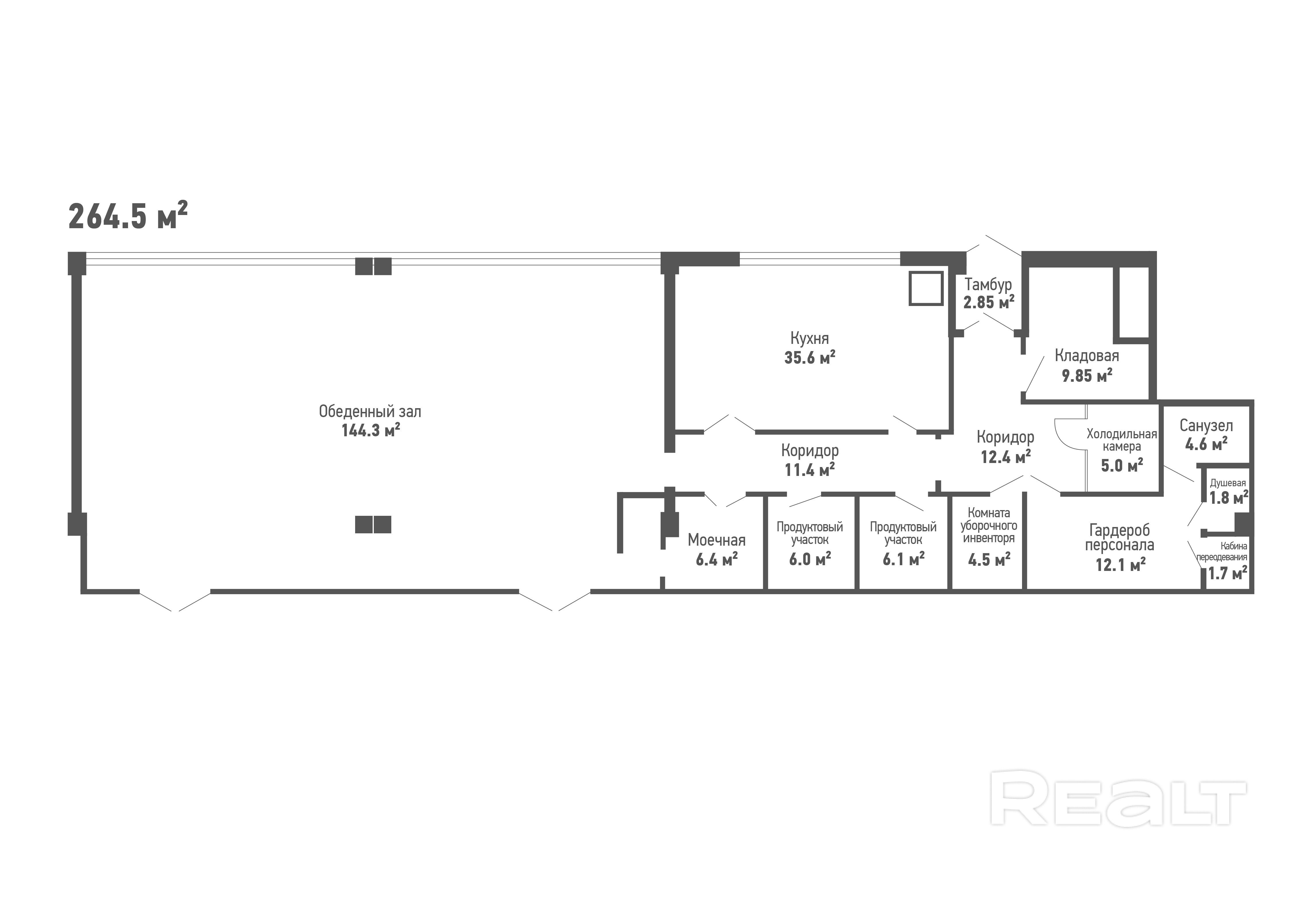
264.50 м²
Площадь
1
Этаж
13.03.2026ID 3942349
Описание
Это уникальная возможность разместить свой проект в месте с гарантированным высоким трафиком вашей целевой аудитории – семей с детьми.
Ключевые преимущества локации:
- 1-й ЭТАЖ: Максимальная видимость и легкий доступ для всех посетителей "Галактики".
- ЦЕЛЕВОЙ ТРАФИК: семейный центр Галактика – точка притяжения для семей. Вам не нужно искать клиентов, они уже здесь – пришли за развлечениями, покупками и услугами.
- СИНЕРГИЯ: Вашими соседями будут другие операторы детской и семейной тематики, что создает мощный синергетический эффект и увеличивает поток посетителей.
Кого мы ищем?
Мы ищем арендаторов, чей бизнес дополнит и усилит нашу "семейную" концепцию. Идеально подойдут:
- Магазины детских товаров (одежда, обувь, игрушки, книги)
- Развивающие центры, кружки, студии (робототехника, рисование, танцы, языковые школы)
- Семейные кафе, кондитерские, точки здорового питания
- Детские парикмахерские
- Центры услуг для мам и детей
- Фотостудии
- Любой другой бизнес, ориентированный на детей и их родителей.
Условия:
- Расположение: 1-й этаж, семейный центр Галактика (МФК "Атмосфера")
- Адрес: г. Минск, ул. Якуба Коласа, 3
- Доступные площади: В наличии помещения от 42.3 м2 до 415 м2. Готовы подобрать оптимальный метраж под ваши задачи.
Параметры объекта
- Тип объекта
Сфера услуг
- Площадь общая
264.50 м²
- Этаж
1
- Год постройки
2026
- Класс
A
- Материал стен
Блочный
- Высота потолков
3 м
- Ремонт
Без отделки
- Отопление
Есть
- Электроснабжение
Есть
- Вода
Есть
- Санузел
Есть
- Парковка
Есть
- Принадлежность объекта
Частная
- НДС
НДС включен
- Расположение
В развлекательном центре
- Юридический адрес
Да
Оснащение
Охрана
Сигнализация
Видеонаблюдение
Оживленное место
Арендодатель
Менеджер
Контактное лицо
Примечание
Предлагаем в аренду коммерческое помещение для вашего бизнеса в самом сердце семейно-развлекательного центра "Галактика", расположенного в многофункциональном комплексе "Атмосфера".
Местоположение
- Область
- Населенный пункт
- Улица
- Номер дома
3
- Район города
- Координаты
53.9174, 27.5827
