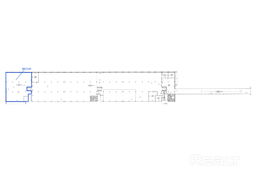
Аренда помещения 567.2 кв.м. под производство по ул.Хоружей 25/12
16 335 р.
Аренда
Следить за ценой
- г. Минскул. Хоружей, 25/12
- Площадь Якуба Коласа
- 7 минут
- На карте
Сфера услуг
Тип
567.20 м²
Площадь
3 из 3
Этаж
19.03.2026ID 4068053
Описание
Плюсы аренды?
- Круглосуточный доступ
- Свободная планировка (open space)
- Высота потолков — 3,9 м.
- Закрытая парковка (1-ый час аренды бесплатно, удобно для клиентов и поставщиков)
Коммуникации?
- электричество
- отопление
- имеется возможность подведения воды и канализации
Дополнительные затраты?
- эксплуатационные расходы
- коммуналка (вода, электричество — выставляется по потреблению по гос. тарифам для юр.лиц)
- аренда машиноместа, если вы планируете оставлять их на территории
Что по помещениям свободным и предлагаемым в аренду на этом объекте?
- от 10 кв.м. до 3040 кв.м.
Под что можно снять помещения?
- склады
- производства
- офисы
- общепит: кафе, бары, рестораны
- услуги
- любые другие ваши идеи и проекты готовы обсудить, уточняйте
Звоните, пишите, будем рады вам и по телефону, и в viber/telegram. Все покажем и расскажем, заодно проведем экскурсию по объекту :)
Параметры объекта
- Тип объекта
Сфера услуг
- Площадь общая
567.20 м²
- Этаж / этажность
3 / 3
- Материал стен
Кирпичный
- Высота потолков
3.5 м
- Ремонт
Хороший
- Отопление
Есть
- Электроснабжение
Есть
- Естественное освещение
Есть
- Вода
Есть
- Парковка
Есть
- Принадлежность объекта
Частная
- НДС
НДС включен
- Юридический адрес
Да
Арендодатель
(собственник)
Контактное лицо
Примечание
Хотите снять в аренду производственное или складское помещение с удобной парковкой? Помещение занимает 3 этаж здания.
Местоположение
Площадь Якуба Коласа7 минут
- Область
- Населенный пункт
- Улица
- Номер дома
25/12
- Район города
- Координаты
53.921393, 27.565407
