Помещение под офис или сферу услуг в Лебяжем
36 698 р.
45 р.≈ 16 $ за м²
Тип
Площадь
Этаж
Описание
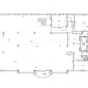
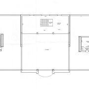
Помещение общей площадью 815,5 кв.м. подойдет для размещения офиса крупной компании либо организации развлекательной деятельности, открытия обучающего центра, галереи, творческой студии, а также для любых других сфер бизнеса.
Сочетание открытого пространства с высокими потолками (6,5 м) и отдельных кабинетов позволяет объединить административную и активную деятельность.
Второй уровень в виде антресоли создает дополнительную полезную площадь и возможности для реализации большего количества дизайнерских идей, а также решений по оптимизации пространства.
Для комфорта арендаторов предусмотрены:
- просторная зона ресепшн
- два раздельных санузла
- гардероб для сотрудников
- оборудованная кухня
- приточно-вытяжная система вентиляции
- система кондиционирования
- доступ 24/7
Выгодное месторасположение в престижном районе, большая плоскостная стоянка возле здания, быстрый выезд на основные крупные магистрали города и МКАД.
Если вас заинтересовало предложение, позвоните нам и мы ответим на все ваши вопросы!
Арендатор не оплачивает услуги риэлтерской организации!
Параметры объекта
- Тип объекта
Сфера услуг
- Площадь общая
815.50 м²
- Этаж / этажность
3 / 3
- Год постройки
2017
- Ремонт
Нормальный
- Отопление
Есть
- Электроснабжение
Есть
- Естественное освещение
Есть
- Вода
Есть
- Санузел
Есть
- Парковка
Есть
- Принадлежность объекта
Частная
- НДС
НДС нет (0%)
- Юридический адрес
Да
- Номер договора
108/1а от 05.04.2026
Оснащение
Охрана
Видеонаблюдение
Интернет
Наталья Кревская
Агент по недвижимости
Примечание
Местоположение
- Область
- Населенный пункт
- Улица
- Номер дома
26
- Район города
- Микрорайон
- Координаты
53.9401, 27.4648
