Снять торговое помещение, г. Минск, ул. Нововиленская, 61
40 - 41 р./м²
Тип
Площадь
Этаж
Описание
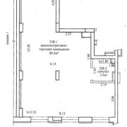
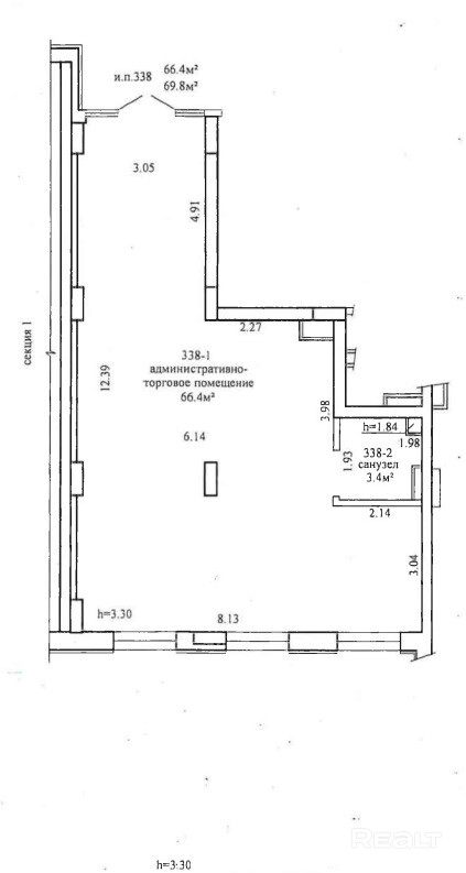
Сдаётся в аренду помещение административно-торгового назначения площадью 69,80 кв.м. в ЖК "Левада", по ул. Нововиленская, д.61
Арендная ставка 40,80 руб./кв.м с НДС.
Помещение расположено на первом этаже жилого дома. Рядом вход в подъезд.
Светлое и просторное помещение с отдельным входом. Может использоваться под аренду различных сфер торговли и услуг. Рядом парковочная зона. Развито транспортное сообщение, рядом ул. Орловская, Нововиленская.
Звоните! В наличии есть другие предложения по аренде административно-торговых помещений, а также помещения под кафе. Поможем подобрать помещение в аренду без дополнительных оплат.
Параметры объекта
- Тип объекта
Торговое помещение
- Площадь общая
69.80 м²
- Этаж / этажность
1 / 9
- Высота потолков
3 м
- Ремонт
Без отделки
- Отопление
Есть
- Электроснабжение
Есть
- Естественное освещение
Есть
- Вода
Есть
- Санузел
Есть
- Принадлежность объекта
Частная
- НДС
НДС включен
- Расположение
В жилом доме
- Номер договора
24/3а от 03.07.2023
Примечание
Местоположение
- Область
- Населенный пункт
- Улица
- Номер дома
61
- Район города
- Микрорайон
- Координаты
53.936996344, 27.528776598
