Сдается торговая площадь 64.5 м² в молодом и густонаселенном районе Минска!
53 р./м²
- г. Минскул. Белградская, 9
- Аэродромная (2024)
- 5 минут
- На карте
Тип
Площадь
Этаж
Описание
Сдается торговая площадь 64.5 м2 в молодом и густонаселенном районе Минска!
Расположение:
• Первая линия с большим пешеходным трафиком
• Дом расположен на перекрестке, соседи"ЕвроПочта"
• Отдельный вход, санузел
• Удобные подъездные пути и остановки общественного транспорта в шаговой доступности
• Рядом находятся школы, детские сады, торговые центры и другие организации
Описание помещения:
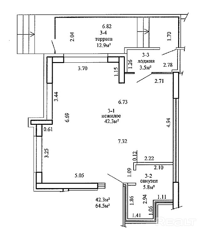
• Общая площадь: 64.5 м2
• Первый этаж с отдельным входом
• высокие потолки
• Возможность проведения ремонта под ключ по вашему дизайн-проекту
• Подведены все необходимые коммуникации: тепло, канализация, вода, электричество, интернет
Условия аренды:
• Минимальный срок аренды: 1 год
• Возможность продления договора на выгодных условиях
• Гибкие условия для надежных и долгосрочных арендаторов
Преимущества для бизнеса:
• Идеальное место для розничного магазина, салона красоты, кафе или офиса
• Молодой и динамично развивающийся район с высокой плотностью населения
• Отличная видимость и доступность благодаря расположению на перекрестке
• Постоянный поток потенциальных клиентов благодаря большому пешеходному трафику
Лицензия: 02240/446 МЮ РБ, 11.07.2022
Параметры объекта
- Тип объекта
Торговое помещение
- Площадь общая
64.50 м²
- Этаж / этажность
1 / 25
- Год постройки
2021
- Материал стен
Блочный
- Высота потолков
2.7 м
- Ремонт
Без отделки
- Электроснабжение
Есть
- Естественное освещение
Есть
- Вода
Есть
- Принадлежность объекта
Частная
- НДС
НДС не включен
- Расположение
В жилом доме
- Юридический адрес
Да
- Номер договора
33/1А от 19.08.2025
Фаттория
Контактное лицо
Примечание
Местоположение
- Область
- Населенный пункт
- Улица
- Номер дома
9
- Район города
- Микрорайон
- Координаты
53.8643, 27.5378
