Снять торговое помещение, г. Минск, ул. Николы Теслы, 10
65 р./м²
Аренда
Следить за ценой
- г. Минскул. Николы Теслы, 10
- Аэродромная (2024)
- На карте
Торговое помещение
Тип
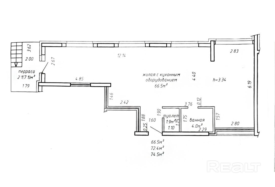
66.50 - 74.50 м²
Площадь
1 из 25
Этаж
26.09.2025ID 3894943
Описание
• Помещение в жилом комплексе "Минск Мир", квартал «Евразия».
• Расположение помещения на 1-ом этаже с отдельным входом.
• Высокий трафик пешеходов.
• Удобное транспортное расположение.
• Витражные окна
• Высокие потолки
• Делаем ремонт под Ваши пожелания (перегородки, стены , дизаин, развод воды на 3,4 точки)
• Ремонт 1,5 месяца, арендные каникулы 1,5 месяца.
• Можно использовать и как сферу услуг, торговое помещение или административное.
• Помещение рядом с парковкой.
• Дополнительно ответим на все Ваши вопросы по телефону.
Параметры объекта
- Тип объекта
Торговое помещение
- Площадь общая
66.50 - 74.50 м²
- Этаж / этажность
1 / 25
- Год постройки
2023
- Раздельных помещений
1
- Материал стен
Блочный
- Ремонт
Без отделки
- Отопление
Есть
- Электроснабжение
Есть
- Естественное освещение
Есть
- Вода
Есть
- Санузел
Есть
- Принадлежность объекта
Частная
- НДС
НДС нет (0%)
- Расположение
В жилом доме
- Номер договора
20/1а от 21.09.2025
Примечание
Помещение 74.5 м2 в ЖК "Минск Мир", квартал «Евразия».
Местоположение
- Область
- Населенный пункт
- Улица
- Номер дома
10
- Район города
- Микрорайон
- Координаты
53.8703, 27.5395
