Аренда многофункционального помещения в ТЦ «NOVAMALL».
26 р./м²
Тип
Площадь
Этаж
Описание
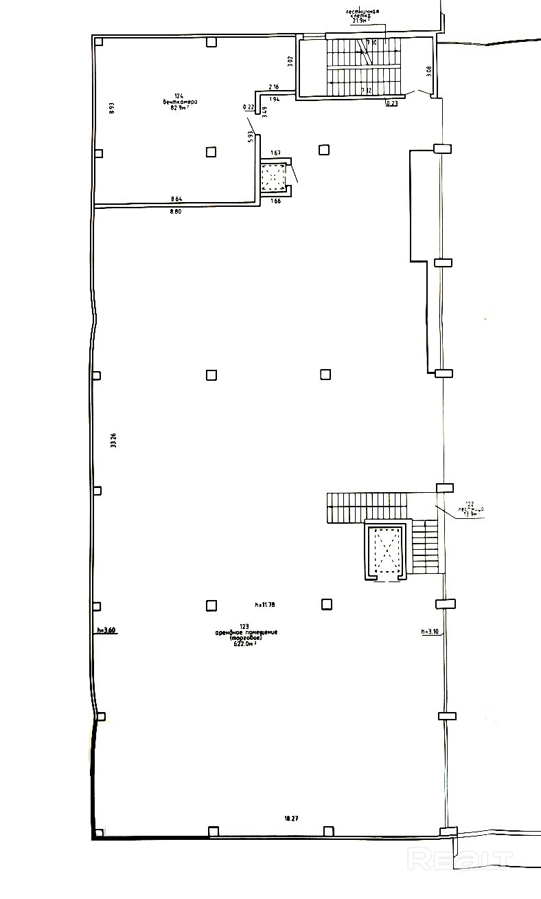
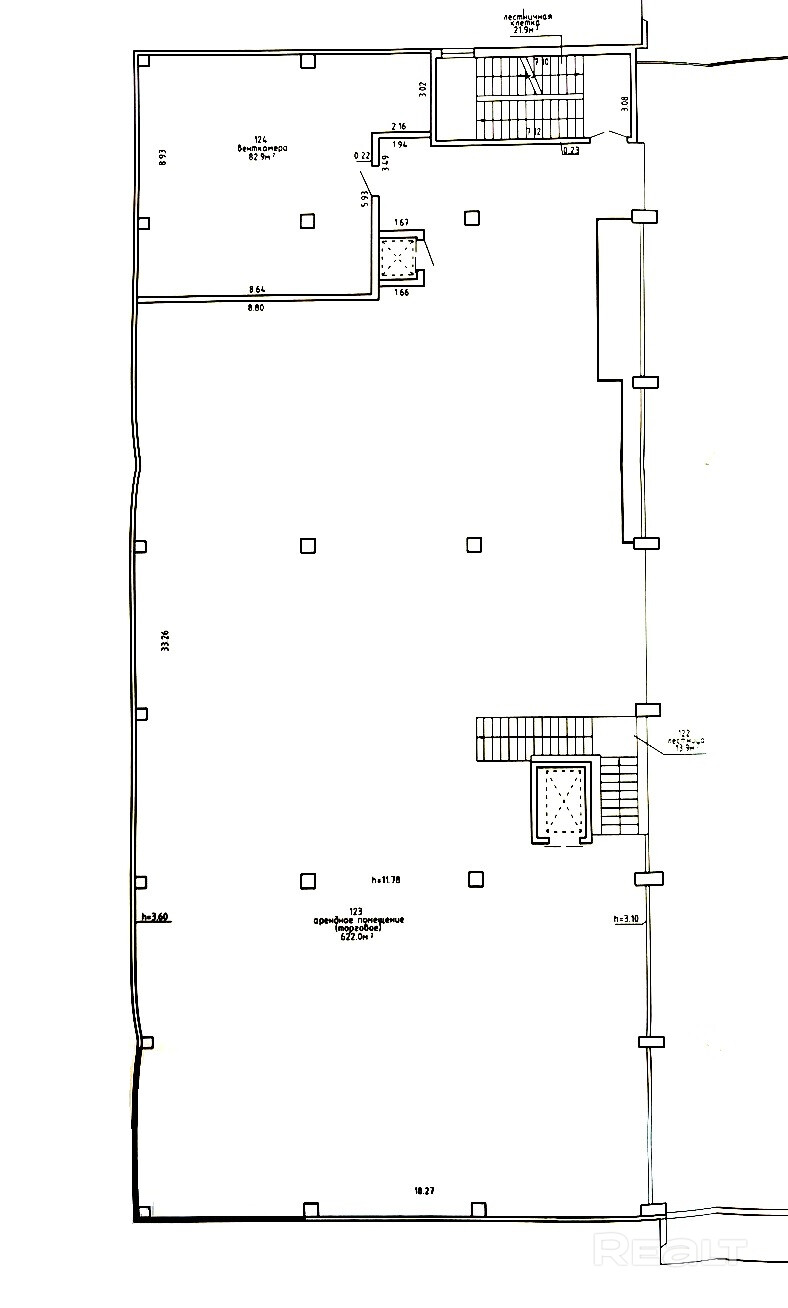
Доступная площадь – 630 кв.м. Возможность аренды целиком, либо части помещения – готовы к диалогу. Возможно разделение перегородками под офисные помещения или иные направления вашего бизнеса.
Эксплуатационные расходы - 6,5 руб./1.кв.м.
Имеющиеся коммуникации: электроснабжение, отопление, система приточно-вытяжной вентиляции, подвод воды и канализации, пожарная сигнализация, пассажирский и грузовой лифты, высокоскоростной интернет.
Помещение или его часть доступны для многих направлений коммерческой деятельности:
- организация офисов и шоурумов;
- магазины одежды, обуви, мебели и др.;
- спортивные и тренажерные залы, фитнес, йога и смежные направления;
- детский развлекательный центр, образовательный центр;
- игровые и развлекательные направления.
Отличная локация ТЦ «Novamall»: расположен в Боровлянах, в границах дорожно-транспортной развязки с высоким трафиком, всего в 6 км от МКАД Минска. Население Боровлян и близлежащих деревнях насчитывает около 60 000 человек. На сегодняшний день в ТЦ «Novamall» представлены такие якорные сети как ГИППО, Fix-price, Wildberries. Действующие арендаторы: Зоотовары, орехи и сухофрукты, магазин пива, магазин цветов, магазин вейпов, салон красоты BORO, также есть банкомат, кофейня, страховая компания, мобильные аксессуары, кондитерские изделия.
Лояльны к условиям аренды: арендные каникулы, нарезка необходимой площади от 150 кв.м., обеспечение доступными коммуникациями и готовность к диалогу и взаимовыгодному сотрудничеству.
По всем вопросам смело звоните!
Параметры объекта
- Тип объекта
Торговое помещение
- Площадь общая
150 - 630 м²
- Этаж / этажность
2 / 2
- Год постройки
2020
- Раздельных помещений
1 - 4
- Материал стен
Панельный
- Высота потолков
4 м
- Ремонт
Хороший
- Отопление
Есть
- Электроснабжение
Есть
- Естественное освещение
Есть
- Вода
Есть
- Санузел
Есть
- Парковка
Есть
- Принадлежность объекта
Частная
- НДС
НДС включен
- Расположение
В торговом центре
- Юридический адрес
Да
- Номер договора
42/4а от 29.10.2025
Оснащение
Охрана
Видеонаблюдение
Оживленное место
Интернет
Примечание
Местоположение
- Область
- Район
- Населенный пункт
- Улица
- Номер дома
2/б
- Сельсовет
Боровлянский с/с
- Направление
Логойское, 5 км от МКАД
- Координаты
54.0028, 27.66
