Снять торговое помещение, г. Минск, просп. Дзержинского, 21
42 р./м²
Аренда
Следить за ценой
Торговое помещение
Тип
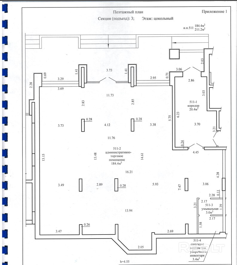
211.20 м²
Площадь
1 из 17
Этаж
12.05.2026ID 4059426
Параметры объекта
- Тип объекта
Торговое помещение
- Площадь общая
211.20 м²
- Этаж / этажность
1 / 17
- Год постройки
2022
- Раздельных помещений
1 - 2
- Материал стен
Монолитный
- Ремонт
Хороший
- Отопление
Есть
- Электроснабжение
Есть
- Электрическая мощность
17 кВт
- Естественное освещение
Есть
- Вода
Есть
- Санузел
Есть
- Парковка
Есть
- Принадлежность объекта
Частная
- НДС
НДС включен
- Расположение
В жилом доме
- Юридический адрес
Да
- Новостройка
Да
Оснащение
Кондиционер
Оживленное место
Отдельный вход
Арендодатель
Андрей
Контактное лицо
Примечание
Супер-предложение по цене помещение без ремонта на помещение с ремонтом!! Цена указана с НДС! - 2 отдельных своих входа! - потолки 4.5м! - Выполнен прекрасный ремонт! - Давно заселившийся дом! Отлично подойдет для торговли, оказания услуг, шоу-рума, студии танцев и любого другого вида деятельности! Звоните и мы обязательно договоримся!
Местоположение
- Область
- Населенный пункт
- Улица
- Номер дома
21
- Район города
- Микрорайон
- Координаты
53.8838, 27.5093
