Снять торговое помещение, г. Минск, ул. Матусевича, 66
46 р./м²
- г. Минскул. Матусевича, 66
- Кунцевщина
- На карте
Тип
Площадь
Описание
ШИКАРНАЯ ЛОКАЦИЯ НА ПЕРЕКРЕСТКЕ!
Сдаётся в аренду административно-торговое помещение в г. Минск, ул. Матусевича, 66.
Идеальное расположение — высокий пешеходный и автомобильный трафик, центр плотной жилой застройки. Отлично подойдёт под банк, магазин, офис, медцентр, услуги.
Основные характеристики:
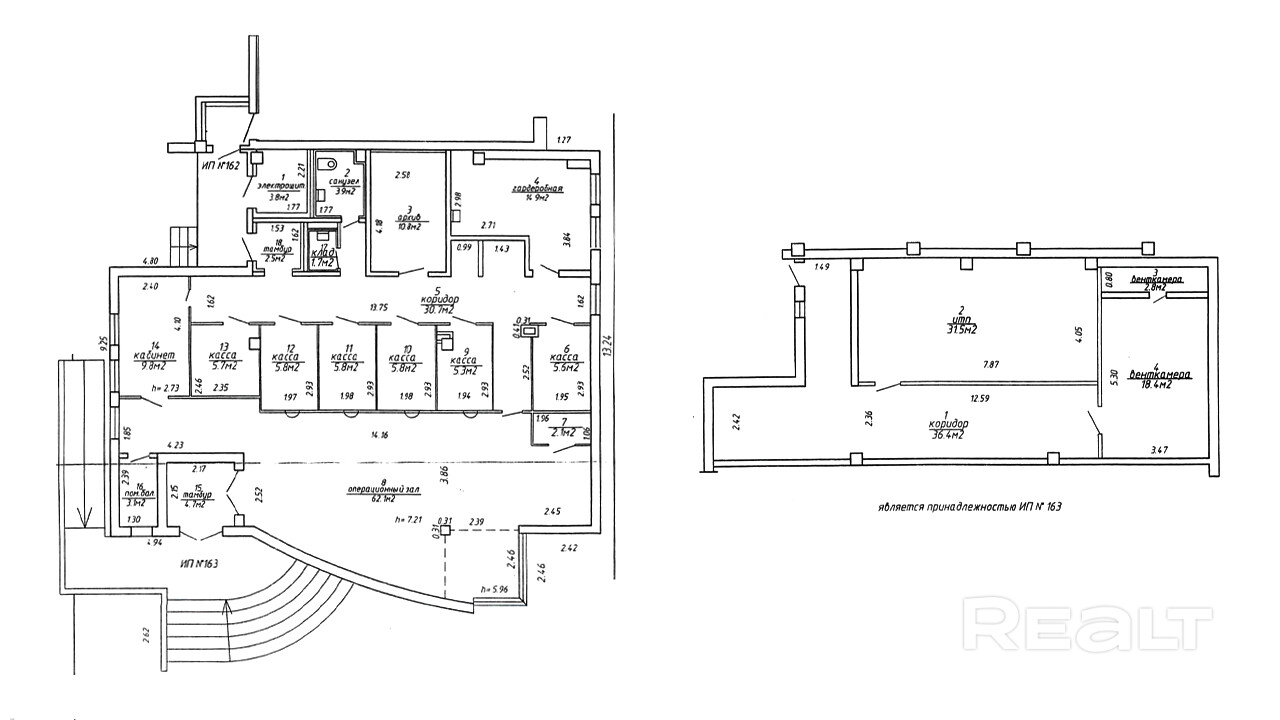
- Общая площадь: 272,8 м2
- 1-й этаж: 183,7 м2
- Подвал: 89,1 м2
- Отдельный вход
- Электрическая мощность: 30 кВт
- Пол — плитка
- Потолок — "Армстронг"
Преимущества:
- Перекрёсток с высоким трафиком
- Парковка прямо перед зданием
- Пожарная и охранная сигнализация
- Роллеты на окнах
- Капитальная пристройка к жилому дому
- Ранее размещался Беларусбанк (готовая инфраструктура под финансовые и клиентские сервисы)
Дополнительно:
При необходимости собственник:
- Установит витражные окна
- Организует рампу для разгрузки
Отличный вариант для бизнеса с высокой проходимостью и узнаваемой локацией.
Result Estate — ваш надёжный партнёр на рынке недвижимости.
20 лет опыта наших агентов по недвижимости — это ваш ключ к идеальной сделке: глубокое знание рынка, эксклюзивные предложения, юридическая безопасность и индивидуальный подход. Мы экономим ваше время, деньги и нервы, помогая купить, продать недвижимость быстро, выгодно и с уверенностью в результате!
Все актуальные предложения в одном месте — смотрите на нашем сайте.
Опишите свои пожелания — и мы оперативно подберем для вас лучшие варианты!
ООО «Результативная недвижимость», лицензия выдана Минюстом 26.09.2023 № 02240470, УНП 193703497
Связываясь с нами по данному объекту, Вы даете свое согласие на сбор и обработку персональных данных автоматически.
Параметры объекта
- Тип объекта
Торговое помещение
- Площадь общая
272.80 м²
- Отопление
Есть
- Электроснабжение
Есть
- Естественное освещение
Есть
- Вода
Есть
- Принадлежность объекта
Частная
- НДС
НДС включен
- Номер договора
45/1а от 07.04.2026
Егор Дубовский
Агент по недвижимости
Примечание
Местоположение
- Область
- Населенный пункт
- Улица
- Номер дома
66
- Район города
- Микрорайон
- Координаты
53.918, 27.4552
