Аренда складских и производственных площадей рядом с МКАД (ШАБАНЫ)
22 - 25 р./м²
Аренда
Следить за ценой
- г. Минскул. Промышленная, 23/6
- Могилевская
- 10 минут
- На карте
Склад
Тип
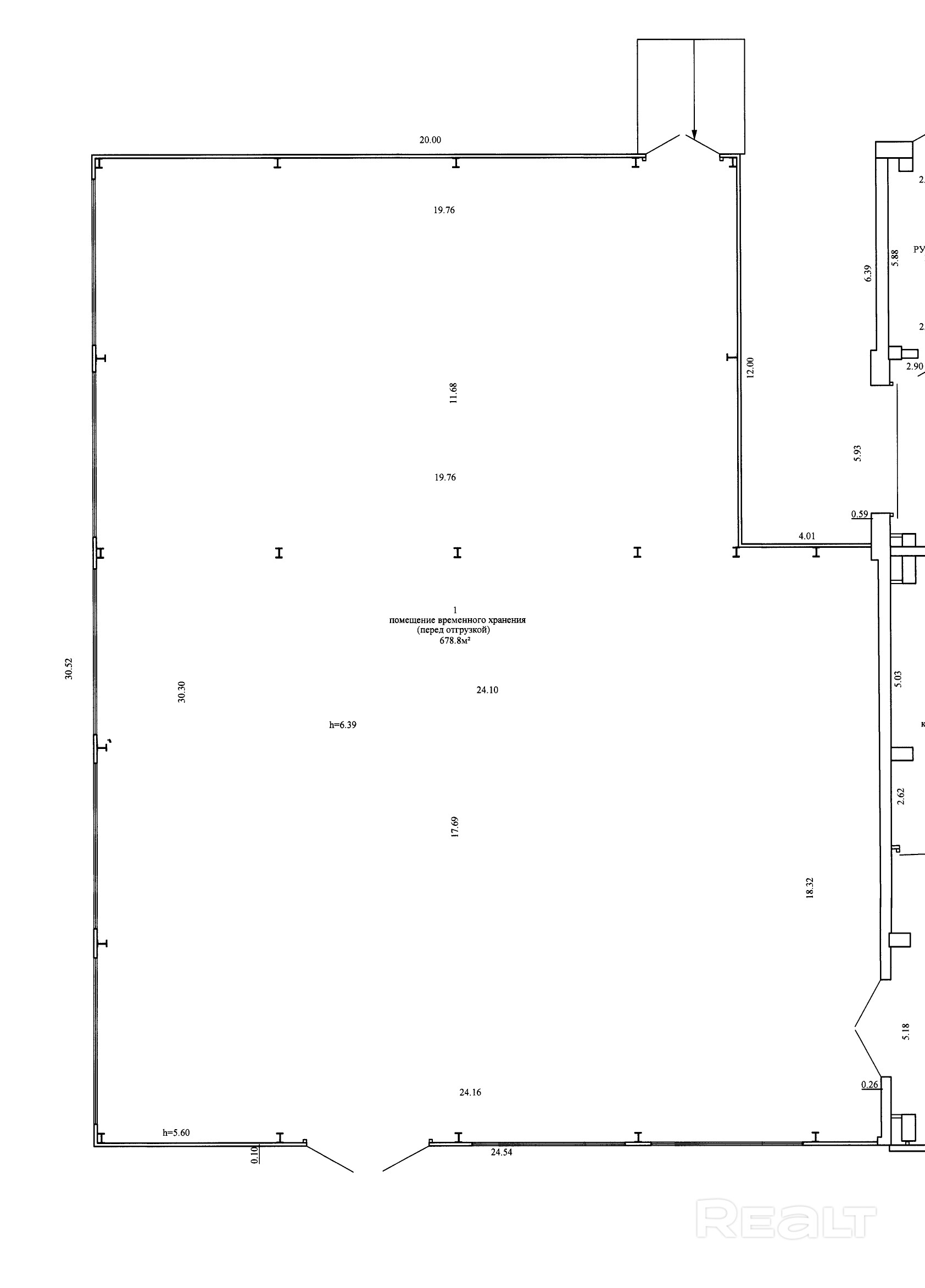
678 м²
Площадь
1 из 1
Этаж
17.02.2026ID 3739549
Описание
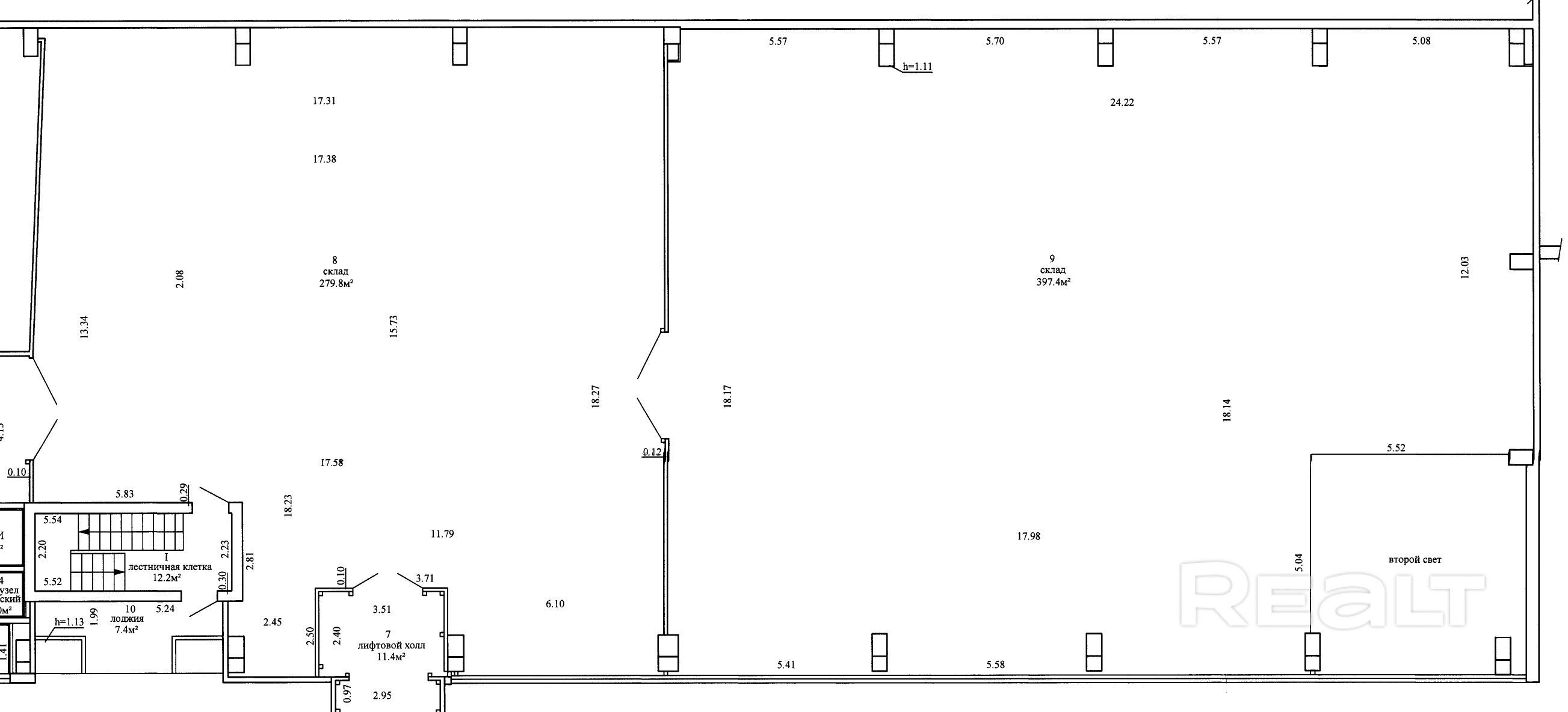
Аренда производственно-складского помещения по ул. Промышленной, рядом с МКАД. В пешей доступности метро "Могилевская". В аренду предлагается склад 678 м2 на 1-ом этаже. Высота потолков 5,5-6 м.
Параметры объекта
- Тип объекта
Склад
- Площадь общая
678 м²
- Этаж / этажность
1 / 1
- Год постройки
2022
- Класс
B
- Раздельных помещений
1
- Высота потолков
4 м
- Ремонт
Хороший
- Отопление
Есть
- Электроснабжение
380В
- Естественное освещение
Есть
- Санузел
Есть
- Принадлежность объекта
Частная
- НДС
НДС не включен
- Юридический адрес
Да
Оснащение
Охрана
Видеонаблюдение
Арендодатель
Жанна
Контактное лицо
Примечание
Аренда производственно- складского помещения по ул. Промышленной, рядом МКАД. Площадь 678 м2.
Местоположение
Могилевская10 минут
- Область
- Населенный пункт
- Улица
- Номер дома
23/6
- Район города
- Микрорайон
- Координаты
53.848444367, 27.684664868
